RS-1-Rev01PDFA.pdf - 第61页
- 56 - REF.NO NOTE PART N O D E S C R I P T I O N 品 名 Qty 1 401 -8 35 51 CO NVEY O R_VA LVE _UN IT コンベアバル ブ組 1 2 401 -4 70 00 CO NVEY O R_VA LVE _ST AG E コンベアバル ブステ ージ (1) 3 SL- 6041 092-T N SC REW M4 L=1 0 座金付き六角 穴ボル ト …

- 55 -
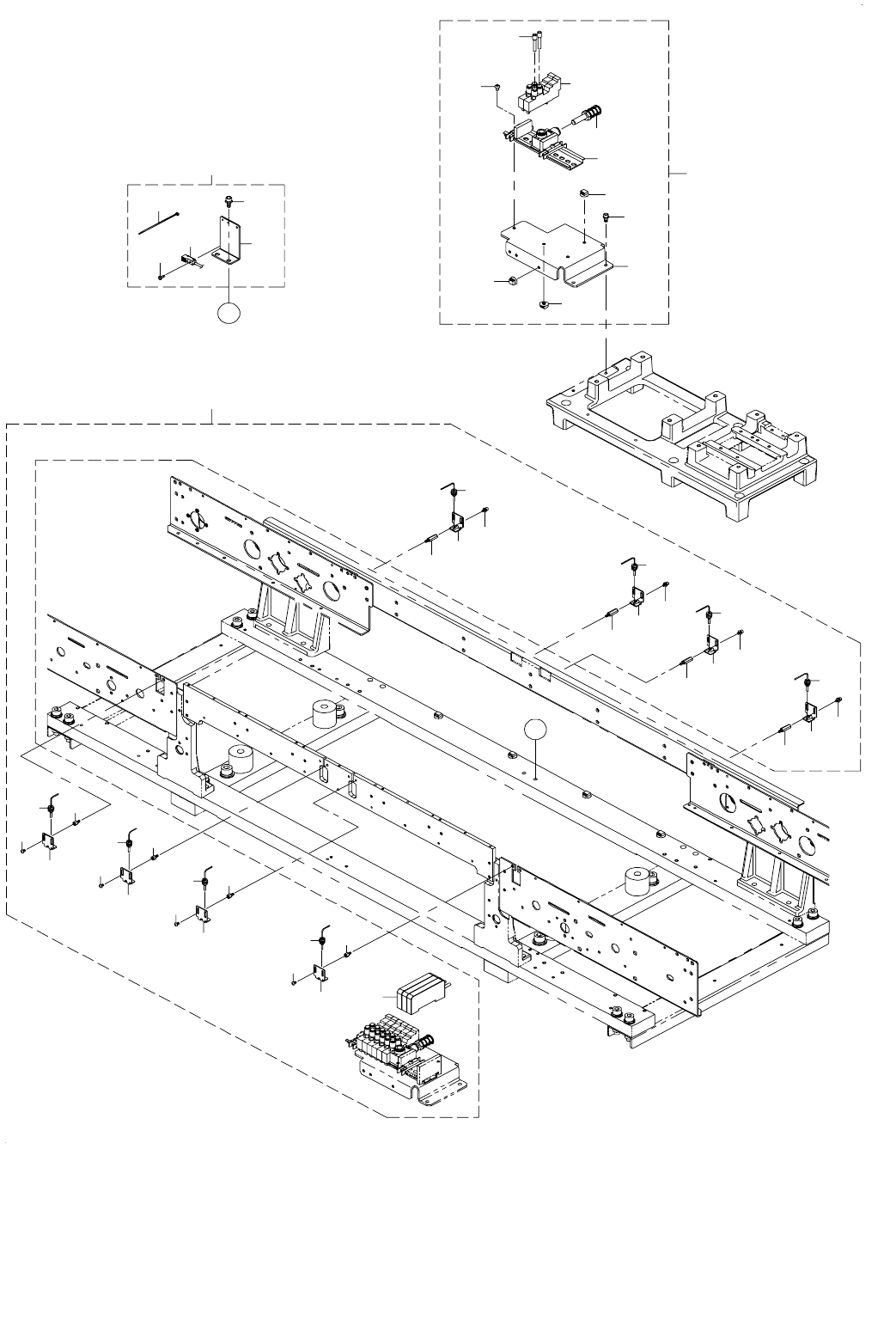
28. PWB CONVEYOR COMPONENTS (8)
基板搬送関係(8)
19
21
24
23
22
3
1
2
4
8
9
7
9
9
6
5
12
13
16
12
14
17
18
17
18
14
12
17
18
14
12
12
17
14
18
13
16
12
13
16
11
12
12
16
13
15
A
A
10
20
11
11
11

- 56 -
REF.NO NOTE PART NO D E S C R I P T I O N
品 名
Qty
1 401-83551 CONVEYOR_VALVE_UNIT
コンベアバルブ組
1
2 401-47000 CONVEYOR_VALVE_STAGE
コンベアバルブステージ
(1)
3 SL-6041092-TN SCREW M4 L=10
座金付き六角穴ボルト M 4 L =10
(2)
4 PV-9150050-00 SOLENOID VALVE INSTALLING BASE
電磁弁取付けベース
(1)
5 PV-1502093-00 5 PORT SOLENOID VALVE
5ポート電磁弁
(4)
6 PX-0500030-00 SILENCER
サイレンサ
(1)
7 SM-3040652-TN SCREW M4 L=6
丸ねじ M 4 L =6
(2)
8 PX-5000140-00 PLUG
止栓
(2)
9 HX-0070600-0A MOUNT BASE
マウントベース
(3)
10 401-83556 FIBER_UNIT_ASM
ファイバユニット組
1
11 SM-3030552-TN SCREW M3 L=5
丸ねじ M 3 L =5
(8)
12 401-83047 FIBER_BRACKET
ファイバブラケット
(8)
13 401-82350 FIBER SENSOR
ファイバセンサ
(4)
14 HD-0010700-30 SENSOR
センサ
(4)
15 401-29061 STOP SENSOR CABLE ASM
ストップセンサケーブル組
(3)
16 HX-0035400-0S SPACER
スペーサ
(8)
17 HX-0035400-0A SPACER
スペーサ
(8)
18 SL-6030692-TN SCREW M3 L=6
座金付き六角穴ボルト M 3 L =6
(8)
19 401-83549 BU_HOME_SENSOR_ASM
BU ホームセンサ組
1
20 SM-4030801-SC SCREW M3X0.5 L=8
なべ小ねじ M 3 X 0.5 L =8
(1)
21 SL-6051092-TN SCREW M5 L=10
座金付き六角穴ボルト M 5 L =10
(2)
22 EA-9500B01-00 CABLE BAND
束線バンド
(1)
23 401-29042 AWC/BU ORG SENSOR CABLE ASM
AWC / BU 原点センサワイヤー組
(1)
24 401-83060 BU_SENSOR_BR
BU センサブラケット
(1)

- 57 -
29. PWB CONVEYOR COMPONENTS (9)
基板搬送関係(9)
20
C
44
4
2
45
51
50
49
48
52
47
46
66
36
39
38
37
42
43
40
41
62
64
60
61
34
10
9
6
23
14
13
8
13
7
A
A
59
19
18
29
28
27
31
22
26
27
25
30
25
31
17
35
24
32
11
12
5
33
21
3
57
58
81
B
B
54
53
4
2
15
16
C
65
63
67
67
67
68
68
69
67
71
71
72
73
70
73
72
71
71
74
80
74
77
75
75
74
80
77
74
75
76
75
76
76
76
70
78
78
79
79
69
65
D
D
E
E
1
56
55