Mechanical.pdf - 第48页
46 Mechanical Drawings 16 3024 Issue 4 Co v ers Mounting G A ELA IT MAY NOT BE COPIED,REPRODUCED, PUBLISHED OR DISCLOSED IN WHOLE OR IN PART WITHOUT OUR WRITTEN CONSENT. IN IT, IS THE PROPERTY OF THIS DRAWING AND THE COP…

Mechanical Drawings 45
163005 Issue 1 Upper Frame GA
54321
A
B
CC
B
A
12345
67
8
910
11 12
13
6
7
8
9
10 11
12
13
D
E
F
G
H
I
D
E
F
G
H
I
PROJECTION
DRAWN
APPROVED
DATE
C
COPYRIGHT
DO NOT SCALE
SCALE
TITLE
DRAWING NUMBER
1999
BOM NUMBER
ITEM PART NO. DESCRIPTION QTY.
1
107471 RAIL STOP BAR 2
2
112664 EARTHING STUD 2
3
117076 BRACKET 9 WAY `D' 1
4
117378 BRACKET 9 WAY 1
5
117402 BRACKET, 12 WAY 1
6
117817 BRACKET 4 WAY 2
7
145588 ADJUSTABLE OPTO VANE BRKT 4
8
145589 OPTO VANE ANGLE 2
9
156382 PUSH IN BASE & TIE 21
10
156861 SPACER 4
11
157254 STUD, M6 RAIL STOP BAR 4
12
157298 UPPER FRAME (FIXED PRINTHEAD) 1
13
157745 BRACKET, PNEUMATICS MOUNTING 1
14
700506 NUT M6 FULL ST.ST 8
15
700511 NUT M6 HEX. LOCK ST.ST 4
16
700526 NUT M5 FULL BRASS 6
17
700604 WASHER M6 PLAIN FORM A ST.ST 12
18
EN024122_01_01DIN RAIL 175 LG 2
19
G5120 WASHER M5 BRASS FORM B 6
THIS DRAWING AND THE COPYRIGHT
IN IT, IS THE PROPERTY OF
DEK PRINTING MACHINES LIMITED
IT MAY NOT BE COPIED, REPRODUCED,
PUBLISHED OR DISCLOSED IN WHOLE
OR IN PART WITHOUT OUR WRITTEN
CONSENT.
1:2
ACR
UPPER FRAME GA
22-Nov-99
163005
160008
SH 1
OF 1
A
0
LATEST
ISSUE
No. DATE DCR INITIAL
01 22-Nov-99 ... ACR
6
8
18
2
5
16
19
14
17
1
10
13
3
7
11
4
9
12
15

46 Mechanical Drawings
163024 Issue 4 Covers Mounting GA ELA
IT MAY NOT BE COPIED,REPRODUCED,
PUBLISHED OR DISCLOSED IN WHOLE
OR IN PART WITHOUT OUR WRITTEN
CONSENT.
IN IT, IS THE PROPERTY OF
THIS DRAWING AND THE COPYRIGHT
DEK
PRINTING MACHINES LIMITED,
54321
A
B
CC
B
A
12345
67
8
910
11 12
13
6
7
8
9
10 11
12
13
D
E
F
G
H
I
D
E
F
G
H
I
PROJECTION
DRAWN
APPROVED
DATE
C
COPYRIGHT
DO NOT SCALE
SCALE
TITLE
DRAWING NUMBER
2000
BOM NUMBER
ITEM PART NO. DESCRIPTION QTY.
1
107332 ARMATURE PLATE 2
2
140115 SERVICE PANEL 1
3
140317 FOOT MAGNETIC 2
4
156081 RUNNER, NOTCHED 1
5
156082 RUNNER 3
6
156083 RUNNER BRACKET 2
7
156103 ADJUSTMENT BRACKET 1
8
156115 REAR PANEL BRACKET 2
9
156122 RUNNER SUPPORT BRKT., LEFT 2
10
156382 PUSH IN BASE & TIE 9
11
156604 SWELL LATCH 4
12
156618 STEPPER MOTOR GUARD 2
13
156623 E-STOP BRACKET ,RIGHT 2
14
156873 HOOD SUPPORT REAR 2
15
157700 BRACKET, SUPPORT LOWER/RIGHT 2
16
157701 BRACKET, SUPPORT UPPER/RIGHT 2
17
157702 BRACKET, SUPPORT LEFT/LOWER 2
18
163026 COVER FRAME 1
19
163042 BUFFER, LEFT 1
20
163043 GUIDE INNER 2
21
163044 GUIDE LEFT 1
22
163045 COVER BRACKET, RH FRONT WAIST 1
23
163046 GUIDE RIGHT 1
24
163056 PLATE, CAM SAFE 1
25
163057 KEYHOLE PIN 2
26
163058 PANEL BKT A LH 1
27
163059 PANEL BKT B LH 1
28
163061 PANEL BKT A RH 1
29
163062 PANEL BKT B RH 1
30
163063 UCS DRIP TRAY 1
31
163066 BUFFER, RIGHT 1
32
163069 BRACKET,LH REAR WAIST 1
33
163071 BRACKET,RH REAR WAIST 1
34
163109 E STOP SUPPORT, REAR LEFT 1
35
163115 SUPPORT, FRONT LEFT 1
36
163118 SPACER 4 IDX7ODX6THK 2
37
163123 HANDLE 1
38
163172 NUT PLATE, Z-BKT 2
39
163176 REAR RIGHT SUPPORT BRACKET, INNER 1
40
163177 REAR RIGHT SUPPORT BRACKET, OUTER 1
41
163413 BRACKET, PH RIGHT 1
42
163414 BRACKET, PH LEFT 1
43
163415 BRACKET 1
44
163417 FORK 1
45
163485 BRKT^U FORM^SLOTTED^COVERS 1
46
163489 SHUTTER ASSEMBLY 1
47
701103 SKT HD PLASTIC SCREW M8X40 4
1:5
NS
COVERS MOUNTING GA
19-Nov-99
163024
163002
SH 1
OF 1
A
0
LATEST
ISSUE
No. DATE DCR INITIAL
04 29-Nov-01 26954 PH
SCALE 1:2
SCALE 2:5
18
1
31
1
5
3
6
2
21
1
26
1
27
1
23
1
30
1
28
1
29
1
1
2
3
2
15
2
16
2
35
1
37
1
11
4
42
1
46
1
45
1
9
2
4
1
8
2
25
2
33
1
12
2
19
1
32
1
17
2
34
1
40
1
47
4
14
2
2
1
38
2
39
1
10
9
13
2
22
1
7
1
24
1
41
1
20
2
36
2
43
1
44
1

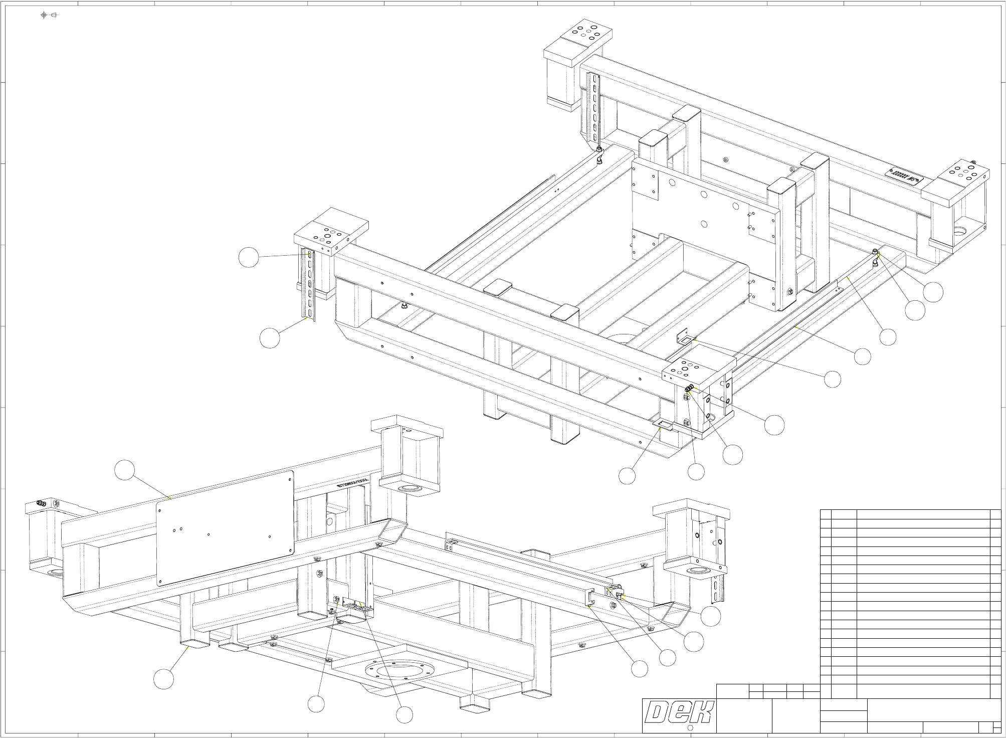
Mechanical Drawings 47
163028 Issue 3 ELA Base Frame GA
54321
A
B
CC
B
A
12345
67
8
910
11 12
13
6
7
8
9
10 11
12
13
D
E
F
G
H
I
D
E
F
G
H
I
PROJECTION
DRAWN
APPROVED
DATE
C
COPYRIGHT
DO NOT SCALE
SCALE
TITLE
DRAWING NUMBER
2001
BOM NUMBER
ITEM PART NO. DESCRIPTION QTY.
1
107309 VIBRATION ISOLATOR 4
2
107310 SNUBBING WASHER 4
3
107499 Y-UNION 1
4
112068 STUD M12. 4
5
117119 KLIPPON SUPPORT BLOCK TYPE SH1 1
6
117131 4 WAY TRIAD 1
7
129024 DIN RAIL 125 LG 1
8
133364 BUFFER STOP ASSY. 1
9
140750 MACHINE LEVELLING FOOT 4
10
155875 BASE FRAME TRUNKING 1
11
156382 PUSH IN BASE & TIE 17
12
156429 MAINS TRUNKING 1
13
156430 MAINS TRUNKING 1
14
156875 MMI FRAME CONNECTOR BRKT 1
15
157543 LOWER FAN ASSEMBLY / M19 1
16
157762 CRATE SLIDES ARRANGEMENT (LFRM 157684) 1
17
163087 BRKT, ISOLATOR BOX MTG. 1
18
163223 265 LOWER FRAME / ELA 1
THIS DRAWING AND THE COPYRIGHT
IN IT, IS THE PROPERTY OF
DEK PRINTING MACHINES LIMITED
IT MAY NOT BE COPIED, REPRODUCED,
PUBLISHED OR DISCLOSED IN WHOLE
OR IN PART WITHOUT OUR WRITTEN
CONSENT.
1:4
ACR
LOWER FRAME GA (ELA)
17-Nov-99
163028
163108
SH 1
OF 1
A
0
LATEST
ISSUE
No. DATE DCR INITIAL
03 12-FEB-01 26702 PH
6
7
8
12
13
15
5
11
1
2
4
14
16
18
10
3
17
9