XP242规格说明书.pdf - 第23页
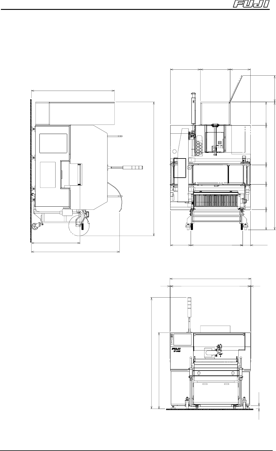
7. 机器外观 Edition 1.0 - 21 - XP-242E 规格说明书 7.1 外观图 单 位∶ mm 15 00 148 0 20 58.5 59 .5 10 10 14 08.5 90 0 24 77 15 37 16 30 37 9.3 96 0. 4 37 1.5 47 0 36 0 73 0 43 0.5 48 7.8 23 62 55 5 55 0 375 14 0.3

6. 选 项
Edition 1.0 - 20 - XP-242E 规格说明书
6.2.12 手提式条码读取器(局部检验功能)
使用红外线型条码读取器(无线式),可达到在料带料卷更换时由条码读取
器进行检查或防止换线时的替换安装错误。
<注意>
有关适用范围是在日本国内以及亚洲范围内。
在其他国家的时候,请与本社营业部门联系。
6.2.13 Fujitrax(正在研发中)
是为了高度实现在SMT生产线上贴片机的搭载元件管理的系统、管理贴装元
件的种类、贴装元件的余额管理、料卷元件的个体信息、料带拼接 信息、生
产程序(recipe)的料站信息等、推进高效 的元件补充和更换以达到防止不
良电路板的产生。
操作Fujitrax的必要软件另行提供。
Fujitrax:贴装工程管理系统(Traceable Realtime Administration)

7. 机器外观
Edition 1.0 - 21 - XP-242E 规格说明书
7.1 外观图
单位∶mm
1500
1480
2058.5
59.5
1010
1408.5
900
2477
1537
1630
379.3 960.4
371.5 470 360 730 430.5
487.82362
555 550 375
140.3

7. 机器外观
Edition 1.0 - 22 - XP-242E 规格说明书
7.2 电源和空气入口