8800401-3F_VT-S730_MaintenanceManual(C)PDFA.pdf - 第25页
2 . 装置规格 2-1 2. 装置规格 对本装置的通用规格及 检查对象基板 进行说明。 2.1 通用规格 外观尺寸 外观尺寸如下。 (単位: mm 公差: IT16 )

1.概要
1-8
机柜内部
PC
本装置的主控。带有 DVD-ROM。
气压调节器
用气压调节器上的的调节栓调整气压。
气压计
显示本装置的供气气压。
UPS
保护装置内点电脑硬盘。
PC
气压调节器
UPS
气压计

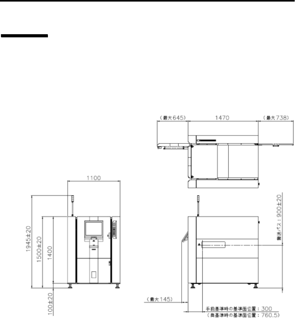
2.装置规格
2-1
2. 装置规格
对本装置的通用规格及检查对象基板进行说明。
2.1 通用规格
外观尺寸
外观尺寸如下。
(単位:mm 公差:IT16)

2.装置规格
2-2
基本规格
本装置的基本规格如下。
额定电源
电压
AC200~240V (单相)±10%
(按照铭牌中记载的额定值供电)
频率
50/60 Hz
额定功率
2.8kVA
接地
D 种接地(接地电阻:100Ω 以下)
气压、气流量
0.3~0.6MPa ・ 0.0104m
3
/h
气管接头规格
φ8 管直接头 或 耦合器(20PM)
※耦合器是附属品,安装时可以选择
使用温度范围
10~35℃
使用湿度范围
35~80%RH(不能结露)
标高
1,000m以下使用
外形寸法
参照 2.1 通用规格 外观尺寸 (信号灯、显示器除外)
1100(W)×1470(D)×1500(H)mm
質量
约 800kg
涂色
浅灰色/白 孟赛尔 2.5PB7.5/0.5、2.5PB9.0/0.5
涂层为 leather satin
機構部
基板搬入间隔空间
高于地面 900±20mm 用调节脚进行调整
基板传送方式
基板上方 40mm、 基板下方 40mm
输送机宽度调整
传送带
基板传送速度
自动调整
基板搬入间隔空间
50~600mm/s
(用户以 10mm/s 为单位、分别对搬入输送机与搬出输送
机速度进行设定)
默认值为 200mm/s