M6e_ServiceManual_e.pdf - 第64页

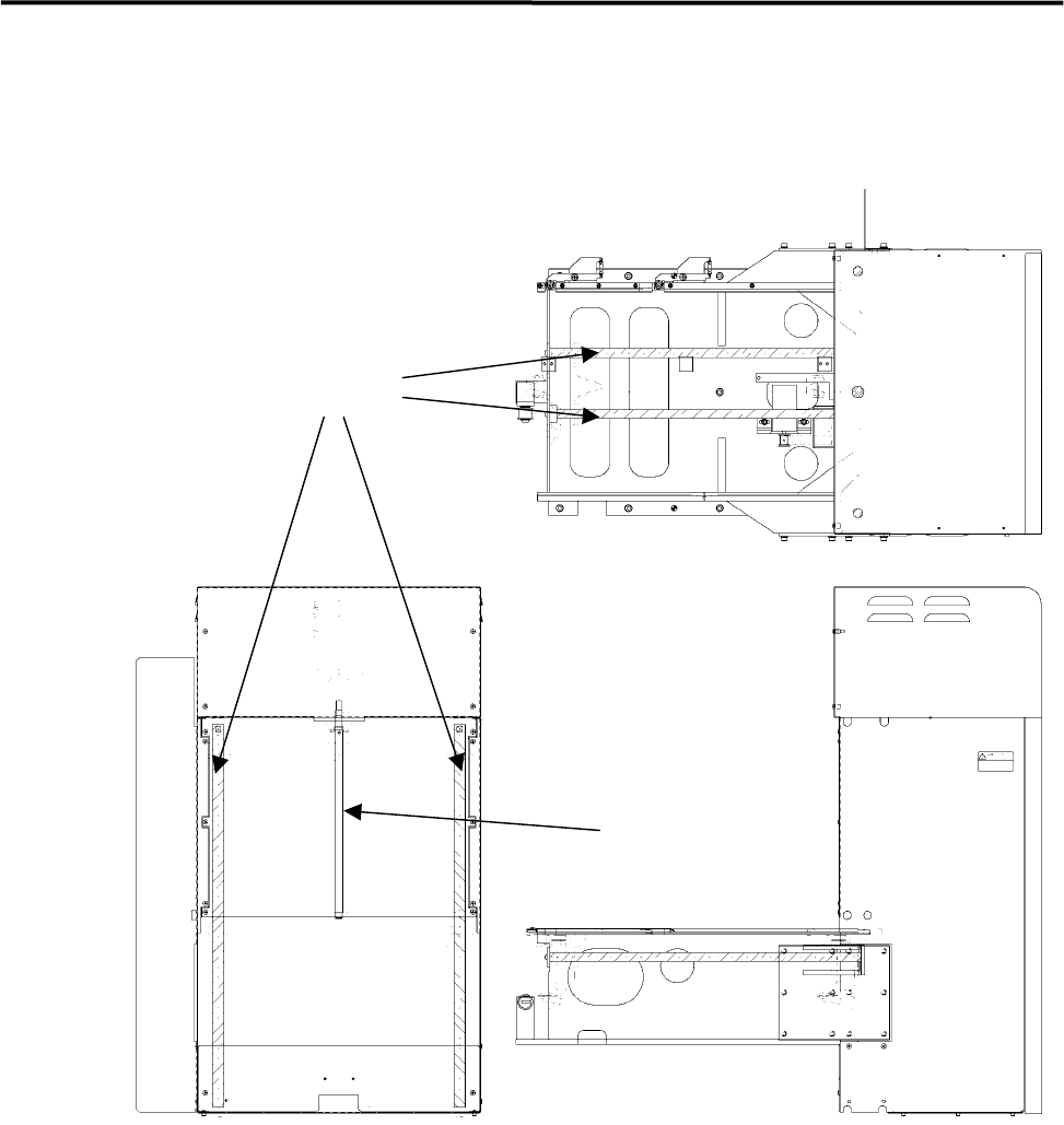
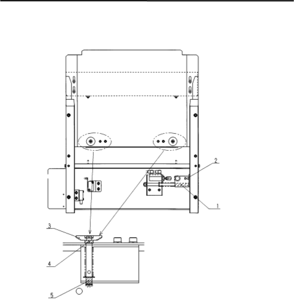
3 Mechanical Section 3-30 ■ Lubrication Points for M XR-20 (Option) Linear S haft Ball Screw

100%1 / 82