KE-3020_KE-3020R-Rev06.pdf - 第19页
- 12 - NOTE( 注記 ) #01....FOR EN EN 用 #02....FOR 3020 3020用 #03....FOR ST ST 用 REF.NO NOTE PART NO D E S C R I P T I O N 品 名 Qty 1 401-13739 POWER UNIT 電源ユニット 1 2 #01 401-13740 POWER UNIT EN 電源ユニット_EN 1 3 400-34328 MAGNET…

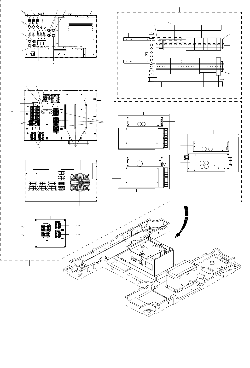
- 11 -
6. BASE FRAME ELECTRIC APPARATUS COMPONENTS(2)
ベースフレーム電装関係(2)
MC1
RL4
RL 1
RL5
RL6
RL 7
RL 8
RL3
RL2
CN02EN
COPLA PS
CN1 4B
CN14A
CN03
CN13
CN12CN11
CN0 1
CN04 A
CN0 4B
CN03 9 MONI
CP1 4
CP4 CP10CP9
CP8 CP 6
CP5CP7
CP1 2CP1 1CP1
CP3
CP2
CP13
SC1
TB3
TB2
RL9
RL 1 0
52
45
10
40
44
33
35 37
25
28
25
28
14
5
4
25
13
25
28
31
32
33
39
11
12 29
30 3 12
17
15
50
16
20
19 18 24 23 22
21
22
9
6
46
7
49
46
47
48
8
62
58
60 64 56 5761
61
63
63
61
53555465
1
2
51

- 12 -
NOTE( 注記 ) #01....FOR EN EN 用
#02....FOR 3020 3020用
#03....FOR ST ST 用
REF.NO NOTE PART NO D E S C R I P T I O N
品 名
Qty
1 401-13739 POWER UNIT
電源ユニット
1
2
#01
401-13740 POWER UNIT EN
電源ユニット_EN
1
3 400-34328 MAGNETIC CONTACTOR(THERMAL)
サーマルリレー付電磁開閉器
(1)
4 400-94407 PSU_MAIN_BRACKET
PSUメインブラケット
(1)
5 400-94408 PSU_SIDE_COVER
PSUサイドカバー
(1)
6 401-22403 PSU_BRACKET_A_XL
PSUブラケット_A_XL
(1)
7 400-47070 PSU_BRACKET_B
PSU_ブラケットB
(1)
8 400-94411 PSU_BRACKET_C
PSUブラケットC
(1)
9 400-94415 PSU_F_COVER
PSU_Fカバー
(1)
10 400-94412 RELAY_PLATE
リレープレート
(1)
11 400-47075 DIN_RAIL
ディンレール
(1)
12 400-00477 PSU SLIDE BAR
PSUスライドバー
(2)
13 HX-0002600-0A BASE PARTS
基板パーツ
(3)
14 HM-0003300-30 FAN GUARD
ファンガード
(1)
15 HA-0052400-0B CIRCUIT PROTECTOR
サーキットプロテクタ
(1)
16 HA-0052400-0E CIRCUIT PROTECTOR
サーキットプロテクタ
(1)
17 HA-0052500-00 CIRCUIT PROTECTOR
サーキットプロテクタ
(1)
18 HA-0052700-0A CIRCUIT PROTECTOR
サーキットプロテクタ
(1)
19 HA-0052700-0E CIRCUIT PROTECTOR
サーキットプロテクタ
(2)
20 HA-0052700-0C CIRCUIT PROTECTOR
サーキットプロテクタ
(2)
21 HA-0054200-0A CIRCUIT PROTECTOR
サーキットプロテクタ
(1)
22
#01
HA-0054200-0A CIRCUIT PROTECTOR
サーキットプロテクタ
(2)
23 HA-0054200-0D CIRCUIT PROTECTOR
サーキットプロテクタ
(2)
24 HA-0056000-00 CIRCUIT PROTECTOR
サーキットプロテクタ
(1)
25
#03
HB-0005800-10 RELAY
リレー 止め金具
(7)
26
#01
HB-0005800-10 RELAY
リレー 止め金具
(4)
27
#03
HB-0012800-0C RELAY
リレー
(7)
28
#01
HB-0012800-0C RELAY
リレー
(4)
29
#02
HB-0011000-00 RELAY
リレー
(1)
30
#02
HB-0011000-10 RELAY COVER
関連パーツ
(1)
31 HB-0015400-00 RELAY
リレー
(2)
32 HB-0015400-10 RELAY
リレーソケット
(2)
33 HK-0696500-10 BLOCK TERMINAL
ブロックターミナル
(12)
34 HK-0693500-10 BLOCK TERMINAL
ブロックターミナル
(6)
35 HK-0696900-00 BLOCK TERMINAL
ブロックターミナル
(1)
36 HK-0691900-0B BLOCK TERMINAL
ブロックターミナル
(5)
37 HK-0696900-0A BLOCK TERMINAL
ブロックターミナル
(1)
38 HK-0696900-0B BLOCK TERMINAL
ブロックターミナル
(1)
39 HK-0696900-30 BLOCK TERMINAL
ブロックターミナル
(4)
40 HK-0695500-10 BLOCK TERMINAL
ブロックターミナル
(14)
41
#01
HK-0695500-10 BLOCK TERMINAL
ブロックターミナル
(17)
42 HK-0695900-00 BLOCK TERMINAL
ブロックターミナル
(2)
43 HK-0695900-20 BLOCK TERMINAL
ブロックターミナル
(5)
44 HK-0695900-0A BLOCK TERMINAL
ブロックターミナル
(2)
45 400-63473 DIN_RAIL
ディンレール
(1)
46 HX-0068800-00 POWER SUPPLY
パワーサプライ
(2)
47 HX-0054300-0A POWER SUPPLY 24V
電源24V
(1)
48 HX-0057700-0A POWER SUPPLY
電源
(1)
49 KX-0000001-50 POWER SOURCE 6V
電源6V
(1)
50
#01
HA-0052400-00 CIRCUIT PROTECTOR
サーキットプロテクタ
(1)
51
#01
HX-0054200-0B POWER SOURCE 24V
電源24V
(1)
52
#01
400-94921 SAFETY UNIT ASSY(EN)
セーフティユニット組(EN)
1
53 HB-0015800-00 RELAY
セーフティリレーユニット
(1)
54 HA-0063000-00 MAGNETIC CONTACTOR
電磁開閉器
(3)
55 HA-0063200-00 MAGNETIC CONTACTOR
電磁開閉器
(2)
56 HB-0013900-00 RELAY
リレー
(8)
57 HB-0013900-10 RELAY SOCKET
リレー用ウソケット
(8)
58 HK-0696500-10 BLOCK TERMINAL
ブロックターミナル
(22)
59 HK-0692500-10 BLOCK TERMINAL
ブロックターミナル
(4)
60 HK-0691900-00 BLOCK TERMINAL
ブロックターミナル
(1)
61 HK-0691900-0B BLOCK TERMINAL
ブロックターミナル
(3)
62 400-00488 SLIDE RAIL
スライドレール
(1)
63 400-00529 CARRIER RAIL 350
キャリアレール 350
(2)
64 HK-0696900-00 BLOCK TERMINAL
ブロックターミナル
(1)
65 400-94695 SAFETY_UNIT_BR
セーフティユニットブラケット
(1)

- 13 -
7. BASE FRAME ELECTRIC APPARATUS COMPONENTS(3)
ベースフレーム電装関係(3)
14
18
13
BK
SP
RL
K1
K2
TF
TB2
TB1
LF
RFRF
22
19
20
23
22
21
2
32 323
2
3
4
5
4
5
4
5
6
7
8
9
112
10
11
16 18 18
17
17
17 18
15
37
28
24
26
26
26
24
25
26
27
24
32
31
33
34
35
29
30
36
38
39