M1plus_maintenancePL.pdf - 第39页
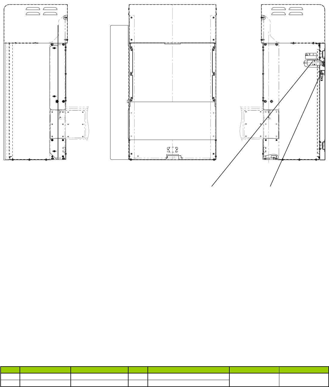
No. Part No. Part Name Qty Remarks Drawing Name Drawing No. 1 KL4-M1718-00X KNOCK CYLINDER 1 2 LG8-M13K2-00X SAFETY SW ASSY. 1 COVER ASSY LG8-M1300-010 2 1 MXR-20(Cover)

No. Part No. Part Name Qty Remarks Drawing Name Drawing No.
1
LG0-M58A0-00X SPRING 1 5264
2
LG0-M58A3-00X CYLINDER 1
3
LC0-M58K0-00X SV ASSY. 1
4
LG0-M58A5-00X SOLENOID VALVE 1
5
LG0-M58A9-00X SPRING 2 5162
6
LG0-M90AK-00X MUFFLER 2
7
LG0-M34H4-00X MICRO SWITCH 2
MX-ST2-ASSY LG0-M5800-000 1/2
LG0-M5800-000 1/2MX-ST2-ASSY
5 1
7
3 (4) 7 2
MX-ST2

No. Part No. Part Name Qty Remarks Drawing Name Drawing No.
1
KL4-M1718-00X KNOCK CYLINDER 1
2
LG8-M13K2-00X SAFETY SW ASSY. 1
COVER ASSY LG8-M1300-010
2 1
MXR-20(Cover)

No. Part No. Part Name Qty Remarks Drawing Name Drawing No.
1
KJ8-M7451-00X SPRING RACK 1
2
LG8-M14A1-00X CYLINDER,ASSY 2
3
LG8-M14K0-00X SENSOR,CYL.ASSY 1 LEFT
4
LG8-M14K1-00X SENSOR,CYL.ASSY 1 RIGHT
RACK ASSY LG8-M1400-000
2、4
2、3
1
MXR-20(Rack Assy.)