M1plus_maintenancePL.pdf - 第45页
No. Part No. Part Name Qty Remarks Drawing Name Drawing No. 4 KH2-M1753-00X PLATE3 2 5 KJ9-M1754-00X SEAT 1 TRAY PALETTE LG8-M5600-000 MXR-20(Tray Palette)

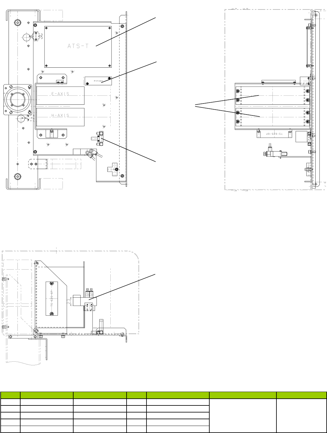
No. Part No. Part Name Qty Remarks Drawing Name Drawing No.
1
LG8-M13K1-00X SV ASSY. 1 Cover Lock
2
LG8-M17K4-00X SV ASSY. 1 Stocker Open/Close
3
LG8-M41H1-11X BOARD,ATST-1 1
4
LG0-M41H2-00X SERVO DRIVER 3 2
5
LG0-M42HG-00X RELAY 1
CONTROL BOX ASSY LG8-M4100-000
3
5
1
4
2
MXR-20(Control Box)

No. Part No. Part Name Qty Remarks Drawing Name Drawing No.
4
KH2-M1753-00X PLATE3 2
5
KJ9-M1754-00X SEAT 1
TRAY PALETTE LG8-M5600-000
MXR-20(Tray Palette)

No. Part No. Part Name Qty Remarks Drawing Name Drawing No.
1
LG0-M110G-02X PLATE,KEYBOARD 1
2
LG0-M11H2-40X BOARD,SWG4-4 1
3
LG0-M11HK-00X SWITCH,EMERGENCY 1
4
KW3-M5169-02X MOUSE 1
5
LG0-M11H7-01X MONITOR 1
6
KG7-M530H-01X FLOPPY DISK DRIVE 1
7
LG0-M51H0-00X KEYBOAD ASSY(JAP) 1
8
LG0-M51H0-10X KEYBOAD ASSY(ENG) 1
9
LC0-M13KA-00X SELECT SW ASSY. 2 AUTO/MANUAL
M1plus BASE ASSY 2/2 LC0-M1100-000 2/2
9 3 2
5
4
7 or 8
1
6
93
Exterior