88xg_100xg电气线路图.pdf
Appendix Contr ol Wiring Diagram 88Xg. 100Xg

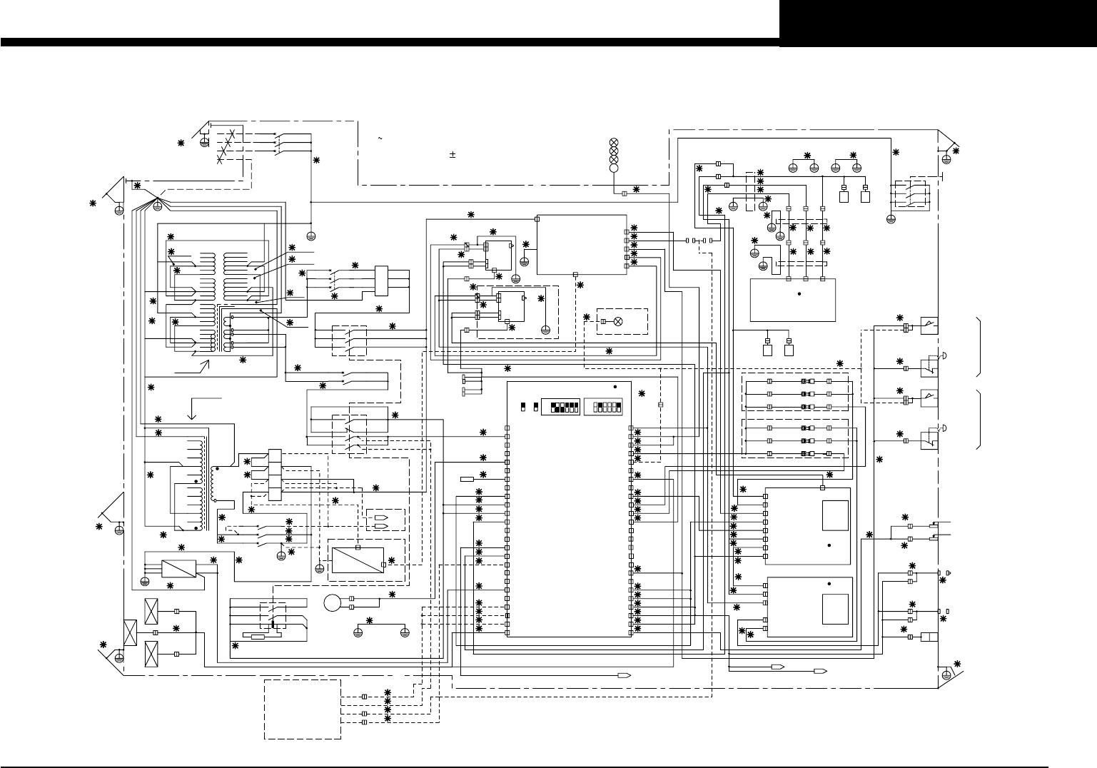
Appendix
Control Wiring Diagram
88Xg. 100Xg
Table of contents
1.YV100Xg
2.YV88Xg
Overall connections diagram
Emergency stop circuit diagram
Power supply circuit diagram
I/O wring diagram(HEAD)
I/O wring diagram(CONVEYOR A)
I/O wring diagram(CONVEYOR B)
Controller connections diagram
Transtap switching diagram
Air circuit(YV100Xg-F)
Air circuit(YV100Xg-S)
Harness parts list
Overall connections diagram
Emergency stop circuit diagram
Power supply circuit diagram
I/O wring diagram(HEAD)
I/O wring diagram(CONVEYOR A)
I/O wring diagram(CONVEYOR B)
Controller connections diagram
Transtap switching diagram
Air circuit(YV88Xg-F)
Air circuit(YV88Xg-S)
Harness parts list

PAGE 2
YV100Xg (KGB) Control Wiring Diagram
Overall connections diagram
POWER SOURCE
3 50/60Hz
R
S
T
>2.5sq
W50
V50
U50
W51
V51
U51
0V
190V
200V
208V
220V
240V
0V
190V
200V
208V
220V
240V
0V
200V
208V
220V
240V
0V
190V
200V
208V
220V
240V
0V
190V
200V
208V
220V
240V
0V
190V
200V
208V
220V
240V
190V
N
W50
V50
U50
S1
R1
T1
240V
220V
208V
200V
190V
0V
240V
220V
208V
200V
190V
0V
0V
100V
U10
S1
R1
NOTE1
U12
V10
V10
V10
U14
V10
XT21
U60
V60
U61
V61
V10
W51
V51
U51
W52
V52
U52
V54
U54
5
3
1
KM10
2
4
6W52
V52
U52
W54
200/208/220/240
NOTE1
PE
V10
V10
L1
L2
L3
1
2
3
4
5
6
MAIN SWITCH
CONNECTION BOARD
CNF1
CNF2
CNF3
CNF4
CNF5
CNF6
CNF7
CNF13
CNF10
CNF11
CV ACIN
CV JP1
CV JP2
CMTR1
CNF26
CNF27
CNF28
CNF29
CNF32
CNF33
CNF34
CNF14
CNF12
CNF30
FAN2
FAN3
A1 CONTROL BOX ASSY
CN5
I/O1
I/O2
CONTROL
BOX ASSY
CONVEYOR1 H
CONVEYOR1 L
CONVEYOR
SPEED
ADJUSTMENT
CONV1 FG
DUCT Y
FLEXIBLE
X-FRAME X-FRAME
See Page 2
I/O HEAD
H
L
I/O
RIGHT
DUCT X
+24V CN5
CNX1
+24E EMG
24V
I/O
C1
UPS
CNF15
CNF16
CNF18
CNF21
CNF19
CNF24
CMTR2
C1
C2
CNF8
CNF9 CONTACTA2
CONTACTA1
EMG
YPU/HHK
FEEDER PWR
PATLITE
TF1
TF2
TF3
FAN1
EPW1
EPW2
EPW3
SERVICE KEY
FRONT PANEL
COVER F
STOP F
FRONT SIDE
REAR SIDE
S1 S2 S4
U11
V10
F1 F ERROR
F2 F ERROR
F AREA
R1 F ERROR
R2 F ERROR
R AREA
See PAGE 4
STOP R
COVER R
SENSOR PWR
LED DRIVER
S1
R1
CN2(DC24V IN)
CN6(EMG)
CNX1(COMU1)
CNX2(COMU2)
CN7(DI1)
CNX1_A
CNX1(COMU1)
CN2(DC24V IN)
CNX2_A
CNX1_B
CONV
I/O
A
CONV
I/O
B
CN2_A
CN2_B
CN6_A
HOUR METER
COUNT RESET/
BA IN/
CN7 A
PREV A
CN8(EMG/INT)
CN8_A
CN8_B
CN8(EMG/INT)
See PAGE 5
See PAGE 4
See PAGE 5
See PAGE 3
N1005
N1006
N1105
N1106
LEFT
CN5
HCN5
CN5
Y1OT Y1ORG
CN3(ORG/OT)
CN3_A
W1ORG
HCN5
Y1OT/
Y1ORG
Y1OT/
Y1ORG
FLEXIBLE
+24V
HEAD+24V
HEAD
CNX1
I/O
+24V IN
OPTION +24V
LR OUT/
CN15_A
CN15(DO5)
F.FDR1
F.FDR2
F.AREA+24V
R.FDR1
R.FDR2
R.AREA+24V
+EMG
FAN/
+EMG
FAN/
U CM
TG1
I/O PWR
I/O PWR TF
CNF40
CNF35 Y1 OT
NEXT A
BP OUT CNF37
CNF50CONV VR
I/O CVA1
NEXT B
PREV B
I/O H1OT
I/O H2OT
CNF38I/O CVA3
CN15(DO5)
CN15_B
53
54
61
62
73
74
83
84
KM10A
EMG7
T1821B
V61
U61
U64
EMG6
+24VC
V64
CNF47BUZZER
BUSY IN/
BA OUT/
BUSY OUT/
UR IN/
UR OUT/
LR IN/
U60
V60
220V
200V
200V
220V
220V
Rating 4.4kVA MAX.
NEXT
INTERFACE
PREVIOUS
INTERFACE
I/O CVA2
CNF20 OPTION DO
CNF25 EMG OP
CNF58COVER LIGHT
CNF39S.P LAMP
TF5
TF6
EMG SPARE
OP FEEDER PWR
TF4
I/OI/O
I/O
EMG
T1822
CN4(DI3)
+24V
FAN
AC IN
See PAGE 2PU BK
CN2
CN2
AC100V
D-CAM1
+24V
+24V
D-CAM2
L.CTL1
L.CTL2
LDC1 UP
LDC2 UP
LDC1 UPPER
LDC1 LOWER
LDC2 UPPER
LDC2 LOWER
LDC1
LDC2
OPTION
W BK
CN4_B
PUORG
CN1
A2
23
A1
KM10
14
13
24
UPS
AC100V
IN
AC100V OUT
L.CTL1
L.CTL2
U10
U10
U15
U12
V10
V10
V10
U14
U14
V10
U14
See PAGE 2
380/400/416V 10%
GB1
FLEXIBLE
DUCT Z
I/O
I/O
+24V
+24V HCN5
HCN5
+24V
FAN
CNF46
CNF49
CNF45
CNF44
CNF42
CNF48
CNF43
CNF41
CNF53
CNF54
F AREA SENSOR
R AREA SENSOR
See Page6
S3
U14
NOTE3
option
LDC1 +24V
LDC2 +24V
AC1N
Fluorescent light
EL1
option
FAREA EMG
RAREA EMG
READY CNF57
NOTE4
Short U11-U14
NOTE2
NOTE1: This DIAGRAM shows 200V. See PAGE 7.
NOTE4: J66,J67 are OPTIONAL(Flourescent light).
NOTE5: QF24,J614 are OPTIONAL.
NOTE3: GB1,J111,J12,J13,are OPTIONAL.(UPS)
NOTE2: J17 is available, when UPS option is not selected.
CNF31 FAN2
YTF-80W
ATS-M
ATS20A
ATS-H
FAN1
+EMG
FAN/
1
2
EMG7
N1016
0V
0V
+24VC
+24V
+24V
FG
+24E
TC11 1KVA
NF11
GS21
DC24V 14A
+24V
0
N
FG
L
SB12
EMG SWITCH
QF24 2A
P22
P23
TM11 2.48KVA
W
V
U
PT1
M12
CONVEYOR
MOTOR 1
SQ73
PUORG
1234
ON
OFF
56
J612
I/O HEAD
KGBIOH
CONV I/O A
KGACTRL
CONV I/O B
QF31 10A
QF11 set13A
SQ01
Y1ORG
SQ02
W1ORG
SQ05
Y1OT
QF21 5A
P40
P21
HL11
ALARM(RED)
ERROR(YELLOW)
RUN (GREEN)
T1821
T1820
T1822
QS11
R
S
T
R1
S1
T1
B
A
S10
SB11
EMG SWITCH
SQ150
COVER
LIMIT SW
SQ151
COVER
LIMIT SW
J613
QF32 2A
BUZZER
T1830
B
1234
ON
OFF
56
C
D
QF22 5A
W AXIS BRAKE
PU AXIS BRAKE
CRT2
CRT1
MSP FRONT/REAR (J271,J274)
4
2
3
1
6
5
E
J84
J3
J82
J88
J609
J606
J610
J607
J608
J15
J603
J602
J605
J14
J4
J601
J89
J78
J77
J16
J19
J508
J508
J205
J507
J509
J511
J18
J21
J21
J511
J509
J507
J72
J220
J67
J506
J506
J167
J103
J111
J101
J67
J67
J165
J163
J115
J45
J173
J93
J219
J219
J3
J44
J86
J71
J73
J108
J91 J90
J114
J172
J43
J171
J63
J61
J62
J164
J166
J167
J161
J203
J168
J41
J102
J101
J258
J220
J202
J201
J222
J223
J224
J87
J17
J17
J47
J27
J17
J614
J12
J611
J11
J47
J48
J22
J24
J83
J85
J81
J74
J13
J24
J111
J203
J175
J41
J695
J58
J24
J170
J690
J690
J690
J48
J22
J21
J695
J690
J697
J691
J66
J220
J203
J168
J167
J40
J30
J220
J22
J63
J174
J175
J220
J203
J162
J102
J41
J221
J205
J252
J251
J219
J41
J170
J52
J51
J58
J24
J604
J79
J80