88xg_100xg电气线路图.pdf - 第16页
PAGE 15 YV88Xg (KGA) Control W iring Diagram Emergency stop circuit diagram 1 2 3 4 5 6 7 8 9 10 1 2 B5 A6 B6 A7 B7 A8 B8 A9 B9 1 2 3 4 5 6 7 8 9 10 OT1 OT2 1 2 3 4 5 6 7 8 9 10 1 2 3 4 5 6 7 8 9 1 2 3 4 5 6 7 8 9 10 11 …

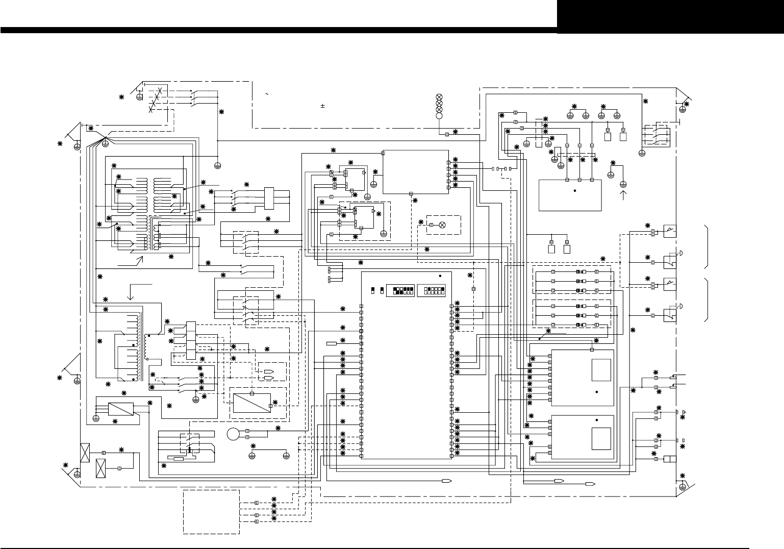
PAGE 14
YV88Xg (KGA) Control Wiring Diagram
Overall connections diagram
POWER SOURCE
3 50/60Hz
R
S
T
>2.5sq
W50
V50
U50
W51
V51
U51
0V
190V
200V
208V
220V
240V
0V
190V
200V
208V
220V
240V
0V
200V
208V
220V
240V
0V
190V
200V
208V
220V
240V
0V
190V
200V
208V
220V
240V
0V
190V
200V
208V
220V
240V
190V
N
W50
V50
U50
S1
R1
T1
240V
220V
208V
200V
190V
0V
240V
220V
208V
200V
190V
0V
0V
100V
U10
S1
R1
NOTE1
U12
V10
V10
V10
U14
V10
XT21
U60
V60
U61
V61
V10
V10
W51
V51
U51
W52
V52
U52
V54
U54
5
3
1
KM10
2
4
6W52
V52
U52
W54
200/208/220/240
NOTE1
PE
V10
L1
L2
L3
12
34
56
MAIN SWITCH
CONNECTION BOARD
CNF1
CNF2
CNF3
CNF4
CNF5
CNF6
CNF7
CNF13
CNF10
CNF11
CV ACIN
CV JP1
CV JP2
CMTR1
CNF26
CNF27
CNF28
CNF29
CNF32
CNF33
CNF34
CNF14
CNF12
CNF30
FAN2
FAN1
A1 CONTROL BOX ASSY
CN5
I/O1
I/O2
CONTROL
BOX ASSY
CONVEYOR1 H
CONVEYOR1 L
CONVEYOR
SPEED
ADJUSTMENT
CONV1 FG
DUCT Y FLEXIBLE
X-FRAME X-FRAME
See Page 2
I/O HEAD
CV1H
CV1L
I/O
RIGHT
DUCT X
+24V CN5
CNX1
+24E EMG
24V
I/O
C1
UPS
CNF15
CNF16
CNF18
CNF21
CNF19
CNF24
CMTR2
C1
C2
CNF8
CNF9 CONTACTA2
CONTACTA1
EMG
YPU/HHK
FEEDER PWR
PATLITE
TF1
TF2
TF3
FAN1
EPW1
EPW2
EPW3
SERVICE KEY
FRONT PANEL
STOP F
FRONT SIDE
REAR SIDE
YTF-80W
S1 S2 S4
U11
V10
NOTE1: This DIAGRAM shows 200V.
F1 F ERROR
F2 F ERROR
F AREA
R1 F ERROR
R2 F ERROR
R AREA
See PAGE 4
STOP R
COVER R
ATS-M
SENSOR PWR
LED DRIVER
S1
R1
ATS20A
CN2(DC24V IN)
CN6(EMG)
CNX1(COMU1)
CNX2(COMU2)
CN7(DI1)
CNX1_A
CNX1(COMU1)
CN2(DC24V IN)
CNX2_A
CNX1_B
CONV
I/O
A
CONV
I/O
B
CN2_A
CN2_B
CN6_A
HOUR METER
COUNT RESET/
BA IN/
CN7_A
PREV A
CN8(EMG/INT)
CN8_A
CN8_B
CN8(EMG/INT)
See PAGE 5
See PAGE 4
See PAGE 5
See PAGE 3
N1005
N1006
N1105
N1106
LEFT
CN5
CN5
CN5
Y1OT Y1ORG
CN3(ORG/OT)
CN3_A
W1ORG
HCN5
Y1OT/
Y1ORG
Y1OT/
Y1ORG
FLEXIBLE
+24V
+24V
H/+24V
CNX1
I/O
+24V IN
OPTION +24V
LR OUT/
CN15_A
CN15(DO5)
F.FDR1
F.FDR2
F.AREA+24V
R.FDR1
R.FDR2
R.AREA+24V
+EMG
FAN/
+EMG
FAN/
CM1
TG1
I/O PWR
I/O PWR TF
CNF40
CNF35 Y1 OT
NEXT A
BP OUT CNF37
CNF50CONV VR
I/O CVA1
NEXT B
PREV B
I/O H1OT
I/O H2OT
CNF38I/O CVA3
CN15(DO5)
CN15_B
53 54
61 62
73 74
83 84
KM10A
EMG7
T1821B
V61
U61 U64
EMG6
+24VC
V64
CNF47BUZZER
BUSY IN/
BA OUT/
BUSY OUT/
UR IN/
UR OUT/
LR IN/
U60
V60
220V
200V
200V
220V
220V
Rating 4.4kVA MAX.
NEXT
INTERFACE
PREVIOUS
INTERFACE
I/O CVA2
CNF20 OPTION DO
CNF25 EMG OP
CNF58COVER LIGHT
CNF39S.P LAMP
TF5
TF6
EMG SPARE
OP FEEDER PWR
TF4
I/OI/O
I/O
EMG
T1822
CN4(DI3)
+24V
FAN
AC IN
PU BK
NOTE4: J66,J67 are OPTIONAL(Flourescent light).
CN2
CN2
AC100V
D-CAM1
LDC2 +24V
D-CAM2
L.CTL1
L.CTL2
LDC1 UP
LDC2 UP
LDC1 UPPER
LDC1 LOWER
LDC2 UPPER
LDC2 LOWER
LDC1
LDC2
OPTION
W BK
CN4_B
PUORG
CN1
A2
23
A1
KM10
14
13
24
UPS
AC100V
IN
AC100V OUT
L.CTL1
L.CTL2
U10
U10
U15
U12
Fluorescent light
EL1
V10
V10
V10
U14
U14
V10
See PAGE 2
380/400/416V 10%
GB1
+24V
FAN
NOTE5: QF24,J614 are OPTIONAL.
option
CNF46
CNF49
CNF45
CNF44
CNF42
CNF48
CNF43
CNF41
CNF53
CNF54
F AREA SENSOR
R AREA SENSOR
NOTE3: GB1,J111,J12,J13,are OPTIONAL.(UPS)
See Page6
S3
NOTE6: J93 is for SF HEAD.
NOTE6
U14
U14
option
NOTE3
READY CNF57
AC1N
COVER F
FAREA EMG
RAREA EMG
CN1 A
LDC1 +24V +24V
+24V
CNF31 FAN2
See PAGE 2
NOTE2
Short U11-U14
NOTE2: J17 is available, when UPS option is not selected.
NOTE4
NOTE5
See PAGE 7.
ATS-H
1
2
FG
+24E+24V
N1016
0V
+24VC
EMG7
0V
+24V
SB11
EMG SWITCH
SQ150
COVER
LIMIT SW
SQ151
COVER
LIMIT SW
QF32 2A
BUZZER
T1830
B
C
D
1234
ON
OFF
56
TC11 0.75KVA
QF22 5A
NF11
GS21
DC24V 14A
+24V
0
N
FG
L
SB12
EMG SWITCH
P22
P23
TM11 2.48KVA
W
V
U
QF24 2A
PT1
M12
CONVEYOR
MOTOR 1
SQ73
PUORG
1234
ON
OFF
56
CONV I/O A
KGACTRL
CONV I/O B
I/O HEAD
KGAIOH
QF31 10A
QF11 set13A
SQ05
Y1OT
SQ01
Y1ORG
SQ02
W1ORG
QF21 5A
P40
P21
HL11
ALARM(RED)
ERROR(YELLOW)
RUN (GREEN)
T1821
T1820
T1822
QS11
R
S
T
R1
S1
T1
B
A
S10
W AXIS BRAKE
PU AXIS BRAKEMSP FRONT/REAR (J271,J274)
CRT2
CRT1
4
2
3
1
6
5
E
J84
J3
J82
J88
J603
J602
J605
J606
J610
J601
J77
J78
J14
J607
J608
J609
J15
J16
J11
J11
J47
J604
J611
J613
J79
J80
J13
J612
J17
J614
J17
J48
J22
J24
J81
J85
J690
J697
J691
J695
J22
J74
J111
J58
J695
J690
J690
J690
J21
J49
J50
J52
J24
J175
J176
J48
J17
J47
J27
J12
J19
J51
J58
J24
J18
J21
J89
J21
J72
J511
J507
J509
J67
J507
J509
J511
J508
J508
J111
J205
J101
J507
J506
J103
J167
J41
J71
J73
J108
J170
J43
J171
J251
J219
J44
J91 J90
J114
J172
J93
J3
J86
J67
J163
J165
J164
J166
J201
J63
J62
J61
J167
J223
J87
J222
J202
J224
J102
J41
J221
J162
J205
J161
J252
J101
J258
J161
J203
J168
J41
J102
J220
J4
J83
J41
J24
J203
J203
J220
J40
J220
J203
J168
J167
J63
J174
J175
J220
J219
J205
J66
J219
J30
J67
J220

PAGE 15
YV88Xg (KGA) Control Wiring Diagram
Emergency stop circuit diagram
1
2
3
4
5
6
7
8
9
10
1
2
B5
A6
B6
A7
B7
A8
B8
A9
B9
1
2
3
4
5
6
7
8
9
10
OT1
OT2
1
2
3
4
5
6
7
8
9
10
1
2
3
4
5
6
7
8
9
1
2
3
4
5
6
7
8
9
10
11
12
13
14
15
16
17
18
19
20
21
22
1
2
3
4
5
6
7
8
9
10
11
12
13
14
15
16
17
18
19
20
21
22
+24V
OT3
OT4
1
2
3
4
5
6
7
8
9
OT1
OT2
CN4
CN6
CN3
OT1
OT2
1
2
3
+24V
1
2
3
OT
1
2
3
+24V 1
2
3
OT SQ05
+24V
OT1
OT2
P21
+
-
+24V
P22
+
-
+
-
OT3
OT4
+24V
A1
A2
A3
A4
A5
A6
A7
A8
A9
A10
B1
B2
B3
B4
B5
B6
B7
B8
B9
B10
A1
A2
A3
A4
A5
A6
A7
A8
B1
B2
B3
B4
B5
B6
B7
B8
A1
A2
A3
A4
A5
A6
A7
A8
A9
A10
B1
B2
B3
B4
B5
B6
B7
B8
B9
B10
A1
A2
A3
A4
A5
A6
A7
A8
B1
B2
B3
B4
B5
B6
B7
B8
OT4
OT5
CNF8
CNF12
EMG1A
CONNECTION BOARD P40
A1
A2
A3
A4
A5
A6
A7
A8
A9
A10
B1
B2
B3
B4
B5
B6
B7
B8
B9
B10
CNF13
1
2
CNF9
A1
A2
A3
A4
A5
A6
A7
A8
A9
A10
B1
B2
B3
B4
B5
B6
B7
B8
B9
B10
1
2
OT1
EMG6
EMG7
+24V
+24E
X OT
Y OT
+24V
EMG7
+24VC
+24VC
T1821B
N1016
0V
1
2
3
4
5
6
7
8
9
10
CN5
A1
B1
A2
B2
A3
B3
A4
B4
A5
A10
B10
A11
B11
A12
B12
A13
B13
B5
A6
B6
A7
B7
A8
B8
A9
B9
A1
B1
A2
B2
A3
B3
A4
B4
A5
A10
B10
A11
B11
A12
B12
A13
B13
OT
0V
N2426
OT1
OT2
OT1
OT2
0V
EMG1B
T1836
T1834
T1835
0V
T1830
T1820
T1821
T1822
T1831
T1833
T1832
0V
10
9
8
7
6
5
4
3
2
1
1
2
3
4
CNF48
CNF35
0V
0V0V
OT3
OT4
N1003
I/O BOARD CONVEYOR A
10
9
8
7
6
5
4
3
2
1 EMG1B
EMG1C
EMG1C
EMG1D
EMG1D
EMG1E
EMG2
EMG2A
EMG2D
EMG3
0V
OT
SQ206
1
2
3
4
I/O BOARD HEAD
1
2
+24VC
XOT
YOT
0V
+24VN
COVER R
H CN5
H CN5
10
CNF15
11
8
1
11
7
10
9
3
0V
6
4
1
5
+24VP
8
12 12
7
3
EMG1
2
6
9
EMG1A
2
5
4
EMG6
E60
+24V
0V
+24VA
EMG1C
EMG1E
COVER F
1
2
EMG2
EMG2D
2
EMG1D
1
STOP F
1
1
EMG2C
2
1
2
SB11
EMG.SW FRONT
2
EMG1B
2 SQ150
COVER LIMIT SW REAR
STOP R
SB12
2
EMG.SW REAR
1 COVER LIMIT SW FRONT
EMG2A
SQ151
EMG1D
1
1
EMG1C 2
1
3
4
3
1
4
22
CNF53
22
11
CNF54
4
33
4
55
55
+24VN
AREA
0V
+24VN
AREA
0V
+24VN
AREA
0V
3
L
3
1
EMG
D-MAN
D-MAN
EMG1G
D-MAN
.
J
M
.
EMG1A
1
2
2
3
G
J
3
M
FRONT PANEL
3
EMG
1
K
EMG
1
G
11
L
H
EMG1G
D-MAN
A
K
EMG
2
H
2
3
2
EMG1
2
EMG.SW PROG.UNIT
L
G
EMG1A
M
M
.
.
EMG1A
J
EMG1
DMAN SW.PROG.UNIT
E30
EMG1
H
MSP (A3)
K EMG2C
K
L
MSP SHORT
J
G
A
H
A
2
1
EMG SERVO 1A
1
C/R
SERVO 1B
2
GOOD
1
EMG SYSTEM
2
1
1
KV1-CONTROLLER
EMG
EMG
2
2
G
MSP SHORT
A
H
DMAN SW.PROG.UNIT
H
.
EMG1A
J
M
.
MSP (A3)
G
L
K
M
EMG.SW PROG.UNIT
E30
EMG1A
EMG2C
L
EMG1
EMG1
K
J
AA
REAR PANEL
LED7:EMG S/W R(112)
LED1:X1OT
LED10:C/R GOOD
LED2:X2OT
LED18:TF COVER LIMIT REAR1
LED11:TF EMG S/W1
LED17:COVER LIMIT REAR
LED15:TF COVER LMT F2
LED20:R AREA
LED6:EMG S/W MSP
LED16:F AREA
LED13:COVER LMT F
LED5:EMG1 SPARE
LED9:EMG S/W F
LED4:T,Y2OT
LED12:TF EMG S/W2
LED3:Y1OT
LED8:EMG S/W R
LED14:TF COVER LMT F1
OT1
OT1
OT2
OT3
OT3
OT3
OT4
OT4
OT4
OT4
LED19:TF COVER LIMIT REAR2
EMG1A
EMG1A
EMG1A
EMG1B
EMG1B
EMG1B
EMG2
EMG2A
LED21:EMG SPARE1
LED22:EMG SPARE2
LED23:EMG SPARE3
EMG2A
OT5
AREA
+24VN
0V
+24E
T1821B
A1EMG7
24+24V
KM10,KM10A
62
0V
23
EMG7
+24VC
54
61
EMG6
N1016
A2
+24VC
SEE POWER CIRCUIT DIAGRAM
13
53
14
8
7
6
5
4
3
2
1
8
7
6
5
4
3
2
1
CNF14
4
7
OT2
OT3
6
2
OT3
1
4
1
3
6 OT2
OT2
3
5
OT1
OT2
2
5
OT1
7
CNF10
EMG2
E20
E40
E30
E40
EMG3C
E20
E30
EMG6
EMG6
EMG7
EMG7
+24V
+24E
+24V
0V
AREA1
+24V
0V
+24V
0V
+24V
AREA1
0V
EMG1B
EMG1C
EMG1C
EMG1D
EMG1D
EMG1E
EMG2
EMG2A
EMG2D
EMG3
EMG1
EMG1A
EMG6
EMG7
E30
EMG2D
EMG1E
EMG2D
EMG3
EMG2C
EMG2D
EMG3B
EMG3C
EMG7
EMG6
AREA1
0V
0V
AREA2
OT5
EMG1
EMG1C
EMG1D
EMG1E
EMG2C
EMG2B
EMG1F
EMG2
EMG2D
EMG3
EMG3A
EMG3B
EMG3C
EMG4
EMG5
EMG6
2
1
1
CNF44
EMG3C
EMG1F
5
EMG3B
4
CNF49
READY OUT
OT3
1
3
1
4
EMG2
CNF27
EMG3A
CNF25
5
OT5
EMG2B
EMG4
EMG6
3
EMG1E
EMG1F
EMG2A
EMG5
EMG5
2
EMG4
6
EMG1
2
2
EMG3A
4
1
EMG3
2
OT2
3
CNF26
1
2
2
0VD
CNF11
1
CNF43
1
5
CNF45
1
1
3
EMG2C
5
4
CNF28
2
CNF57
EMG2B
2
2
EMG2C
EMG2B
EMG1F
EMG3A
OT5EMG1
EMG2A
EMG4
EMG2C
EMG3
EMG1E
EMG3C
EMG4
EMG6
EMG2
EMG5
EMG1F
EMG3B
S4
EMG3A
S3
EMG3B
EMG2B
EMG2D
EMG5
EMG3C
KA19
G6D-1A-AP
1
13
7
5
R AREA
12
ON
OFF
3456
RELAY
12
ON
OFF
3456
KA18
G6B-2214P-US-P6B
43+8
5
-1
6
F AREA
RELAY
RELAY
KA20
G6B-2214P-US-P6B
43+8
5
-1
6
+24V
+24V
+24V
+24VJ
+24VE
+24VE
0VD
+24VC

PAGE 16
YV88Xg (KGA) Control Wiring Diagram
Power supply circuit diagram
CRT1
1
2
3
4
5
U12
V10
POWER SOURCE
50/60Hz
GS21
DC24V
CN2
CN2
CONTROL BOX
10%
3
PROG.UNIT
A3
P21P23
P24
240V
220V
208V
200V
190V
0V
240V
220V
208V
200V
190V
0V
0V
U10
V10
V10
V10
U14
U11
U15
XT21
U14
V10
U54
V54
V10
W54
U14
+24V
1
2
3
4
5
6
7
8
1
2
3
4
5
6
1
2
3
4
5
6
7
8
1
2
3
4
5
6
CNF16
CNF18
12345..12
CNF15
1234
1234
CNF21
+24VI
+24VF
+24VH
+24V
+24V
U64
V64
CONNECTION
BOARD
CNF1
12345..12
1234 1122
1234
CNF29
CNF41
1
2
1
2
1
2
1
2
+24V
P40
SEE EMERGENCY
CIRCUIT DIAGRAM
0V
190V
200V
208V
220V
240V
0V
190V
200V
208V
220V
240V
0V
200V
208V
220V
240V
0V
190V
200V
208V
220V
240V
0V
190V
200V
208V
220V
240V
0V
190V
200V
208V
220V
240V
190V
N
W50
V50
U50
R1
S1
T1
S1
R1
T1
S1
R1
200/208/220/240V
L1
L2
L3
R1
S1
T1
R
S
T
NOTE1:THIS DIAGRAM SHOWS 200V
SEE INTERCONNECTION DIAGRAM (PAGE 6)
FAN1
FAN2
NOTE1
380/400/416V
>2.5sq
FG
I/O BOARD HEAD
1
3
5
2
4
6
See emergency circuit diagram
W50
V50
U50
W51
V51
U51
5
3
1
KM10
2
4
6W51
V51
U51
W52
V52
U52
200V
200V
220V
220V
220V
V60
U60
U60
V60 V61
U61
W52
V52
U52
W54
V54
U54
73
83
74
84
U12
V61
U61
V64
U64
0V
0V
0V
0V
0V
0V
0V
+24VJ
0V
+24VJ
0V
CNF40
ABABABABAB
344553
+24VN
0V
+24VN
0V
I/O BOARD CONVEYOR,A
I/O BOARD CONVEYOR,B
0V
+24V
CN2
0V
+24V
0V
+24V
I/O BOARD
CONVEYOR,PP
FOR YTF
12
12
123456789
1
0
11
12
123456789
1
0
11
12
SENSOR
POWER
0V
0V
0V
0V
0V
0V
FOR ATS
AREA SENSOR
FEEDER FLOATING SENSOR
POWER OF CONVEYOR MOTOR
FOR YTF
Rating 4.4kVA MAX
KM10A
+24VN
+24VN
+24VN
+24VN
+24VN
+24VN
1
2
1
2
R
S
T
MAX14A
CM
FAN
FAN
HEAD +24V
+24V
0V
100V
U10
U10
UPS
AC100V
IN
AC100V OUT
GB1 OPTION
U11
V10
V10
U14
V10
V10
CRT2
U13
V10
FG
V10
V10
V10
V10
V10
U14
1
11
53
V01
W
(GRAY)
4
W01
Fluorescent light
MTG1
option
(WHITE)
M12
MTG2
EL1
V
5
(BLACK)
6
3
U
3
MOTOR 1
1
22
CNF4
22
3
4
U62
CONVEYOR
(25W)
6
2
1
CNF58
1
2
+24V
0V
+24V
0V
1122
ABABABABAB
344553
LDC1
FAN
0V
0V
0V
0V
0V
+24VO
+24VO
+24VO
+24VO
+24VO
D-CAM1
LDC2
D-CAM2
(+24V)
A1
1122
ABAB..B
6
2
.B
1
AA
621
.BB
LCD1
LCD2
+12V
0V
+12V
0V
1
2
V10
V10
U14
U14
V10
V10
4
2
3
1
6
5
E
1
2
1
2
QF32 2A
1
2
1
2
TC11 0.75KVA
TM11 2.48KVA
W
V
U
NF11
QF21 5A
1
2
1
2
1
2
1
2
QS11
QF11 set13A
QF31 10A
1
2
1
2
RXE7
2.5A
RXE5
2.5A
RXE1
1.1A
RXE11
2.5A
RXE4
0.5A
RXE8
2.5A
RXE1
1.85A
RXE1
1.85A
RXE1
1.85A
QF22 5A
QF24 2A
1
2
3
1
2
3
1
2
3
1
2
3
+24VA +24VF
+24VA +24VH
+24VA +24VI
+24VA +24VO+24VA +24VJ
+24VA +24VN
AC220V for MOTOR DRIVER POWER
AC100V for CONTROLAC100V
DC24V
for CONV.MOTOR