00191016-01.pdf - 第546页
Betriebsanleitung Linienrechner UNIX 17.3 Beschreibung der B auelemente und Leiterplatten Software-V ersion 403.xx Ausgabe 06/97 17.3.1 Leiterplatte 1: einfache Schaltung 17 - 1 9 39. Im Menü DA TEI die Opti on Ende ankl…

17.3 Beschreibung der Bauelemente und Leiterplatten Betriebsanleitung Linienrechner UNIX
17.3.2 Leiterplatte 2: Schwerpunkt Gehäuseform-Beschreibung Software-Version 403.xx Ausgabe 06/97
17 - 20
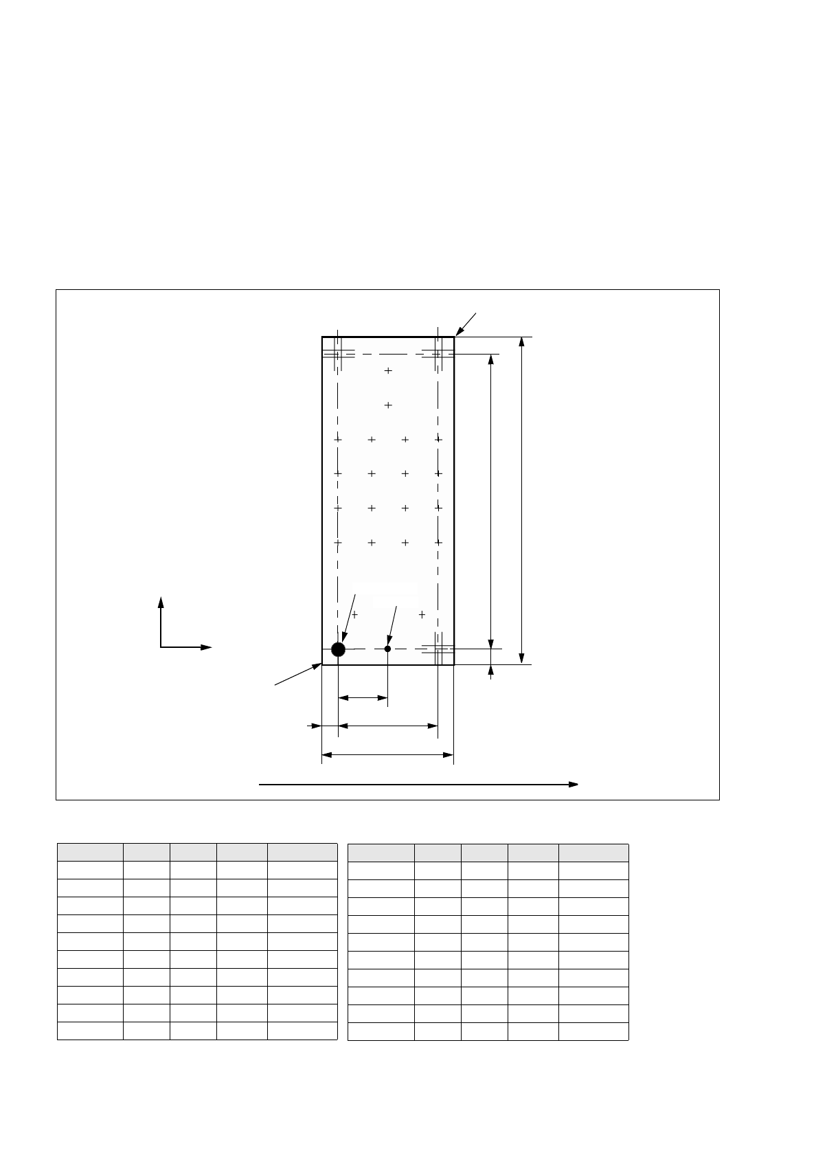
PM1
PM2
PM3
Inkpunkt
LP-Nullpunkt
40
96
5
5
30
86
15
17.3.2 Leiterplatte 2: Schwerpunkt Gehäuseform-Beschreibung
Leiterplatte 2 ist eine einfache Schaltung mit drei verschiedenen Bauelementen.
Die Gehäuseformen sind in der GF-Bibliothek nicht enthalten, sie müssen neu beschrieben werden. Dazu kön-
nen die Gehäuseform-Nummern von 1501 bis 32767 der Kunden GF-Bibliothek verwendet werden.
Die Leiterplatte wird siebgedruckt, die Bauelemente sollen nur bestückt werden. Es ist keine CRDL-Prüfung
vorgesehen. Es soll eine Leiterplatten-Lageerkennung durchgeführt werden, dazu sind drei Paßmarken (PM)
vorhanden. Ein Inkpunkt ist ebenfalls vorhanden.
Bei den Bauelementen handelt es sich um ein PDC, ein regelmäßiges FDC und ein unregelmäßiges FDC. Die
Bauelemente werden in 0°-Lage abgeholt.
BE-Name X Y Winkel Kommentar
Comp4 0.00 61.00 0.00 Pos1
Comp4 10.00 61.00 0.00 Pos2
Comp4 20.00 61.00 0.00 Pos3
Comp4 30.00 61.00 0.00 Pos4
Comp4 0.00 51.00 0.00 Pos5
Comp4 10.00 51.00 0.00 Pos6
Comp4 20.00 51.00 0.00 Pos7
Comp4 30.00 51.00 0.00 Pos8
Comp4 0.00 41.00 0.00 Pos9
Comp4 10.00 41.00 0.00 Pos10
Tab. 17.3-3 Bestückpositionen Leiterplatte 2
Comp4 20.00 41.00 0.00 Pos11
Comp4 30.00 41.00 0.00 Pos12
Comp4 0.00 31.00 0.00 Pos13
Comp4 10.00 31.00 0.00 Pos14
Comp4 20.00 31.00 0.00 Pos15
Comp4 30.00 31.00 0.00 Pos16
Comp5 15.00 81.00 0.00 Pos17
Comp5 15.00 71.00 0.00 Pos18
Comp6 5.00 10.00 -90.00 Pos19
Comp6 25.00 10.00 -90.00 Pos20
BE-Name X Y Winkel Kommentar
Transportrichtung
X
Y
LP-Koordinatensystem 0°
LP-Höhe= 1,5 mm
Ecke 2
Abb. 17.3.4 Abmessungen Leiterplatte 2
Ecke 1

Betriebsanleitung Linienrechner UNIX 17.3 Beschreibung der Bauelemente und Leiterplatten
Software-Version 403.xx Ausgabe 06/97 17.3.1 Leiterplatte 1: einfache Schaltung
17 - 19
39. Im Menü
DATEI
die Option
Ende
anklicken.
Der Paßmarken-Editor wird geschlossen.
40. Im Nutzen-Editor im Menü
DATEI
die Option
Ende
anklicken.
Der Nutzen-Editor wird geschlossen.
Inkpunkt definieren:
es ist kein Inkpunkt vorhanden.
Nutzen und Einzelschaltungen erzeugen:
es sind keine Nutzen und Einzelschaltungen vorhanden.
So werden die Bestückpositionen eingegeben:
41. Im Leiterplatten-Editor die Ikone Selektieren aktivieren.
42. Die Leiterplatte (Rechteck) anklicken.
Das Rechteck ist hellgrün markiert.
43. Im Menü
DIENSTE
die Option
BP-Editor...
anklicken.
Der Bestückpositions-Editor wird geöffnet.
44. Den Cursor im Eingabefeld positionieren. Die Bestückpositionen laut
Tabelle 17.3-2 auf Seite 13
einge-
ben. Die einzelnen Angaben durch ein Leerzeichen trennen. Jede Zeile mit der Eingabetaste bestätigen.
45. Nach Beendigung der Eingabe die Ikone Check aktivieren.
Die eingegebenen Werte werden geprüft und in den Spalten angeordnet (siehe
Abb. 17.3.3
).
Abb. 17.3.3 Bestückpositions-Editor für Leiterplatte1
46. Im Menü
DATEI
die Option
Ende
anklicken.
Der Bestückpositions-Editor wird geschlossen.
So werden die Leiterplatten-Daten gesichert:
47. Im Leiterplatten-Editor im Menü
DATEI
die Option
Sichern
anklicken.
Die Leiterplatten-Daten werden gesichert.
48. Im Menü
DATEI
die Option
Ende
anklicken.
Der Leiterplatten-Editor wird geschlossen. Die Beschreibung der Leiterplatte 1 ist beendet.
Name
des PM-Sets eingeben;
# = keine Paßmarken für die
Bestückposition definiert
b = Bestücken
k = Kleben
d = Dispensen (Lotpaste)
n = Nachbearbeiten
s = Sperren (für Bestückung)
Nummer
der Bestückebene
eingeben;
# = keine Ebene für die Be-
stückposition definiert

17.3 Beschreibung der Bauelemente und Leiterplatten Betriebsanleitung Linienrechner UNIX
17.3.1 Leiterplatte 1: einfache Schaltung Software-Version 403.xx Ausgabe 06/97
17 - 18
Es ist kein Inkpunkt vorhanden.
Es sind keine Nutzen und Einzelschaltungen
vorhanden.
DATEI
Sichern
DATEI
Ende
Bestückpositionen
eingeben
Inkpunkt definieren
Leiterplatten-Daten
sichern
Nutzen und Einzel-
schaltungen erzeu-
gen
Fortsetzung von Seite 17-16
LP-Beschreibung
Bestückpositions-Editor