FX-3-Rev13(-J).pdf - 第62页
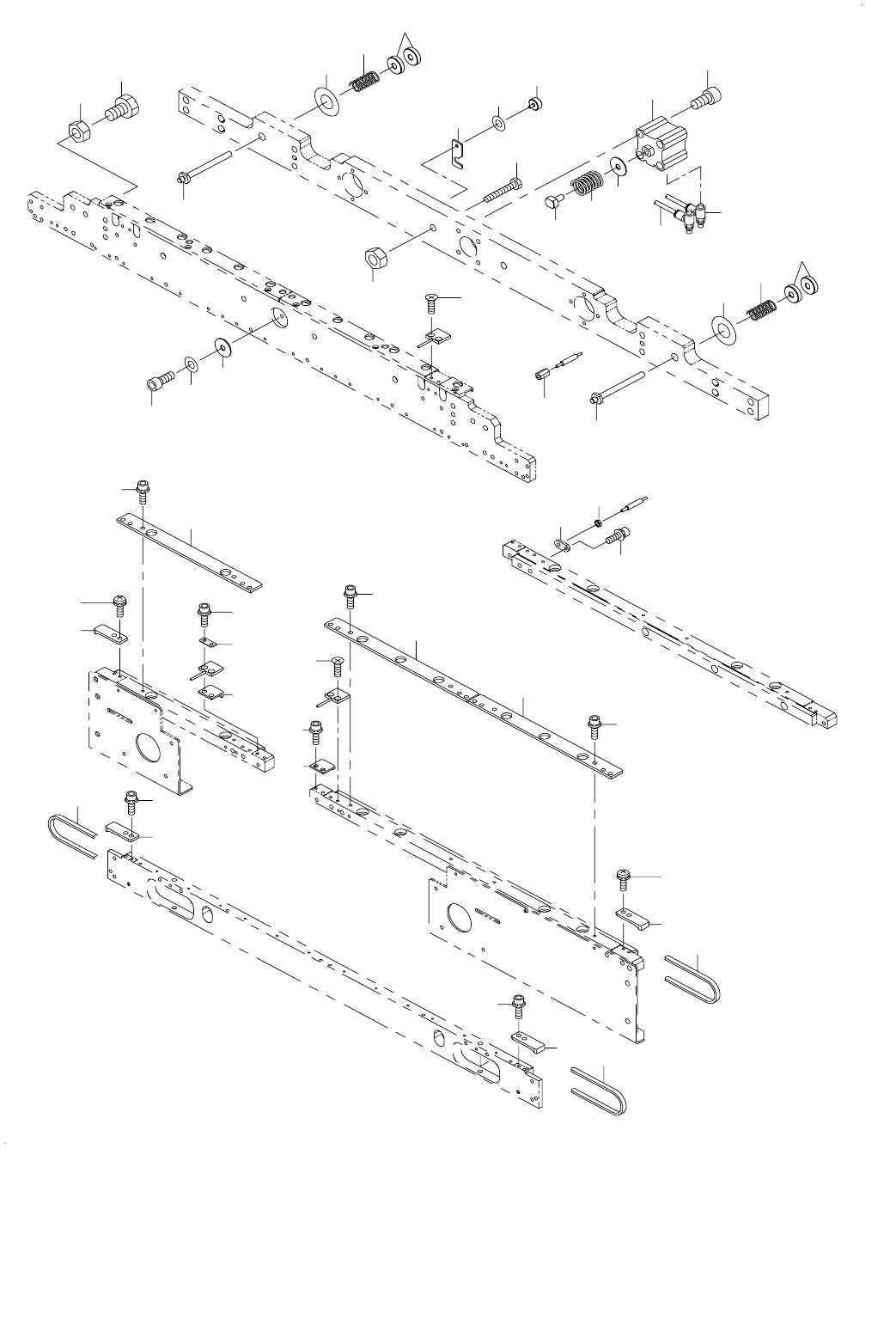
- 57 - 29. PWB CONVEYOR COMPONENTS (4) 基板搬送関係(4) 3 2 3 4 4 4 5 5 6 6 5 7 8 9 10 11 15 16 18 17 19 20 21 26 24 25 30 27 31 28 28 29 32 35 29 35 32 33 34 38 34 39 1 22 23 12 14 13 5 7 30 37 36

- 56 -
NOTE( 注記 ) *INSTALLATION POSITION AND DIRECTION VARY IF THE PWB TRANSFER
REFERENCE IS DIFFERENT.
基板搬送基準が異なると取付位置、方向が変わります。
REF.NO NOTE PART NO D E S C R I P T I O N
品 名
Qty
1 400-46898 RAIL STAND A
レールスタンド A
2
2 400-46899 RAIL STAND B
レールスタンド B
2
3 SL-6083092-TN SCREW
座金付き六角穴ボルト
8
4 400-46900 MOVABLE RAIL STAND
可動レールスタンド
4
5 SL-6041692-TN SCREW
座金付き六角穴ボルト M 4 L =16
16
6 401-22960 GUIDE_BAR
ガイドバー
2
7 SL-6063592-TN SCREW
座金付き六角穴ボルト M 6 L =35
8
8 PH-0600202-S0 PIN 6X20
平行ピン 6 X 20
4
9 400-46902 LINEAR WAY-B
リニアウェイ− B
2
10 SM-6031602-TN SCREW M3 L=16
六角穴ボルト
16
11 400-46905 RAIL STAND SPACER
レールスタンドスペーサ
2
12 SL-6063592-TN SCREW
座金付き六角穴ボルト M 6 L =35
4
13 400-46944 SCREW SHAFT
スクリュウシャフト
2
14 400-46943 SCREW NUT SPACER
スクリューナットスペーサ
2
15 SM-6045052-TN SCREW M4 L=50
六角穴ボルト M 4 L =50
8
16 WP-0430801-SC WASHER 4.3X9X0.8
平座金 4.3X9X0.8
8
17 WS-0410002-KN SPRING WASHER
ばね座金 M 4
8
18 SB-1080002-00 SIDE BEARING
サイドベアリング
4
19 E2012-721-000 ADJUST PLATE
アジャストプレート
2
20 SL-6031492-TN SCREW
座金付き六角穴ボルト
4
21 WP-0320500-SF WASHER 3.2X7X0.5
平座金小形丸 M 3
8
22 WP-0330516-SC WASHER 3.3X8X0.5
平座金 3.3X8X0.5
4
23 SM-6030602-TN HEX SCREW M3 X 6
六角穴ボルト M 3 X 0.5 L =6
4
24 E2141-721-000 STOPPER COLLAR
ストッパカラー
2
25 SM-8040302-TP SETSCREW
止めねじ
4
26 E4561-729-000 TIMING PULLEY A (30)
幅調タイミングプーリ A(30)
2
27 SM-8040602-TP SCREW M4X0.7 L=6
止めねじ
4
28 E4734-729-000 TIMING BELT S (30E)
幅調タイミングベルト S(30 E)
1
29 400-46877 IDLER BRACKET ASM
アイドラブラケット組
2
30 400-46955 IDLER BRACKET
アイドラブラケット
(1)
31 E4563-729-000 WIDTH ADJUST IDLER PULLEY (30)
幅調アイドラプ−リ(30)
(1)
32 E2017-715-000 M LINER BUSH
M ライナブッシュ
(2)
33 E2018-715-000 PULLEY SLEEVE
プーリ スリーブ
(1)
34 SL-6052592-TN BOLT
座金付き六角穴ボルト
(1)
35 WP-0531001-SC WASHER
平座金みがき丸 M 5
(1)
36 SL-6051292-TN BOLT
座金付き六角穴ボルト
4
37 400-46997 IDLER PLATE
アイドラプレート
1
38 E4563-729-000 WIDTH ADJUST IDLER PULLEY (30)
幅調アイドラプーリ(30)
1
39 E2017-715-000 M LINER BUSH
M ライナブッシュ
2
40 E2018-715-000 PULLEY SLEEVE
プーリ スリーブ
1
41 SL-6052592-TN BOLT
座金付き六角穴ボルト
1
42 WP-0531001-SC WASHER
平座金みがき丸 M 5
1
43 SL-6051292-TN BOLT
座金付き六角穴ボルト
2
44 E4561-729-000 TIMING PULLEY A (30)
幅調タイミングプーリ A(30)
2
45 SM-8040602-TP SCREW M4X0.7 L=6
止めねじ
4
46 400-00870 MOTOR PULLEY C
モータプーリ C
5
47 SM-8030602-TP SCREW M3X0.5 L=6
止めねじ M 3 X 0.5 L =6
10
48 E2051-721-000 DRIVE BELT
ドライブベルト
5
49 400-46956 CONVEYOR MOTOR BRACKET
コンベアモータブラケット
1
50 400-00869 MOTOR ADJUST PLATE
モータアジャストプレート
1
51 SL-6051292-TN BOLT
座金付き六角穴ボルト
2
52 400-48074 CENTER MOTOR ASM
センタモータ組
1
53 SL-6041242-TN BOLT
座金付き六角穴ボルト
4
54 400-00870 MOTOR PULLEY C
モータプーリ C
1
55 SM-8030602-TP SCREW M3X0.5 L=6
止めねじ M 3 X 0.5 L =6
3
56 SL-6051292-TN BOLT
座金付き六角穴ボルト
2
57 400-46956 CONVEYOR MOTOR BRACKET
コンベアモータブラケット
1
58 400-00869 MOTOR ADJUST PLATE
モータアジャストプレート
1
59 SL-6051292-TN BOLT
座金付き六角穴ボルト
2
60 400-48075 JOINT MOTOR ASM
ジョイントモータ組
1
61 SL-6041242-TN BOLT
座金付き六角穴ボルト
4
62 400-00870 MOTOR PULLEY C
モータプーリ C
1
63 SM-8030602-TP SCREW M3X0.5 L=6
止めねじ M 3 X 0.5 L =6
3
64 400-46941 DRIVE SHAFT
ドライブシャフト
1
65 SB-1080002-00 SIDE BEARING
サイドベアリング
2
66 WP-0320500-SF WASHER 3.2X7X0.5
平座金小形丸 M 3
4
67 WP-0330516-SC WASHER 3.3X8X0.5
平座金 3.3X8X0.5
2
68 SM-6030602-TN HEX SCREW M3 X 6
六角穴ボルト M 3 X 0.5 L =6
2
69 E2141-721-000 STOPPER COLLAR
ストッパカラー
1
70 SM-8040302-TP SETSCREW
止めねじ
2
71 400-46924 JOINT PULLEY BELT
ジョイントプーリベルト
1
72 SM-9061613-SC SCREW M6 L=16
六角ボルト M 6 L =16
2
73 NM-6060001-SC NUT M6
六角ナット M 6 1種
2
74 400-76695 JOINT GUARD
ジョイントガード
1
75 SM-3040652-TN SCREW M4 L=6
丸ねじ M 4 L =6
4
76 400-76696 JOINT GUARD SUPPORT
ジョイントガードサポート
2
77 CM-3003000-02 LABEL2 (25)
高温注意シール(25)
2

- 57 -
29.PWB CONVEYOR COMPONENTS (4)
基板搬送関係(4)
3
2
3
4
4
4
5
5
6
6
5
7
8
9
10
11
15
16
18
17
19
20
21
26
24
25
30
27
31
28
28
29
32
35
29
35
32
33
34
38
34
39
1
22
23
12
14
13
5
7
30
37
36

- 58 -
NOTE( 注記 ) *INSTALLATION POSITION AND DIRECTION VARY IF THE PWB TRANSFER
REFERENCE IS DIFFERENT.
基板搬送基準が異なると取付位置、方向が変わります。
REF.NO NOTE PART NO D E S C R I P T I O N
品 名
Qty
1 400-46994 STROKE SPACER A
ストロークスペーサ A
2
2 400-46921 PWB GUIDE J
PWB ガイド J
2
3 400-46931 PWB GUIDE IN-OUT
PWB ガイド IN − OUT
4
4 SL-6031092-TN SCREW
座金付き六角穴ボルト
12
5 E2046-725-000 PWB INNER
PWB インナ
8
6 SL-4031091-SC SCREW M3 X 10
なべ小ねじセムス
8
7 SL-6031092-TN SCREW
座金付き六角穴ボルト
8
8 400-46925 PWB INNER A
PWB インナ A
2
9 400-46926 PWB INNER B
PWB インナ B
2
10 SL-6030892-TN SCREW M3 L=8
座金付き六角穴ボルト M 3 L =8
6
11 SL-6031492-TN SCREW
座金付き六角穴ボルト
2
12 400-46935 CONVEYOR BELT S
コンベアベルト S
2
13 400-46936 CONVEYOR BELT J
コンベアベルト J
2
14 400-46937 CONVEYOR BELT IN-OUT
コンベアベルト IN − OUT
2
15 400-46939 FIBER BRACKET
ファイバブラケット
2
16 SL-6030892-TN SCREW
座金付き六角穴ボルト
2
17 400-46940 C-OUT PLATE
C − OUT プレート
1
18 400-46992 FIBER NUT
ファイバナット
1
19 SM-1030601-SC SCREW M3 L=6
皿小ねじ M 3 X 0.5 L =6
2
20 SM-1031001-SC SCREW M3X0.5 L=10
皿小ねじ M 3 X 0.5 L =10
2
21 NM-6040003-SC NUT M4
六角ナット M 4
2
22 E2076-721-000 BU HAND KNOB
BU ハンドノブ
2
23 WP-0430801-SC WASHER 4.3X9X0.8
平座金 4.3X9X0.8
2
24 PA-2501001-00 CYLINDER
シリンダ
1
25 SM-6053502-TN HEXAGONAL-HOLE BOLT M5 L=35
六角穴ボルト M 5 L =35
4
26 PC-0105080-00 SPEED CONTROLLER
スピードコントローラ
2
27 400-46945 SPRING SHAFT A
スプリングシャフト A
1
28 400-46946 SPRING SHAFT B
スプリングシャフト B
2
29 400-46947 ADJUST NUT A
アジャストナット A
4
30 400-46948 ADJUST WASHER
アジャストワッシャ
2
31 400-46950 SPRING A
スプリング A
1
32 400-46951 SPRING B
スプリング B
2
33 SM-9062003-SC SCREW M6 L=20
六角ボルト M 6 L =20
2
34 NM-6060001-SC NUT M6
六角ナット M 6 1種
4
35 WP-0841601-SC WASHER 8.4X17.4X1.6
平座金みがき丸 M 8
2
36 SM-6040502-TN BOLT
六角穴ボルト
1
37 WP-0430801-SC WASHER 4.3X9X0.8
平座金 4.3X9X0.8
1
38 BT-0400251-EA TUBE HOSE, BLUE
ウレタンホース 青
2.3
39 SM-9064003-SB SCREW
六角ボルト M 6 L =40
2