KE-3020维修调整要领书.pdf - 第213页
㪩㪼㫍㩷㪈㪅㪇㩷 㓈ׂ䇗ᭈ㽕乚к 14-4 䎔䎗䎐 䎕䎐䎔 䎐䎕䎑 ⬉⑤㺙㕂 ᵘ៤ 䎃 䎃 䎃 䎃 䎃 䎃 䎃 䎃 䎃 䎃 䎃 䎃 䎃 䎃 䎃 䎃 䎃 䎃 䎃 䎃 䎃 䎔䎗 䎐䎖䎐 䎔䎐䎔 䎃 䎃 ⬉⑤㺙㕂 ᵘ៤ 䎔 䎃 䎳䎶䎔䎃 䎳䎶䎗䎃 䎳䎶䎖䎃 䎦䎳䎔䎖䎃 䎦䎳䎔䎔 䎦䎳䎔䎕 䎦䎳䎕䎃 䎦䎳䎔䎗 䎦䎳䎚 䎦䎳䎘 䎦䎳䎙 䎦䎳䎛 䎦䎱䎓䎖䎜 䎰䎲䎱䎬䎃 䎦䎳䎗䎃 䎦䎳䎔䎓 䎦䎳䎜 䎦䎳䎔 䎳䎶䎙䎃 䎳䎶䎘䎃 䎳䎶䎕䎃…

㪩㪼㫍㩷㪈㪅㪇㩷
㓈ׂ䇗ᭈ㽕乚к
14-3
䎔䎗䎐䎕ˊ ⬉⑤㺙㕂䎃
䎔䎗䎐䎕䎐䎔ˊ䳏⑤㺙㕂ⱘᵘ៤䎃
⬉⑤㺙㕂㹿㺙㕂㚠䴶ⱘᎺেϸ䖍ᅝ㺙њ 䎕 ϾDŽ 䎔䎗䎐䎕䎐䎔䎐䎔ǃ 䎔䎗䎐䎕䎐䎔䎐䎕 㸼⼎ᵘ៤DŽ䎃
⬉⑤㺙㕂⬅ 䎧䎦 ⬉⑤ǃࠊ⫼㒻⬉఼ǃ⬉䏃ֱᡸ఼ㄝᵘ៤ˈ㺙㕂䯴ࠊ఼ˈ䰤䰥偅ࡼ㺙㕂ˈ䎽䕠㺙㕂ˈ
Ӵ䗕㺙㕂ˈ䌈㺙༈㺙㕂ㄝ䯵կ㒭 䎤䎦ǃ䎧䎦 ⬉⑤䫻䎃
䎧䎦 ⬉⑤ⱘ⫼䗨བϟĩ䎃
x䎃 䎎䎙䎹䎃䎋䎎䎘䎑䎚䎹̚䎙䎑䎖䎹ǃ䎳䎶䎔䎌䎃 ᴎẄᓣ䗕఼᭭˄ሖǃ䎖䎕䏐䏐 㒌ᏺ˅ࠊ⫼䎃
x䎃 䎎䎕䎗䎹䎤䎃䎋䎎䎕䎗f䎓䎑䎔䎹ǃ䎳䎶䎕䎌䎃 䗮⫼˄ࠊ఼䴶ᵓǃℹ䖯偅ࡼ఼ㄝ⫼˅䎃
x䎃 䎎䎕䎗䎹䎥䎃䎋䎎䎕䎗f䎓䎑䎔䎹ǃ䎳䎶䎖䎌䎃 䎽䕠 Ԏ᳡ᬒ఼ࠊ⫼䎃
x䎃 䎎䎕䎗䎹䎦䎃䎋䎎䎕䎗f䎓䎑䎔䎹ǃ䎳䎶䎗䎌䎃 ᅝܼ⬉䏃偅ࡼ⫼˄ҙ 䎨䎱 ᴎ˅䎃
x䎃 䎎䎕䎗䎹䎋䎎䎕䎗f䎓䎑䎔䎹ǃ䎳䎶䎘ǃ䎳䎶䎙䎌䎃 ⬉ࡼᓣ䗕఼᭭ࠊ⫼䎃
䎃
䎔䎗䎐䎕䎐䎔䎐䎔䎑 䎧䎦⬉⑤⬉य़ㄝ㑻ⱘ䇗ᭈᮍ⊩䎃
㸼 䎔䎗䎐䎕䎐䎔䎐䎔䎐䎔䎃 䎃 䎧䎦 ⬉⑤⬉य़ㄝ㑻ⱘ䆒ᅮ䎃
䎱䎲䎑䎃 ⬉⑤㾘Ḑ䎃 ⬉⑤ҷো䎃 ⬉⑤㺙㕂⌟ᅮッᄤ䎃 ⬉य़䇗ᭈؐ䎃
䎔㧔Ć㧕䎃 䎎䎗䎛䎹䎃 ˉ䎃 䎦䎱䎃䎓䎖䎜䎃 䎃 䎔 㛮˄䎎䎗䎛䎹˅䎃䎚㛮˄䎎䎗䎛䎹䎵䎷䎱˅䎃 ˉ䎃
䎕䎃 䎎䎙䎹䎃 䎳䎶䎃䎔䎃 䎦䎱䎃䎓䎖䎜䎃 䎃 䎖 㛮˄䎎䎙䎹˅䎃䎜㛮˄䎎䎙䎹䎵䎷䎱˅䎃䎋䎎5.7̚6.3䎹䎌䎃
䎖䎃 䎎䎕䎗䎹䎃 䎳䎶䎃䎕䎃 䎦䎱䎃䎓䎖䎜䎃 䎃 䎗 㛮˄䎎䎕䎗䎹䎤˅ 䎔䎓 㛮˄䎎䎕䎗䎹䎤䎵䎷䎱˅䎃 䎋䎎䎕䎗䎹f䎓䎑䎔䎹䎌䎃
䎗䎃 䎎䎕䎗䎹䎃 䎳䎶䎃䎖䎃 䎦䎱䎃䎓䎖䎜䎃 䎃 䎘 㛮˄䎎䎕䎗䎹䎥˅ 䎔䎔 㛮˄䎎䎕䎗䎹䎥䎵䎷䎱˅䎃 䎋䎎䎕䎗䎹f䎓䎑䎔䎹䎌䎃
䎘䎃 䎎䎕䎗䎹䎃 䎳䎶䎃䎗䎃 䎦䎱䎃䎓䎖䎜䎃 䎃 䎙 㛮˄䎎䎕䎗䎹䎦˅ 䎔䎕 㛮˄䎎䎕䎗䎹䎦䎵䎷䎱˅䎃 䎋䎎䎕䎗䎹f䎓䎑䎔䎹䎌䎃
䎙䎃 䎎䎕䎗䎹䎃 䎳䎶䎃䎘䎃 䎰䎲䎱䎬䎃 䎃 䎔 㛮˄䎎䎕䎗䎹䎧˅䎃䎖㛮˄䎎䎕䎗䎹䎧䎵䎷䎱˅䎃 䎋䎎䎕䎗䎹f䎓䎑䎔䎹䎌䎃
䎚䎃 䎎䎕䎗䎹䎃 䎳䎶䎃䎙䎃 䎰䎲䎱䎬䎃 䎃 䎕 㛮˄䎎䎕䎗䎹䎨˅䎃䎗㛮˄䎎䎕䎗䎹䎨䎵䎷䎱˅䎃 䎋䎎䎕䎗䎹f䎓䎑䎔䎹䎌䎃
䎃
䎃
䎃
䎃
䎃
䎔䎗䎐䎕䎐䎔䎐䎔䎐䎔䎃 䎃 ⬉⑤㺙㕂 䎦䎱䎓䎖䎜䎃
x䎃䎧䎦⬉⑤䕧ߎ⬉य़䇗ᭈ⫼⬉⑤㺙㕂ⱘ 䎦䎱䎓䎖䎜 ঞ 䎰䎲䎱䎬 ᴹ䖯㸠DŽ䎃
˄খ✻ 䎔䎗䎐䎕䎐䎔䎐䎔˅েϟᮍᰃ 䎔 ᦦ㛮ˈᎺЎ 䎕ǃ䎖
䯂䯂䯂
DŽ䎃
x䎃 Ćⱘ 䎱䏒䎑䎔 ᰃϡ䳔㽕䇗ᭈⱘ⬉⑤DŽ䎃
x䎃 Ң⬉⑤ᠬᶊᓩߎ㒓ˈҹֱ䆕 䎱䏒䎑䎕̚䎚 ⱘ 䎧䎦 ⬉⑤ⱘ䕧ߎ⬉य़ᰃ㾘Ḑ䇗ᭈؐˈ 䎧䎦 ⬉⑤ⱘ䕧ߎ⬉य़
⫼ৃব⬉䰏఼䇗ᭈDŽ䎃
䎃
䎃
䎃
䎃
䎃
䎃
䎦䎱䎓䎖䎜䎃
⬉⑤㺙㕂䎃
⊼ 䎔䎑䎃
䇗ᭈᯊˈ䇋⊼ᛣ⬉य़ؐϡ㛑Ѣ㾘Ḑ䇗ᭈؐDŽ䎃
⊼ 䎕䎑䎃
䎰䎲䎱䎬䎃䎔䎐䎚 䫔ˈ᳝䇗ᭈᣛ⼎ⱘ⬉⑤ҹⱘ 䎪䎱䎧 㒱ᇍϡ㛑݅⫼˄ϡ㛑䖲˅DŽ䎃
⊼ 䎖䎑䎃
䎳䎶䎗 ᰃ 䎳䎲䎺䎨䎵䎃䎸䎱䎬䎷䎃䎋䎨䎱䎌ᅝ㺙ⱘ 䎨䎱 㾘Ḑ⫼ⱘ 䎧䎦 ⬉⑤ˈ䎳䎲䎺䎨䎵䎃䎸䎱䎬䎷 Ϟ≵᳝ᅝ㺙DŽ
⊼ 䎗
䎑䎃 䖯㸠 䎳䎶䎘䎏䎳䎶䎙 ⱘ⬉य़䇗ᭈᯊˈ䇋ौϟ⬉ࡼৄᶊⱘ䖲఼Пৢݡ䖯㸠˄䇋᮴䉴㥋
⢊ᗕϟ䖯㸠˅DŽ䎃
⊼ᛣ䎃

㪩㪼㫍㩷㪈㪅㪇㩷
㓈ׂ䇗ᭈ㽕乚к
14-4
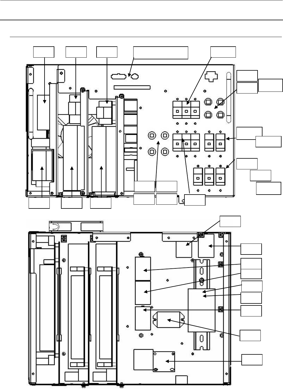
䎔䎗䎐䎕䎐䎔䎐䎕䎑 ⬉⑤㺙㕂ᵘ៤䎃
䎃
䎃
䎃
䎃
䎃
䎃
䎃
䎃
䎃
䎃
䎃
䎃
䎃
䎃
䎃
䎃
䎃
䎃
䎃
䎃
䎔䎗䎐䎖䎐䎔䎐䎔䎃 䎃 ⬉⑤㺙㕂ᵘ៤ 䎔䎃
䎳䎶䎔䎃䎳䎶䎗䎃䎳䎶䎖䎃 䎦䎳䎔䎖䎃
䎦䎳䎔䎔
䎦䎳䎔䎕
䎦䎳䎕䎃
䎦䎳䎔䎗
䎦䎳䎚 䎦䎳䎘
䎦䎳䎙䎦䎳䎛
䎦䎱䎓䎖䎜 䎰䎲䎱䎬䎃
䎦䎳䎗䎃
䎦䎳䎔䎓
䎦䎳䎜
䎦䎳䎔
䎳䎶䎙䎃䎳䎶䎘䎃䎳䎶䎕䎃
䎦䎳䎖䎃
䎵䎯䎚䎃
䎵䎯䎙
䎵䎯䎔
䎵䎯䎗
䎮䎔䎃
䎵䎯䎛
䎵䎯䎘
䎵䎯䎕
䎵䎯䎖

㪩㪼㫍㩷㪈㪅㪇㩷
㓈ׂ䇗ᭈ㽕乚к
14-5
䎃
䎃
䎃
䎃
䎃
䎃
䎃
䎃
䎃
䎃
䎃
䎃
䎃
䎃
䎃
䎃
䎃
䎃
䎃
䎔䎗䎐䎖䎐䎔䎐䎕䎃 䎃 ⬉⑤㺙㕂ᵘ៤ 䎕䎃
䎽䎒䕠䎳䎲䎺䎨䎵䎃
䎳䎦䎥䎃䎤䎶䎰䎃
䎤䎦䎃䎩䎤䎱
䎵䎯䎔䎓
䎵䎯䎜