KE-3020维修调整要领书.pdf - 第31页
㪩㪼㫍㩷㪈㪅㪇㩷 㓈ׂ䇗ᭈ㽕乚к 1-20 䎔䎐䎗 ˊ ॳ⚍Ӵ ᛳ఼ ⱘ ᤶ 䎃 䎔䎐䎗 䎐䎔 ˊ 䎻 䕈 䎃 䎮䎨䎐䎕䎓䎚䎓䎒䎛䎓 Ё≵᳝ 䎻 䕈ॳ⚍Ӵᛳ఼DŽᅝ㺙⺕ᷛሎ䞠DŽ 䎃 䎔䎐䎗 䎐䎕 ˊ 䎼 䕈 䎃 䎼 䕈ॳ⚍Ӵᛳ఼ᓣއᅮ 䎻 䕈 䎼 䕈ⱘⳈ㾦ᑺⱘ䞡㽕㺙㕂DŽ 䎃 ᤶৢབᵰϡℷ⹂ഄ䇗ᭈԡ㕂ˈ 䎻 䕈 䎼 䕈ⱘⳈ㾦ህϡޚ⹂ˈᕅડ䌈㺙㊒ᑺˈ䇋ϔᅮ⊼ᛣDŽ 䎃 䎃 䎔 ˅ 䎃 ᤶӴᛳ఼ৢˈ 䇋ਃࡼᴎ఼প⍜Njॳ⚍ᔦnj…

㪩㪼㫍㩷㪈㪅㪇㩷
㓈ׂ䇗ᭈ㽕乚к
1-19
䎙˅䎃䎻 䖥Ӵᛳ఼ⱘࡼ⹂䅸DŽ䇋⹂䅸ᰒ⼎乍ⳂЁⱘĀ䎻䎐䎱䏈䏄䏕āЎ 䎲䎩䎩 ⢊ᗕDŽ䎃
ࡼࠊᇚ 䎫䏈䏄䏇 Ꮊջ⿏ࡼˈ⿏ࡼࠄ䅽䖥Ӵᛳ఼䗮䖛ⱘԡ㕂DŽ䎃
䎚˅䎃䗮䖛ৢˈ⹂䅸ϞⱘĀ䎻䎐䎱䏈䏄䏕āᏆЎ 䎲䎱DŽ䎃
䇋ݡ⫼Ⳃ㾚⹂䅸 䎻 䖥Ӵᛳ఼ⱘ 䎯䎨䎧 Ꮖ҂♃DŽ䎃
䎛˅䎃䎼 䖥Ӵᛳ఼ⱘࡼ⹂䅸DŽ䇋⹂䅸ᰒ⼎乍ⳂЁⱘĀ䎼䎐䎱䏈䏄䏕āЎ 䎲䎩䎩 ⢊ᗕDŽ䎃
ࡼࠊᇚ 䎫䏈䏄䏇 䑿ࠡջ⿏ࡼˈ⿏ࡼࠄ䅽䖥Ӵᛳ఼䗮䖛ⱘԡ㕂DŽ䎃
䎜˅䎃䗮䖛ৢˈ⹂䅸Ā䎼䎐䎱䏈䏄䏕āᏆЎ 䎲䎱DŽ䎃
䇋ݡ⫼Ⳃ㾚⹂䅸 䎼 䖥Ӵᛳ఼ⱘ 䎯䎨䎧 Ꮖ҂♃DŽ䎃
䎔䎓˅䎃㒧ᴳЏᴎ䕃ӊˈᔧ㺙㕂໘Ѣৃҹᮁᓔ⬉⑤ⱘ⢊ᗕᯊˈᇚ⬉⑤ᓔ݇ 䎲䎩䎩DŽ䎃
䎔䎔˅䎃䇋ݡ䗮⬉⑤ˈ䖯㸠ॳ⚍ᔦDŽ䎃
䎃

㪩㪼㫍㩷㪈㪅㪇㩷
㓈ׂ䇗ᭈ㽕乚к
1-20
䎔䎐䎗ˊ ॳ⚍Ӵᛳ఼ⱘᤶ䎃
䎔䎐䎗䎐䎔ˊ 䎻䕈䎃
䎮䎨䎐䎕䎓䎚䎓䎒䎛䎓 Ё≵᳝ 䎻 䕈ॳ⚍Ӵᛳ఼DŽᅝ㺙⺕ᷛሎ䞠DŽ䎃
䎔䎐䎗䎐䎕ˊ 䎼䕈䎃
䎼 䕈ॳ⚍Ӵᛳ఼ᓣއᅮ 䎻 䕈 䎼 䕈ⱘⳈ㾦ᑺⱘ䞡㽕㺙㕂DŽ䎃
ᤶৢབᵰϡℷ⹂ഄ䇗ᭈԡ㕂ˈ䎻 䕈 䎼 䕈ⱘⳈ㾦ህϡޚ⹂ˈᕅડ䌈㺙㊒ᑺˈ䇋ϔᅮ⊼ᛣDŽ䎃
䎃
䎔˅䎃ᤶӴᛳ఼ৢˈ䇋ਃࡼᴎ఼প⍜Njॳ⚍ᔦnjˈ
ᣝ㋻ᗹذℶᣝ䪂DŽ䎃
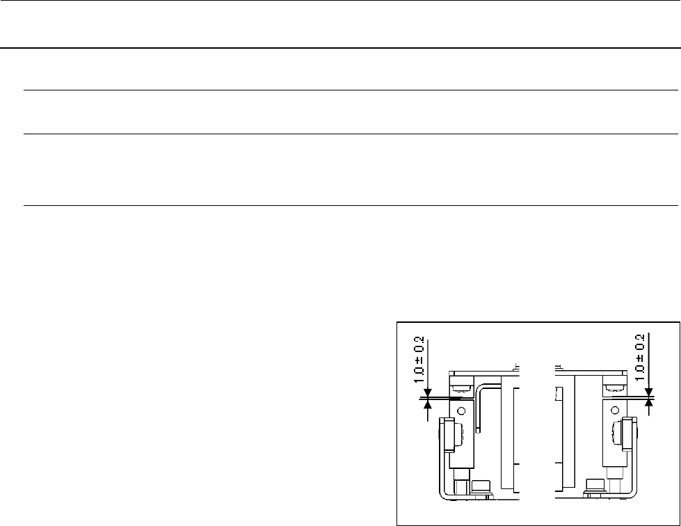
䇋ᡞ 䎻 䕈䑿ࠡ⿏ࡼˈ⹂䅸 䎼 䕈ॳ⚍Ӵᛳ఼Ϣ⺕
ᓔ݇ⱘぎ䱭Ў 䎔䎑䎓䏳䎓䎑䎕䏐䏐DŽ䎃
བᵰ䍙ߎℸ㣗ೈˈ䇋ᵒᓔӴᛳ఼ⱘᅮ㶎䩝ˈϞ
ϟ⿏ࡼӴᛳ఼ˈᇚぎ䱭䇗ᭈࠄ 䎔䎑䎓䏳䎓䎑䎕䏐䏐DŽ䎃
䎕˅䎃⫼ᡞ䌈㺙༈Ңࠡջ⿏ࡼࠄৢջˈᅮࠄ≵᳝
ᤶ 䎼 䕈ॳ⚍Ӵᛳ఼ 䎲䎱 ৢⱘԡ㕂DŽ䎃
䎖˅䎃ᡞᤶৢⱘ 䎼 䕈ॳ⚍Ӵᛳ఼Ңৢջ⿏ࡼࠄࠡջˈ䎃
᱖ᯊᡞӴᛳ఼ 䎲䎱 ৢⱘԡ㕂ᅮ䍋ᴹDŽ䎃
䎗˅䎃䇋䗝ᢽ 䎰䎶 খ᭄ᓣDŽ䎃
䇋ᠻ㸠 䎰䎶 খ᭄ⱘĀ䎖䎐䎘 Ⳉ㾦䇗ᭈāDŽ䎃
䎃
䎼䎯 姎
䎼䎵 姎

㪩㪼㫍㩷㪈㪅㪇㩷
㓈ׂ䇗ᭈ㽕乚к
1-21
䎔䎐䎘ˊ ล᭭ᇐ䔼ⱘᤶ䎃
䎔䎐䎘䎐䎔ˊ 䎻䕈ล᭭ᇐ䔼ⱘᤶ䎻䏂䎳䎯䎤䎶䎷䎬䎦䏂䎵䎤䎬䎯䏂䎯˄䋻ো˖䎗䎓䎓䎜䎖䎛䎚䎓˅䎃
䎔˅䎃ᵒᓔݙ݁㾦㶎ᷧ 䎰䎗䐙䎔䎓ˈҢ 䎫䎨䎤䎧䏂䎳䎯䎤䎶䎷䎬䎦䏂䎵䎤䎬䎯䏂䎥䎵 䎻䏂䎳䎯䎤䎶䎷䎬䎦䏂䎵䎤䎬䎯䏂䎶䎸䎳䎳䎲䎵䎷䏂䎯 Ϟौϟ
䎻䏂䎳䎯䎤䎶䎷䎬䎦䏂䎵䎤䎬䎯䏂䎯DŽ䎃
䎕˅䎃ᵒᓔ 䎰䎘 㶎↡ǃᏺൿ⠛݁㾦ᄨ㶎ᷧ 䎰䎘䐙䎔䎗ˈᢚϟ 䎰䎘 ᑇൿ⠛ǃ䎩䎦䏂䎶䎸䎳䎳䎲䎵䎷 䎩䎦䏂䎵䎸䎥䎥䎨䎵DŽ䎃
䎖˅䎃ᵒᓔݙ݁㾦㶎ᷧ 䎰䎘䐙䎔䎓ˈᢚϟ 䎩䎦䏂䎶䎸䎳䎳䎲䎵䎷䏂䎻 䎩䎦䏂䎵䎸䎥䎥䎨䎵DŽ䎃
䎗˅䎃ᢚϟ 䎻 䕈ล᭭ᇐ䔼ⱘ㞖ᵓˈপߎ㒓ᴳ䖯㸠ᤶDŽ䎃
䎘˅䎃ᣝⳌডⱘℹ偸䖯㸠㺙䜡DŽ䖭ᯊˈ䇋⊼ᛣล᭭ᇐ䔼ݙⱘ㒓ᴳϡ㽕㓴㒩DŽ䎃
ᑊϨˈ䇋⫼ܹ 䎻 ล᭭ᇐ䔼ݙ䚼ⱘ㒓ᴳˈ⹂䅸ϡ㓋㋻DŽ䎃
䎃
䎃
䎃
䎃
䎃
䎃
䎃
䎃
䎃
䎃
䎃
䎃
䎃
䎃
䎔䎐䎘䎐䎔䎃 䎃 䎻 䕈ล᭭ᇐ䔼䎃
䎃
݁㾦ᄨ㶎ᷧ䎃 䎰䎗䎻䎔䎓䎃
䎻䏂䎳䎯䎤䎶䎷䎬䎦䏂䎵䎤䎬䎯䏂䎯˄䎗䎓䎓䎜䎖䎛䎚䎓˅䎃
ᏺൿ⠛݁㾦ᄨ㶎ᷧ䎃 䎰䎘䐙䎔䎗䎃
䎩䎦䏂䎵䎸䎥䎥䎨䎵˄䎯䎔䎘䎖䎨䎖䎕䎔䎓䎓䎓˅䎃
䎩䎦䏂䎶䎸䎳䎳䎲䎵䎷˄䎯䎔䎘䎖䎨䎕䎕䎔䎓䎓䎓˅䎃
䎩䎦䏂䎶䎸䎳䎳䎲䎵䎷䏂䎻䯴䎗䎓䎓䎜䎖䎛䎘䎛䯵䎃
䎩䎦䏂䎵䎸䎥䎥䎨䎵䎋䎯䎔䎘䎖䎨䎖䎕䎔䎓䎓䎓䎌䎃
䎃
݁㾦ᄨ㶎ᷧ䎃 䎰䎘䎻䎔䎓䎃
䎫䎨䎤䎧䏂䎳䎯䎤䎶䎷䎬䎦䏂䎵䎤䎬䎯䏂䎥䎵˄䎗䎓䎓䎚䎔䎘䎚䎛˅䎃
䎰䎘 㶎↡䎃
䎰䎘 ᑇൿ⠛
䎤 䚼䎃
䎤䎃
䎥䎃
䎥 䚼䎃
㞖ᵓ䎃
䎻䏂䎳䎯䎤䎶䎷䎬䎦䏂䎵䎤䎬䎯䏂䎻䎯˄䎗䎓䎓䎜䎛䎓䎘䎜˅䎃
䎻䏂䎳䎯䎤䎶䎷䎬䎦䏂䎵䎤䎬䎯䏂䎶䎸䎳䎳䎲䎵䎷䏂䎯䯴䎗䎓䎓䎜䎖䎛䎙䎜䯵䎃
䎻䏂䎳䎯䎤䎶䎷䎬䎦䏂䎵䎤䎬䎯䏂䎶䎸䎳䎳䎲䎵䎷䏂䎯䯴䎗䎓䎓䎜䎛䎓䎘䎛䯵䎃