KE-3020维修调整要领书.pdf - 第27页
㪩㪼㫍㩷㪈㪅㪇㩷 㓈ׂ䇗ᭈ㽕乚к 1-16 䎔䎐䎖 䎐䎖 ˊ ᵕ䰤Ӵ ᛳ఼ⱘࡼ ⹂䅸 䎃 䎔䎐䎖 䎐䎖䎐 䎔䎑䎃 䎻 ᵕ䰤Ӵᛳ ఼ⱘࡼ ⹂䅸 䎃 䎔 ˅ 䎃 ᤶӴᛳ఼ৢˈਃࡼᴎ఼Ӯᰒ⼎Āॳ⚍ᔦāⱘᇍ䆱Ḛˈ䇋প⍜Пˈϡ䖯㸠ॳ⚍ᔦDŽ 䎃 䎕 ˅ 䎃 䇋ҢЏᴎ䕃ӊⱘ㓈ᡸ㦰ऩЁ䗝ᢽ 䎰䎶 খ᭄䆒㕂DŽ 䎃 䎖 ˅ 䎃 䇋 䎰䎶 খ᭄⬏䴶Ϟਃࡼㅔᯧࠊˈ䗝ᢽ 䎰䎶䎳 䗝乍वݙⱘĀЏ⬉䏃⬉⑤āⱘ 䎲䎱 DŽ 䎃 䎃 䎃 䎗 ˅ 䎃䎐 䎻…

㪩㪼㫍㩷㪈㪅㪇㩷
㓈ׂ䇗ᭈ㽕乚к
1-15
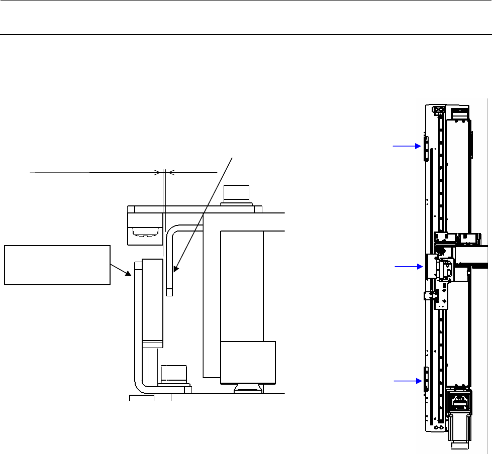
䎕˅䎃ৢᮍᅮᯊˈ㽕Փ 䎼 Ӵᛳ఼⺄ഫϢӴᛳ఼㸼䴶ⱘぎ䱭Ў 䎓䎑䎛̚䎔䎑䎘䏐䏐˄Ⳃᷛᰃ 䎔䎑䎓䏐䏐˅DŽ䎃
˄䇋খ✻ 䎔䎐䎖䎐䎕䎐䎕˅DŽ䎃
䎃
䎃
䎃
䎃
䎃
䎃
䎃
䎃
䎃
䎃
䎃
䎃
䎔䎐䎖䎐䎕䎐䎕䎃
䎃
䎓䎑䎛̚䎔䎑䎘˄Ⳃᷛᰃ 䎔䏐䏐˅䎃
䎼 Ӵᛳ఼⺄ഫ
䎼 Ӵᛳ఼ 䎥䎵䏂䎩 㒘ӊ䎃
䎼 Ӵᛳ఼ 䎥䎵䏂䎵 㒘ӊ䎃
䎼 Ӵᛳ఼⺄ഫ䎃
䎼 Ӵᛳ఼ 䎥䎵䏂䎩 㒘ӊ䎃
䎼 Ӵᛳ఼ 䎥䎵䏂䎵 㒘ӊ䎃

㪩㪼㫍㩷㪈㪅㪇㩷
㓈ׂ䇗ᭈ㽕乚к
1-16
䎔䎐䎖䎐䎖ˊ ᵕ䰤Ӵᛳ఼ⱘࡼ⹂䅸䎃
䎔䎐䎖䎐䎖䎐䎔䎑䎃 䎻 ᵕ䰤Ӵᛳ఼ⱘࡼ⹂䅸䎃
䎔˅䎃ᤶӴᛳ఼ৢˈਃࡼᴎ఼Ӯᰒ⼎Āॳ⚍ᔦāⱘᇍ䆱Ḛˈ䇋প⍜Пˈϡ䖯㸠ॳ⚍ᔦDŽ䎃
䎕˅䎃䇋ҢЏᴎ䕃ӊⱘ㓈ᡸ㦰ऩЁ䗝ᢽ 䎰䎶 খ᭄䆒㕂DŽ䎃
䎖˅䎃䇋 䎰䎶 খ᭄⬏䴶Ϟਃࡼㅔᯧࠊˈ䗝ᢽ 䎰䎶䎳 䗝乍वݙⱘĀЏ⬉䏃⬉⑤āⱘ 䎲䎱DŽ䎃
䎃
䎃
䎗˅䎃䎐䎻 ᵕ䰤Ӵᛳ఼ⱘࡼ⹂䅸DŽҹࡼᇚ 䎫䏈䏄䏇 Ꮊջ⿏ࡼࠄ䎐䎻 ᵕ䰤Ӵᛳ఼㹿݇ᥝⱘԡ㕂DŽ䎃
ℸᯊˈ䇋⹂䅸ⲥ㾚఼Ϟᔍߎ 䎻 䕈⿏ࡼᵕ䰤ⱘᇍ䆱ḚDŽ䎃
䎃
䎘˅䎃䇋ᇚ 䎫䏈䏄䏇 ⿏ࡼࠄেջˈ㾷䰸䎐䎻 ᵕ䰤Ӵᛳ఼DŽ䎃
䎙˅䎃㾷䰸ৢˈϢ 䎖˅ℹⱘ᪡ϔḋ䇋䗮Џ⬉䏃⬉⑤ˈ݇䯁ⲥ㾚఼ⱘ 䎻 䕈⿏ࡼᵕ䰤ᰒ⼎DŽ䎃
䎃

㪩㪼㫍㩷㪈㪅㪇㩷
㓈ׂ䇗ᭈ㽕乚к
1-17
䎚˅䎃䎎䎻 ᵕ䰤Ӵᛳ఼ⱘࡼ⹂䅸DŽҹࡼᇚ 䎫䏈䏄䏇 েջ⿏ࡼࠄ䎎䎻 ᵕ䰤Ӵᛳ఼㹿݇ᥝⱘԡ㕂DŽ䎃
䎛˅䎃䇋⹂䅸ⲥ㾚఼Ϟᔍߎ 䎻 䕈⿏ࡼᵕ䰤ⱘᇍ䆱ḚDŽ䎃
䎃
䎃
䎜˅䎃䇋ᇚ 䎫䏈䏄䏇 ⿏ࡼࠄᎺջˈ㾷䰸䎎䎻 ᵕ䰤Ӵᛳ఼DŽ䎃
䎔䎓˅䎃㾷䰸ৢˈϢ 䎖˅ℹⱘ᪡ϔḋ䇋䗮Џ⬉䏃⬉⑤ˈ݇䯁ⲥ㾚఼ⱘ 䎻 䕈⿏ࡼᵕ䰤ᰒ⼎DŽ䎃
䎃
䎔䎐䎖䎐䎖䎐䎕䎑䎃 䎼 ᵕ䰤Ӵᛳ఼ⱘࡼ⹂䅸䎃
䎔˅䎃䇋ᣝ✻ϢĀ䎻 ᵕ䰤Ӵᛳ఼ⱘࡼ⹂䅸āⳌৠⱘℹ偸ˈ䖯㸠 䎼 ᵕ䰤Ӵᛳ఼ⱘࡼ⹂䅸DŽ䎃
䎕˅䎃䎻ǃ䎼 ഛᅠ៤Ӵᛳ఼ࡼⱘ⹂䅸ৢˈ㒧ᴳЏᴎ䕃ӊˈᇚᅝܼᮍ䆒㕂䆒ЎĀ৺āDŽ䎃
䎖˅䎃ᔧ㺙㕂໘Ѣৃҹᮁᓔ⬉⑤ⱘ⢊ᗕᯊˈᇚ⬉⑤ᓔ݇ 䎲䎩䎩DŽ䎃
䎗˅䎃䇋ݡ䗮⬉⑤DŽ䎃
䎃