KE-2020-Rev11.pdf - 第137页
- 132 - NOTE( 注記 ) #01....OPTIONAL PA RTS オプション部品 #02....FOR FLAT CABLE フラットケーブル用 REF.NO NOTE PART NO D E S C R I P T I O N 品 名 Qty 1 E9322-729- 0A0 SERIAL PARALLEL CAB LE ASM. L ヘッド シリパラケ−ブル組 1 2 E9324-729-0A0 L HEAD PO…

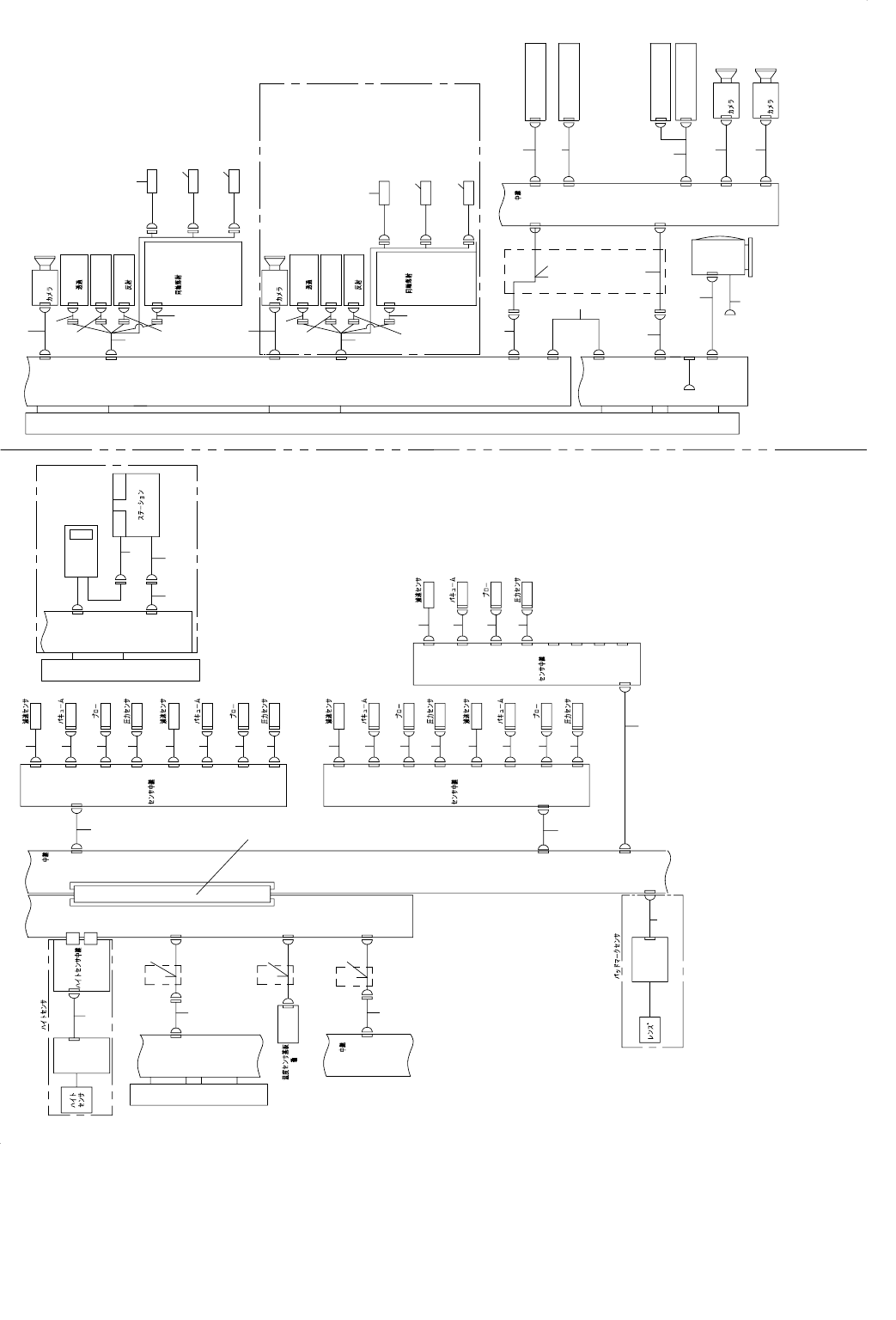
- 131 -
69.WIRING DIAGRAM (5)
WIRING DIAGRAM(5)
M
E
V
OPTION( )
AMP
PCB.
13
2
P
P
1-3B
5-1C
I/O CTRL
PCB.
LS3-9
CN9
X,Y CABLE
BEAR
3
1
CN245
CN805
5
X CABLE BEAR
(X
)
CN6
CN5
3-2D
6-1A
XMP
PCB.
CN9
LS3-9
CN806
CN246
CN801
CN1
2
X,Y CABLE
BEAR
4
AMP
OPTION(
)
12
CN10
CN860
8-2C
CN868
CN18 CN1
Z1/2
7
CN9
PCB.
Z1
14
Z1
14 9
Z1
(CN5)
CN8
CN6
(CN2)
(CN7)
CN3
CN4
(CN8)
(CN9)
CN5
CN2
(CN6)
(CN3)
CN7
(CN4)
10 911 1110
Z1
3-3D 3-2D
HEAD
MAIN
PCB.
HEAD
PCB.
P
1
P
2
M
E
V
P
1
2
P
1-3B
LIGHT CTRL
(R)PCB.
CN1
CN4
CN2
CN5
CN6
CN3
LS4-1
LS4-4
LS4-5
LS4-6
LS4-3
VCS(L)
19
VCS
(L)
VCS LIGHT
(
L)
(SIDE L)
VCS LIGHT
(
L)
VCS LIGHT
(
L)
VCS LIGHT
28
VCSUPS.V.(L)
VCSUPSENS.(L)
VCS DOWN SENS.(L)
32
( L)
CSP LIGHT
(SIDE L)
CSP LIGHT
(
L)
CSP LIGHT
CSP
(L)
LS4-2
CSP(L)
( L)
CSP LIGHT
33
34
36
VCS DOWN SENS.(L)
VCS UP SENS.(L)
35
VCS UP S.V.(L)
OPTION(VCS)
15
CN503
17
CN4
CN3
LS6-4
LS6-3
16
1-3B
IMG-CPU
PCB.
CN6
LS6-2
CN2
20
IN
CN709
37
PWR
(1-5B)
VCS MONITOR
CN501
50
21
X,Y CABLE
BEAR
CN853
CN854
1-3B
HEAD
PCB.
CN15
CN11
CN12
CN13
CN14
CN4
CN3
CN865
CN861
CN862
CN863
CN864
25 26
27
23 24
OCC(L )
OCC(R )
OCC
(R)
OCC
(L)
OCC
L
OCC LIGHT(L)
PCB.
OCC
R
OCC LIGHT(R)
PCB.
GREEN LIGHT(R)
PCB.
GREEN LIGHT(R)
PCB.
M
E
V
P
2
VERFY
I/F PCB.
(OPTION)
1-4A
J1
J3
29
30
31
P043 J043
P042 J042
OPTION(CVS)
Z2
Z2
Z2
Z2
1
41
18
40
39
38
45
8
44
43
42
V-SUPL
V-UP
V-DWN
6
V-DWN
V-UP
V-SU POP
49
46
48
47
51
CN869
52
(CN2)
CN7
PCB.
(CN3)
(CN4)
CN9
CN8
CN6
555453
Z5
CN1
(CN5)
CN19
Z5
Z5
Z5
Z5
CN6
CN10
56
Z4
Z4
PCB.
Z3
14
Z3
14 9
Z3
(CN5)
CN8
CN6
Z4
1110
CN9
Z4
22
CN1
9
(CN2)
CN4
CN867
Z3
11
(CN4)
10
CN7
CN17
CN3
(CN3)
CN2
CN5

- 132 -
NOTE( 注記 ) #01....OPTIONAL PARTS オプション部品
#02....FOR FLAT CABLE フラットケーブル用
REF.NO NOTE PART NO D E S C R I P T I O N
品 名
Qty
1 E9322-729-0A0 SERIAL PARALLEL CABLE ASM.
L ヘッド シリパラケ−ブル組
1
2 E9324-729-0A0 L HEAD POWER SOURCE CABLE ASM.
L ヘッド 電源ケ−ブル組
1
3
#02
E9848-729-0A0 XY BEAR CABLE (40) ASM.
XY ベア束線(40)組
1
4
#02
E9848-729-0A0 XY BEAR CABLE (40) ASM.
XY ベア束線(40)組
1
5
#02
E9848-729-0A0 XY BEAR CABLE (40) ASM.
XY ベア束線(40)組
1
6 E9499-729-BA0 CSP CAMERA CABLE (L) ASM.
CSP カメラケーブル(L)組
1
7 E9337-729-0A0 Z1,2 SENSOR CABLE ASM.
Z 1,2センサケ−ブル組
1
8 E9594-729-BA0 CSP CAMERA CABLE (L) ASM.
CSP カメラケーブル(L)組
1
9 E9341-729-0A0 Z PRESSURE SENSOR CABLE ASM.
Z 圧力センサケ−ブル組
1
10 E9342-729-0A0 Z VACUUM CABLE ASM.
Z バキュ−ムケ−ブル組
1
11 E9343-729-0A0 Z BLOW CABLE ASM.
Z ブロ−ケ−ブル組
1
12 E9554-729-0A0 BAD MARK SENSOR ASM.
バッドマークセンサ組
1
13 E9576-721-0A0 HIGHT SENSOR CABLE 2 ASM.
ハイトセンサケ−ブル2組
1
14 E9340-729-0A0 Z REDUCE SPEED SENSOR ASM.
Z 減速センサ組
1
15 E9327-729-0B0 OCC LIGHT RELAY CABLE ASM.
OCC ライト中継ケーブル組
1
16 E9329-729-0A0 OCC CAMERA(L) RELAY CABLE ASM.
OCC カメラ(L)中継ケ−ブル組
1
17 E9490-729-0A0 VCC CAMERA CABLE (L) ASM.
VCC カメラ通信ケ−ブル(L)組
1
18 E9593-729-0B0 VCS LIGHT CABLE (L) ASM.
VCS ライトケーブル(L)組
1
19 E9498-729-0B0 VCS CAMERA CABLE (L) ASM.
VCS カメラケーブル(L)組
1
20 E9525-729-0A0 PORTRAIT MONITOR CABLE ASM.
画像モニタケーブル組
1
21
#02
E9848-729-0A0 XY BEAR CABLE (40) ASM.
XY ベア束線(40)組
1
22 E9338-729-0A0 Z3,4 SENSOR CABLE ASM.
Z 3,4センサケ−ブル組
1
23 E9331-729-0A0 OCC CAMERA CABLE (L) ASM.
OCC カメラケ−ブル(L)組
1
24 E9332-729-0A0 OCC CAMERA CABLE (R) ASM.
OCC カメラケ−ブル(R)組
1
25 E9333-729-0A0 OCC LIGHT (L) CABLE ASM.
OCC ライト(L)ケ−ブル組
1
26 E9334-729-0A0 OCC LIGHT (R) CABLE ASM.
OCC ライト(R)ケ−ブル組
1
27 E9336-729-0A0 G LIGHT (R) CABLE ASM.
G ライト(R)ケ−ブル組
1
28 E9595-729-0A0 VCS.S.V. (L) ASM.
VCS.S.V.(L)組
1
29 E9588-705-0A0 VRFY SV I/F CABLE ASM.
VRFY SV I / F ケ−ブル組
1
30 E9589-705-0A0 VRFY SV CABLE ASM.
VRFY SV ケ−ブル組
1
31 E9591-705-0A0 CABLE ASM.
VRFY プロ−ブケ−ブル組
1
32 E9526-729-0A0 VCS (UP) SENSOR ASM.
VCS(UP)センサ(L)組
1
33 E9527-729-0A0 VCS (DOWN) SENSOR ASM.
VCS(DOWN)センサ(L)組
1
34 E9597-729-0A0 VCS.OPT.S.V.(L)
VCS OPT.S.V.(L)組
1
35
#01
E9526-729-0A0 VCS (UP) SENSOR ASM.
VCS(UP)センサ(L)組
1
36
#01
E9527-729-0A0 VCS (DOWN) SENSOR ASM.
VCS(DOWN)センサ(L)組
1
37 400-33517 VISION MONITOR BRACKET ASM
画像モニタブラケット組
1
38 E9840-729-0A0 VCS LIGHT RELAY CABLE (3) ASM
VCS ライト中継ケーブル(3)組
1
39 E9839-729-0A0 VCS LIGHT RELAY CABLE (2) ASM
VCS ライト中継ケーブル(2)組
1
40 E9839-729-0A0 VCS LIGHT RELAY CABLE (2) ASM
VCS ライト中継ケーブル(2)組
1
41 E9838-729-0A0 VCS LIGHT RELAY CABLE (1) ASM
VCS ライト中継ケーブル(1)組
1
42 E9840-729-0A0 VCS LIGHT RELAY CABLE (3) ASM
VCS ライト中継ケーブル(3)組
1
43 E9839-729-0A0 VCS LIGHT RELAY CABLE (2) ASM
VCS ライト中継ケーブル(2)組
1
44 E9839-729-0A0 VCS LIGHT RELAY CABLE (2) ASM
VCS ライト中継ケーブル(2)組
1
45 E9838-729-0A0 VCS LIGHT RELAY CABLE (1) ASM
VCS ライト中継ケーブル(1)組
1
46 E9323-729-0A0 SERIAL PARALLEL CABLE ASM.
L ヘッド シリパラケ−ブル(ベア)組
1
47 E9325-729-0A0 L HEAD POWER CABLE ASM.
L ヘッド 電源ケ−ブル(ベア)組
1
48 E9326-729-0A0 TEMPERATURE SENSOR CABLE ASM.
X 軸温度センサケ−ブル組
1
49 E9328-729-BA0 OCC LIGHT RELAY CABLE ASM.
OCC ライト中継ケ−ブル(ベア)組
1
50 E9330-729-0A0 OCC CAMERA CABLE ASM.
OCC カメラケ−ブル(ベア)組
1
51 E9339-729-0A0 Z5 SENSOR CABLE ASM.
Z 5センサケ−ブル組
1
52 E9340-729-0A0 Z REDUCE SPEED SENSOR ASM.
Z 減速センサ組
1
53 E9342-729-0A0 Z VACUUM CABLE ASM.
Z バキュ−ムケ−ブル組
1
54 E9343-729-0A0 Z BLOW CABLE ASM.
Z ブロ−ケ−ブル組
1
55 E9341-729-0A0 Z PRESSURE SENSOR CABLE ASM.
Z 圧力センサケ−ブル組
1
56 E9849-729-0A0 HEAD PWB I/F CABLE ASM.
ヘッド基板I/Fケーブル組
1

- 133 -
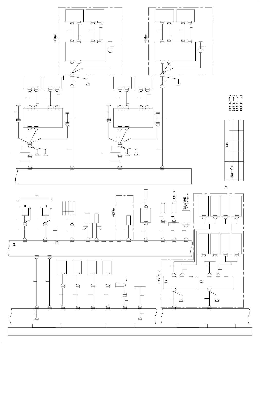
70.WIRING DIAGRAM (6)
WIRING DIAGRAM(6)
V
E
M
P
1
P
2
1
P
2
P
1-3B
BASE
FEEDER
PCB.
CN13
CN7
LS2-13
LS2-11
LS2-7
LS2-12
LS2-9
LS2-10
CN11
CN12
CN9
CN10
CN5
LS2-5
LS2-15
CN13
5-3A
45
46
11 13
16 17 18 19
CN631
CN634
CN31
CN34
CN551
CN561
CN571
CN581
CN483
1
7
CN11
SIGNAL LIGHT
MTC I/F
(L)
FEEDER
(FL)
FEEDER
(FR)
FEEDER
(RL)
FEEDER
(RR)
2-4D
CARRY
PCB.
(CN6)
CN3
CN4
(CN5)
CN17
CN20
CN21
TB
CN603
(CN606)
(CN605)
CN604
CN671
CN670
CN672
CN617
CN620
CN621
TB2
30
47
31
48
32
33
14
49 50
( )1
IN MOTOR
OUT MOTOR
SV
STOPPER
SHAPE(X)
SHAPE(Y)
ATC
ATC OPEN(L)
ATC CLOSE(L)
CN38
CN36
CN42
CN43
CN35
6-2A
CN638
CN636
CN642
CN643
CN635
51
OPTION( )
BANK UP
SENSOR(RL)
CN491
CN669
CN08
CAL S.V
CAL VACUUM
SENSOR
( )
CAL PCB.
CN2CN1
25 27
12 29
26
15
28
7-1A
4-1B
I/O CTRL
PCB.
CN7
CN6
LS3-7
LS3-6
CN539
CN529
42
39
CN531
CN521
CN4
CN3
CN4
CN3
FPI
PCB.(R)
FPI
PCB.(F)
CN1
CN1
OPTION(FP - )
CN524
CN523
CN524
CN523
43
44
40
41
CN541
CN551
CN561
CN571
CN1
CN1
CN1
CN1
FPI LED
PCB.
(F1-1)
FPI LED
PCB.
(F1-2)
FPI LED
PCB.
(F2-1)
FPI LED
PCB.
(F2-2)
CN541
CN551
CN561
CN571
CN1
CN1
CN1
CN1
FPI LED
PCB.
(R2-1)
FPI LED
PCB.
(R3-1)
FPI LED
PCB.
(R3-2)
FPI LED
PCB.
(R2-2)
(
)1
FL FR RL RR
E9453
E9455
CN3
CN4 CN5
CN6
CN5
CN6
CN4
CN3
FL:
FR:
RL:
RR:
5-1C
BASE
FEEDER
PCB.
CN1
CN2
CN3
CN4
LS2-1
LS2-2
LS2-4
CN501 CN04
CN502
CN505
PWR
(1-4B)
PWR
(1-4B)
CN1
CN2
CN662
CN661
CN507
CN649
CN9-1
CN10-1
CN9-2
CN10-2
10 52
2
8
3
24
CN11
CN669-1
CN670-1
CN669-2
CN670-2
CN761
CN751
CN760
CN761
20 22
21
23
IC FULL
9
FEEDER
BANK
PCB.
(FL)
FEEDER
BANK
PCB.
(FR)
CN304
PWR
(1-5C)
CN303
6
CN10 CN662
CN661
CN10-1
CN9-1
CN9-2
CN10-2
FEEDER I/F
PCB.
(F)
CN649
CN670-1
CN669-1
CN669-2
CN670-2
CN750
CN750
CN751
CN760
34 36
35
37
IC FULL
FEEDER
BANK
PCB.
(FL)
FEEDER
BANK
PCB.
(FR)
OPTION(
(F))
10 52
CN670-1
CN662
CN10-2
23
CN1
CN661
21
24
4
CN750
CN2
CN501
8
CN11
FEEDER
BANK
PCB.
(RL)
9
LS2-3
CN669-2
CN670-2
CN649
CN507
20
CN502
CN505
CN04
FEEDER
BANK
PCB.
(RR)
CN9-2
CN751
IC FULL
CN10-1
CN9-1
CN669-1
CN761
CN760
22
PWR
(1-4B)
PWR
(1-4B)
5
FEEDER I/F
PCB.
(R)
FEEDER I/F
PCB.
(F)
CN303 CN10
6
PWR
(1-4B)
CN304
FEEDER
BANK
PCB.
(RL)
CN751
CN661
CN10-2
CN750
CN760
CN669-1
CN670-2
CN669-2
CN670-1
34 36
35
CN649
37
IC FULL
CN761
CN9-1
CN10-1
FEEDER
BANK
PCB.
(RR)
CN662
OPTION( (R))
FEEDER I/F
PCB.
(R)
CN9-2
38
CN2
CN1
CN2
CN1
38
53
54
55 56