DECAN_F2_TRM部件名称.pdf - 第193页
Page +$1:+$ 189 DECAN F2 Electric Power (5/9) NO. P ART NO. P ART NAME Q'TY Old No. Supply Supply L T Reference 1 AM03-005487A CABLE ASSY -TB1_FS1_FS 2 1 2 AM03-010944A CABLE ASSY -PS1_PS2_PS 5_PS6_PW_T5 L 1 3 AM03-…

Page
+$1:+$
188
DECAN
F2
Electric Power (5/9)
1
2
4
8
9
10
11
7
5 3
6
7
FROM CP1
1L2
1L1
1L21L1
-FUSE1 (AC250V,10A)
SC-CN1
+24V 24G +24V 24G
-FUSE2 (AC250V,10A)
1L1 1L2
-PS2
AC220V
24G
-PS5
+24V 24G
-PS6-PS1
SM511_PW101
78 910
SM511_PW111
T5L
12
(CONN)
4536
AM03-010944A
T7L
9
T7L
10
T7L
2
(CONN)
1
AM03-010946A
AM03-010933A
+24V
24G
T7L
5
(CONN)
6
SM511-_PW103
+24V
78
AM03-010946A
SM471_PW111-2
87109
T6L
(CONN)
SC-CN2
AM03-010945A
AM03-010938A
24G-EXT1
24G-EXT2
RY3-3 24G-EXT3
24G-EXT4
RY5-3
SM511_PW101-1
AM03-005487A
43
AM03-010934A
SM511_PW201
AM03-010928AAM03-010932A
AM03-010929A
SM511-_PW207
SM511-_PW120
SM511-_PW202
SM511-_PW127
SM511-_PW121
SM511-_PW207
AM03-010930A
6A
1A 4A
A
B
9C
A
B
10C
5A 5B4B
11A
12A
11C
12C
24V(400W)
(+)
PE06
(-)
AC IN
(-)
24V(400W)
(+)
AC IN
PE07
(-)
24V(400W)
(+)
AC IN
PE06-1
(-)
24V(400W)
(+)
AC IN
PE07-1

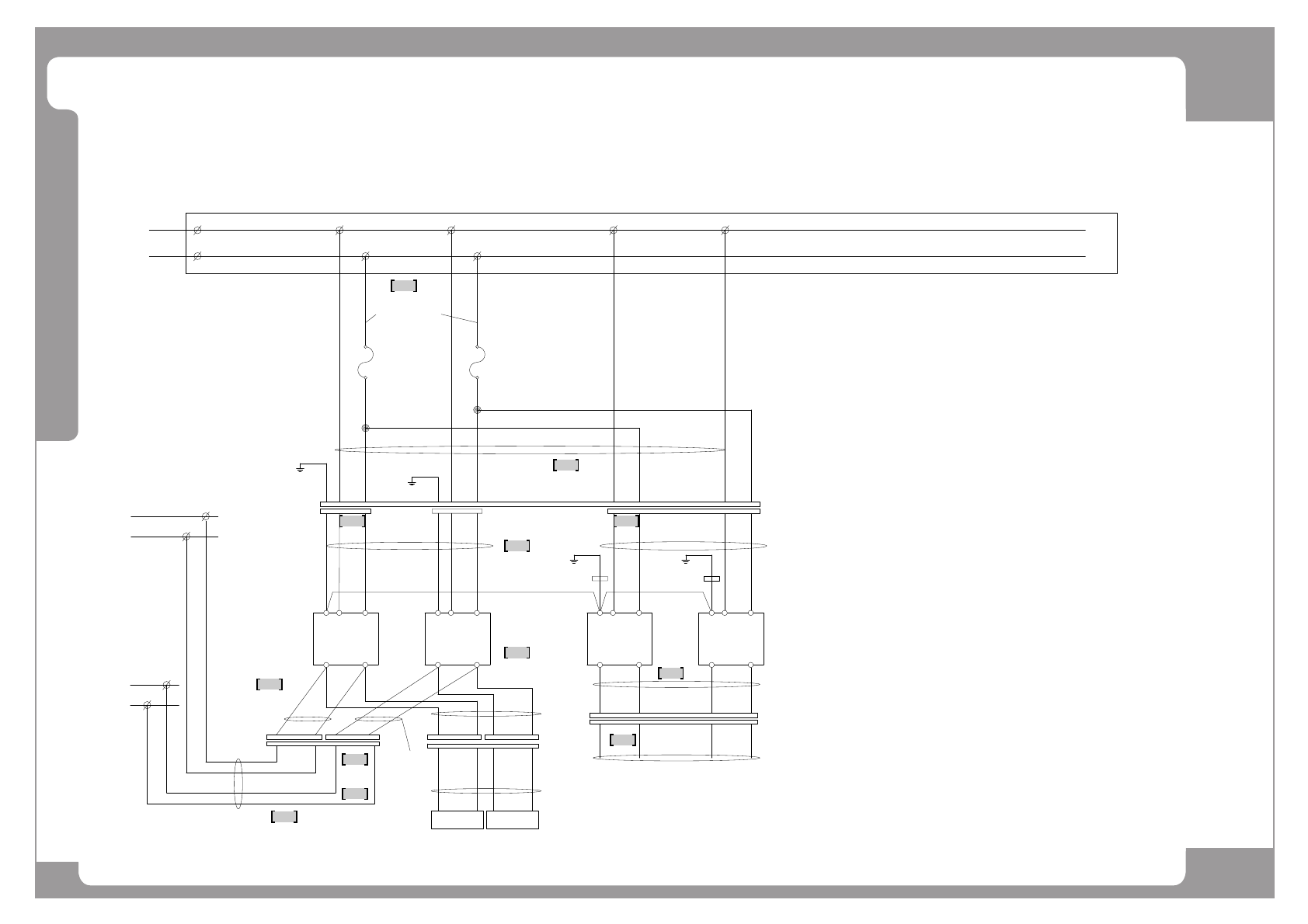
Page
+$1:+$
189
DECAN
F2
Electric Power (5/9)
NO. PART NO. PART NAME Q'TY Old No. Supply Supply LT Reference
1 AM03-005487A CABLE ASSY-TB1_FS1_FS2 1
2 AM03-010944A CABLE ASSY-PS1_PS2_PS5_PS6_PW_T5L 1
3 AM03-010928A CABLE ASSY-PS5_PS6_PW_T5 1
4 AM03-010929A CABLE ASSY-PS5_PS6_PW_T7 1
5 AM03-010932A CABLE ASSY-TB1_PS1_PS2_PW_T5L 1
6 AM03-010930A CABLE ASSY-PS5_PS6_DC24V_PWR 1
7 AM03-010946A CABLE ASSY-RY3_RY5_T7L 2
8 AM03-010938A CABLE ASSY-PS1_PS2_SACO_T6L 1
9 AM03-010933A CABLE ASSY-PS1_1_DC_POWER_BD 1
10 AM03-010934A CABLE ASSY-PS1_2_DC_POWER_BD 1
11 AM03-010945A CABLE ASSY-PS34_AC_PS12_DC_PW_T6L 1

Page
+$1:+$
190
DECAN
F2
Electric Power (6/9)
1
5
2
3 4
7
8
6
-MC2
(TH-N12)
VACUUM
PUMP
SK
AM03-010925A
SM511-PW041
SM511_PW42-1
3P-C16
-CP3
CV-CN12
SM511_PW146-1
SM511_PW146
CV-CN15
AM03-010943A
AM03-010942C
SM511_PW040
SM511_PW147-1
AM03-010940A
AM03-010941A
SM511_PW147
AM03-010926A
AM03-010927A
SM471_PW042
AM03-005511A
1
3
5
2
4
6
2
4
6
97
95
98
96
13
A1
14
A2
135
246
1
2
3
4
3
5
U
V
W
PE
1
3
+24V
HD MAIN AIR
VACUUM AIR SOL CONNECTOR
VACUUM PUMP ALARM
GND
VACUUM PUMP ALARM
GND
+24V
VACUUM PUMP PWR
PE3
< OPTION >