DECAN_F2_TRM部件名称.pdf - 第295页
Page +$1:+$ 291 DECAN F2 Axis IO Board (4/16) NO. P ART NO. P ART NAME Q'TY Old No. Supply Supply L T Reference 1 AM03-010979A CABLE ASSY -FX_FS_DRV_COMMAND 1 2 AM03-010903A CABLE ASSY -R EGEN_RESISTOR_DRV_1 1 3 AM0…

Page
+$1:+$
290
DECAN
F2
Axis IO Board (4/16)
1
2
4
6
7
8
9
5
5
3
3
5
5
AXIO BD #1
BOARD
FX SERVO
DRIVER
RX SERVO
DRIVER
CN15
SM511_VM005
CW
/CW
CCW
/CCW
+COM
/SON
CLR
GAIN
/ALMRST
/ALM
INP
1
3
7
9
27
17
19
21
23
22
24
AXIO#1-CN15
AM03-010979A
501189-3010
44
45
46
47
13
7
29
30
27
31
37
39
41
21
22
48
49
23
24
25
36
38
9
8
50
-COM
EA
/EA
EB
/EB
EZ
/EZ
GND
29
2
4
8
10
14
16
6
30
1
3
7
9
27
17
19
21
23
22
24
29
2
4
8
10
14
16
6
30
44
45
46
47
13
7
29
30
27
31
37
39
41
21
22
48
49
23
24
25
36
38
9
8
50
PULSE
*PULSE
SIGN
*SIGN
SG
+24V
/S-ON
+24V
GAIN
/ALMRST
ALM(ALM 1)
INP
-COM
A
/A
B
/B
C
/C
SG
SG
SG
SG
SG
FG
FX-DRV
SM-50J
CN16
CW
/CW
CCW
/CCW
+COM
/SON
CLR
GAIN
/ALMRST
/ALM
INP
1
3
7
9
27
17
19
21
23
22
24
AXIO#1-CN16
501189-3010
44
45
46
47
13
7
29
30
27
31
37
39
41
21
22
48
49
23
24
25
36
38
9
8
50
-COM
EA
/EA
EB
/EB
EZ
/EZ
GND
29
2
4
8
10
14
16
6
30
1
3
7
9
27
17
19
21
23
22
24
29
2
4
8
10
14
16
6
30
44
45
46
47
13
7
29
30
27
31
37
39
41
21
22
48
49
23
24
25
36
38
9
8
50
PULSE
*PULSE
SIGN
*SIGN
SG
+24V
/S-ON
+24V
GAIN
/ALMRST
INP
-COM
A
/A
B
/B
C
/C
SG
SG
SG
SG
SG
FG
RX-DRV
SM-50J
UL20276 20P*28AWG
IRN150S
RESISTER
RB1
RB3
RB2
U
FX-U.V.W
6
5
4
3
V
W
2
1
6
5
4
3
2
1
SM511_MD001
AM03-010875B
1
2
3
4
FX-PWR
172168-1 (6 PLUG)
06JFAT-SAXGF
SHIELD
UL2464-SB 3C*18AWG
+5V
5G
N/C
N/C
FX-DRV-X6
SD
FG
COVER
1
2
3
4
5
6
1
2
3
4
5
6
COVER
SHIELD
SM511_MD002
AM03-010884A
FX-EN
43025-0600
2108342-1_(6P)
UL2464-SB 2P 24AWG
X5
2
1
FY1.FY2.RY1
2
1
SM511_MD027-1
AM03-010903A
SM511_MD027
AM03-010902B
IRN150S
RESISTER
RB1
RB3
RB2
U
RY2-U.V.W
6
5
4
3
V
W
2
1
6
5
4
3
2
1
X5
2
1
RY2.FX.RX
2
1
SM511_MD027-2
AM03-010904A
SM511_MD027
AM03-010902B
FX
MOTOR
LINEAR
1
2
3
4
X-PW
1
2
3
4
350780-1 (4 CAP)
SM511_FL001(4.5)
AM03-010515A
4
5
2
3
6
1
X-EN
172159-1 (4 CAP)
SM511_FL001(4.5)
AM03-010515A
1
2
3
4
5
6SD/
1
2
3
4
5
6
43020-0600
172167-1 (4 PLUG)
1
2
3
4
SM511_MD003
AM03-010877A
1
2
3
4
RX-PWR
172168-1 (6 PLUG)
06JFAT-SAXGF
SHIELD
UL2464-SB 3C*18AWG
+5V
5G
N/C
N/C
RX-DRV-X6
SD
FG
COVER
1
2
3
4
5
6
1
2
3
4
5
6
COVER
SHIELD
SM511_MD004
AM03-010878A
RX-EN
43025-0600
2108342-1_(6P)
UL2464-SB 2P 24AWG
X5
1
2
3
4
5
6SD/
1
2
3
4
5
6
172167-1 (4 PLUG)
1
2
3
4
172159-1 (4 CAP)
4
5
2
3
6
1
RX
MOTOR
LINEAR
1
2
3
4
X-PW
1
2
3
4
350780-1 (4 CAP)
SM511_FL001(4.5)
AM03-010515A
4
5
2
3
6
1
X-EN
172159-1 (4 CAP)
SM511_FL001(4.5)
AM03-010515A
1
2
3
4
5
6
43020-0600
1
2
3
4
172159-1 (4 CAP)
4
5
2
3
6
1

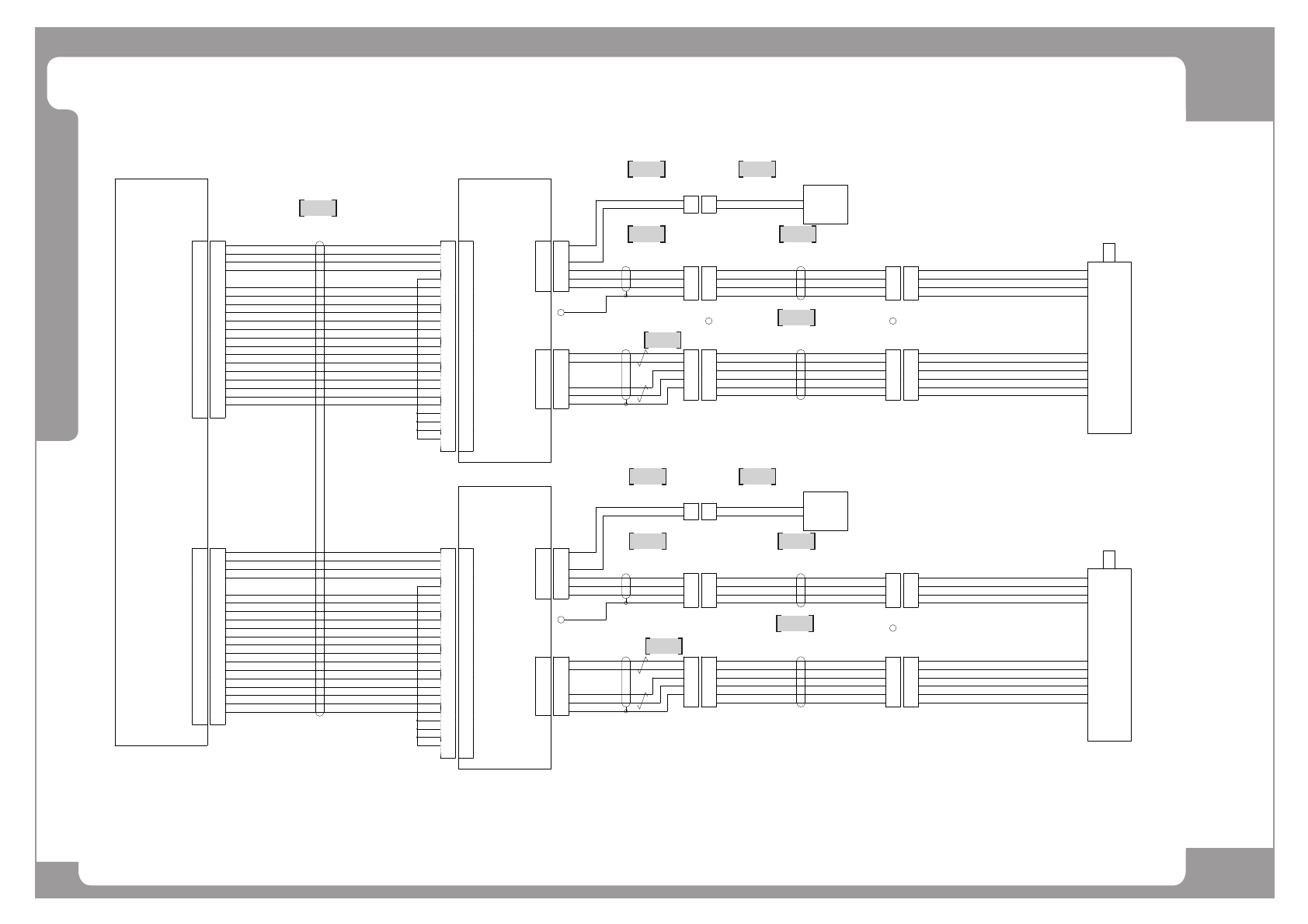
Page
+$1:+$
291
DECAN
F2
Axis IO Board (4/16)
NO. PART NO. PART NAME Q'TY Old No. Supply Supply LT Reference
1 AM03-010979A CABLE ASSY-FX_FS_DRV_COMMAND 1
2 AM03-010903A CABLE ASSY-REGEN_RESISTOR_DRV_1 1
3 AM03-010902C CABLE ASSY-REGEN_RESISTOR 2 AM03-010902A/AM03-010902B
4 AM03-010875B CABLE ASSY-FX_MOTOR_PWR 1
5 AM03-013438A CABLE ASSY-SM511 FLAT 1 4 AM03-010515C/ AM03-010515D
6 AM03-010884B CABLE ASSY-RY1_LINEAR_ENC 1
7 AM03-010904A CABLE ASSY-REGEN_RESISTOR_DRV_2 1
8 AM03-010877A CABLE ASSY-RX_MOTOR_PWR 1
9 AM03-010878A CABLE ASSY-RX_MOTOR_ENC 1

Page
+$1:+$
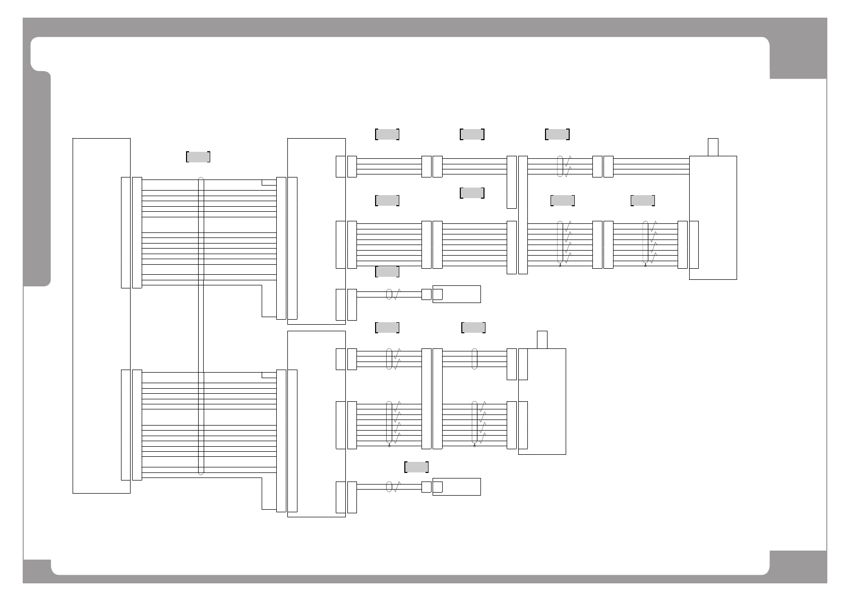
292
DECAN
F2
Axis IO Board (5/16)
1
1
3
4
7
6
6
2
58
2 2
AXIO BD #1
BOARD
MS1
DRIVER
WS1
DRIVER
CN21
SM511_VM013
+COM
CW
/CW
/CCW
ALM-RST
SERVO-ON
EN A+
EN A-
AXIO#1-CN21
AM03-010983A
501189-3010
5
6
1
2
3
4
7
8
11
10
23
24
25
26
18
15
16
17
22
20
12
13
14
9
21
EN B+
EN B-
EN Z
ALM
INP
SG
-COM
27
1
3
9
23
17
2
4
8
10
20
22
24
5
29
21
+COM
+COM
CW
/CW
CCW
/CCW
ALM-RST
SERVO-ON
OEXE
SDN
EN A+
EN A-
EN B+
EN B-
EN Z
ALM
INP
READY
SG
-COM
IN1
IN2
IN3
GSEL
-COM
MS1-DRV
/ALMRST
UL20276 20P*28AWG
CCW 7
GAIN
27
1
3
9
23
17
2
4
8
10
20
22
24
5
29
21
7
19
10
OUT1
FG
5
6
1
2
3
4
7
8
11
10
23
24
25
26
18
15
16
17
22
20
12
13
14
9
21
19
10
SM-26J
CN22
+COM
CW
/CW
/CCW
ALM-RST
SERVO-ON
EN A+
EN A-
AXIO#1-CN22
501189-3010
5
6
1
2
3
4
7
8
11
10
23
24
25
26
18
15
16
17
22
20
12
13
14
9
21
EN B+
EN B-
EN Z
ALM
INP
SG
-COM
27
1
3
9
23
17
2
4
8
10
20
22
24
5
29
21
+COM
+COM
CW
/CW
CCW
/CCW
ALM-RST
SERVO-ON
OEXE
SDN
EN A+
EN A-
EN B+
EN B-
EN Z
ALM
INP
READY
SG
-COM
IN1
IN2
IN3
GSEL
-COM
WS1-DRV
CCW 7
GAIN
27
1
3
9
23
17
2
4
8
10
20
22
24
5
29
21
7
19
10
OUT1
FG
5
6
1
2
3
4
7
8
11
10
23
24
25
26
18
15
16
17
22
20
12
13
14
9
21
19
10
SM-26J
A
/A
B
/B
MS1-CN3
4
3
2
1
4
3
2
1
19
20
21
22
SM511_VM013(H3)
AM03-010983A
L-CV-30P
51103-0400 XADRP-30V
A
/A
B
/B
MS1-CN2
1
2
3
4
SM511_CS201(H1)
AM03-010816B
L-CV-32P
C5
/C 6
5V 7
GND 8
PE 9
1
2
3
4
5
6
7
8
9
1
2
3
4
5
6
7
8
9
70066-0183 XADRP-32V
19
20
21
22
SM511_CS202-1(T3)
AM03-010823B
XADR-30V
A1
B1
A2
B2
A3
B3
A4
B4
J25MF-10V-K
A5
B5
1
2
3
4
5
6
7
8
9
XADR-32V
SM511_CS201-1(T1)
AM03-010823A
A1
B1
A2
B2
A3
B3
A4
B4
J25MF-10V-K
A5
B5
SHIELD
A1
B1
A2
B2
A3
B3
A4
B4
A5
B5
A6
B6
A7
B7
A8
B8
A9
B9
A10
B10
SM511_CS202-1(T3)
AM03-010823B
SHIELD
I-SH-P-EX2
I-SH-E-EX2
2
1
3
4
1
2
3
4
5
6
7
8
9
IN-SH-EX1PWR
ENC
172161-1 (9 CAP)
172159-1 (4 CAP)
J25DPM-20V-K
1
2
3
4
5
6
7
8
9
172169-1 (9 PLUG)
SHIELD
SMH250-9
1
2
3
4
5
6
7
8
9
1
2
3
4
5
6
7
8
9
IN SHUTTLE
MOTOR
A
/A
B
/B
WS1-CN3
4
3
2
1
4
3
2
1
23
24
25
26
SM511_CS202(H4)
AM03-010822B
L-CV-30P
51103-0400
A
/A
B
/B
WS1-CN2
1
2
3
4
C5
/C 6
5V 7
GND 8
PE 9
1
2
3
4
5
6
7
8
9
1
2
3
4
5
6
7
8
9
70066-0183 XADRP-30V
1
2
3
4
5
6
7
8
9
172169-1 (9 PLUG)
SHIELD
SMH250-09
1
2
3
4
5
6
7
8
9
1
2
3
4
5
6
7
8
9
IN WIDTH
MOTOR
SHIELD
6
4
3
1
IN-WD-PW
IN-WD-EN
2
5
PHR-6
23
24
25
26
6
4
3
1
2
5
SM511_CS202-1(T2)
AM03-010823B
SM511_CS201-3
AM03-010819A
IN.SH-EN
UL2464-SB 4P 24AWG
+24V
GND
WS1-CN1
A1
B1
A2
B2
1
2
SM411_PW029
AM03-010080A
DP2-CN3
1
2
5557-02R
UL2464 1P 22AWG
A3
B3
1-1318119-3
A1
B1
A2
B2
A3
B3
#2 DC
POWER B/D
+24V
GND
MS1-CN1
A1
B1
A2
B2
1
2
SM411_PW029
AM03-010080A
DP2-CN2
1
2
5557-02R
UL2464 1P 22AWG
A3
B3
1-1318119-3
A1
B1
A2
B2
A3
B3
#2 DC
POWER B/D
2
1
3
4
SM511_CS201-2
AM03-010818A