DECAN_F2_TRM部件名称.pdf - 第83页
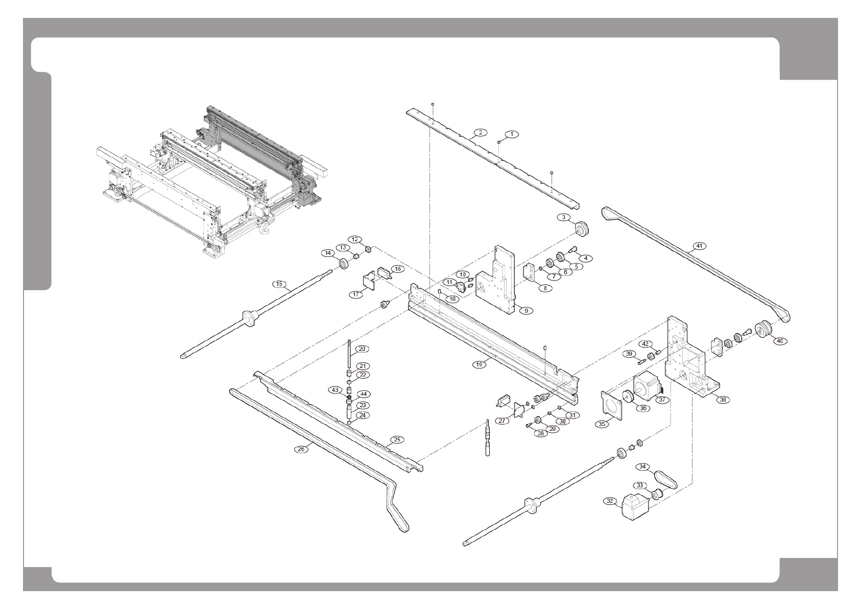
Page +$1:+$ 79 DECAN F2 Full Dual Conveyor (9/12) NO. P ART NO. P ART NAME Q'TY Old No. Supply Supply L T Reference 1 J7153373A FIDUCIAL_DISK 3 2 FC29-001514 B GUIDE-PCB_GUIDE RC;SM45C 1 F C29-001514A 3 J7153102 4A …

Page
+$1:+$
78
DECAN
F2
Full Dual Conveyor (9/12)

Page
+$1:+$
79
DECAN
F2
Full Dual Conveyor (9/12)
NO. PART NO. PART NAME Q'TY Old No. Supply Supply LT Reference
1 J7153373A FIDUCIAL_DISK 3
2 FC29-001514B GUIDE-PCB_GUIDE RC;SM45C 1 FC29-001514A
3 J71531024A WIDTH_PULLEY 1
4 J70531028A TENSION_BEARING_PIN 2
5 MC03-900121 BALL BEARING[F608ZZ] 2
6 MC03-900080 BALL BEARING[608ZZ] 2
7 J70531025A WIDTH_TENSION_SPACER 2
8 FC09-004587A TENSION_BRACKET 2 J70531027A
9 FC29-002750A SUPPORT_FIX_RAIL_R 1
10 FC29-900604 HEX SUPPORT 2 FC29-900611
11 EP19-900108 PHOTO SENSOR 1
12 FC18-900920 LOCK_NUT 2
13 J70531177A BUSHING 2
14 MC03-900008 BALL-BEARING-6000ZZ 2
15 MC13-900226 LEAD_SCREW 2
16 AM03-019720A CABLE ASSY-WORK_CONV_PCB SENSOR_DECAN 2
17 J70531644A BRACKET_WORK_SENSOR_H30 1
18 FC29-004427A STOPPER 2 2 J7253009B
19 FC39-001336A WORK_REAR_FRAME 1
20 J7153034A CLAMP SHAFT 2
21 MC06-900006 BALL_BUSH LMU5 4
22 FC18-001480A BUSH SPACER 2 J7153033A
23 FC01-000022A ADJUST SHAFT 2 J7153010B
24 FC29-004426A STOPPER 2 J7253008A
25 J71531046B CLAMP-REAR-FRAME 1
26 MC05-900057 BELT_WORK MAM-5P-1550-6W 1
27 FC09-002430B WORK SNS BKT R 1 FC09-002430A
28 MC19-001112A IDLER SHAFT-S 1 J2101818
29 J72531001A IDLER_2 5
30 FC18-001478A IDLER SPACER-S 1 J7053047A
31 J7053184A SQUARE NUT M4 3

Page
+$1:+$
80
DECAN
F2
Full Dual Conveyor (9/12)
NO. PART NO. PART NAME Q'TY Old No. Supply Supply LT Reference
32 EP08-000203 MOTOR,STEP-SPB42-2500P;SPB 1
33 J71531008A PULLEY_W_MOTOR 1
34 MC05-900058 TIMMING_BELT 1
35 J70531074A WORK_BELT_MOTOR_BRACKET 1
36 MC19-001136A PULLEY_B_M 1 J71531009A
37 AM03-011142B CABLE ASSY-BELT MOTOR 1
38 J70531014B SUPPORT_FIX_RAIL_LEFT 1
39 J70531021A IDLER_SHAFT_M 4
40 J71531007A PULLEY_WIDTH_MOTOR 1
41 MC05-900056 BELT_WIDTH_SYNC-1 1
42 J70531019A IDLER_SPACER_13 3
43 FC18-901355 C-RING 2
44 FC18-900900 HEX NUT 2