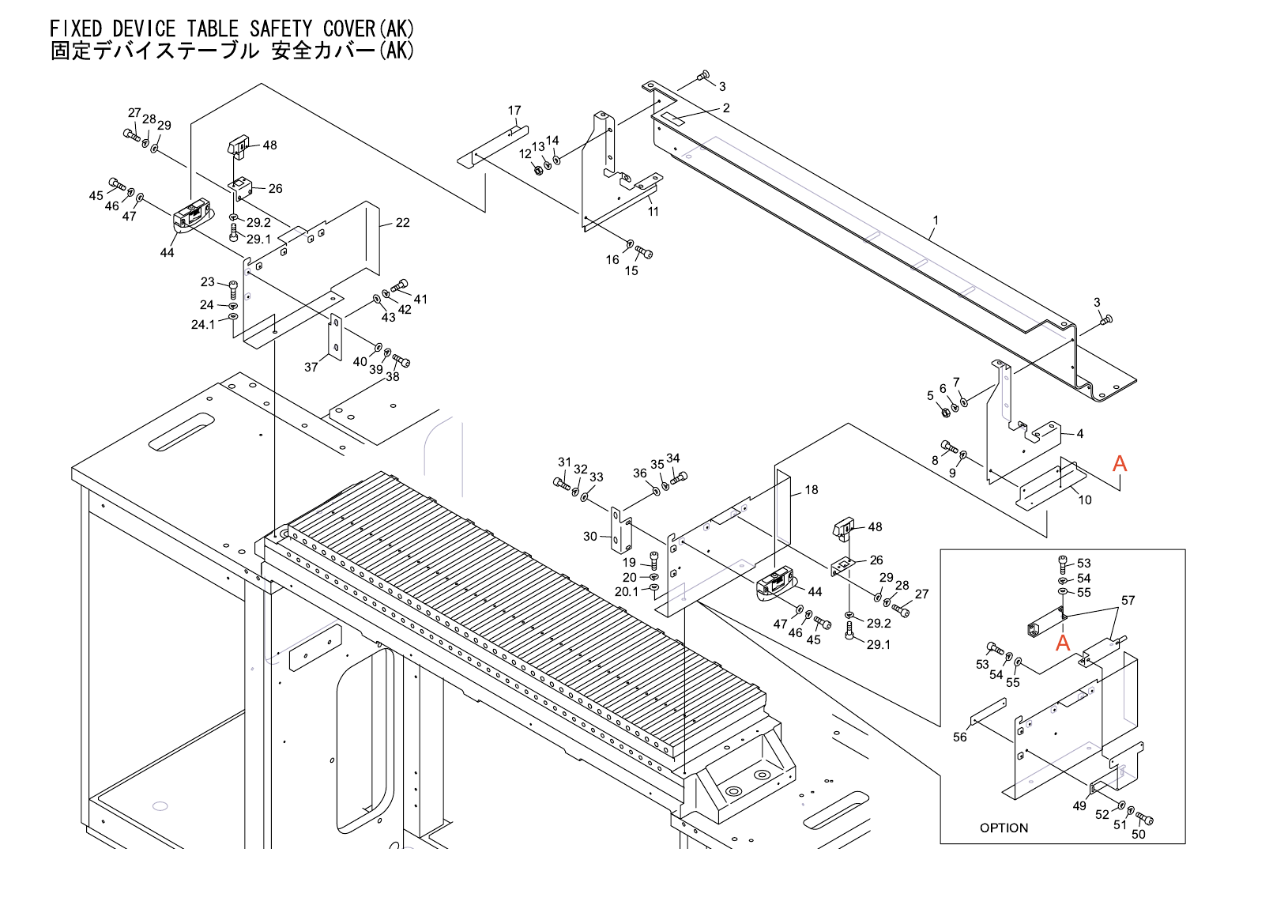
XP243 机械图.pdf - 第45页
45

COVER(AK) 2/
カバー(AK) 2/
No. Drg.No. & Code No. QTY Description Rating Materials Remarks
番号 図番 & コード番号 個数 品名 規格 材質 備考
40 W1022A 2 WASHER, LOCK
ワッシャ スプリング
4M/M FE Barcode Reader Option
41 N1080A 2 NUT, HEX
ナット 六角
M 4 P=0.7 FE Barcode Reader Option
42 DNAK1030 1 SHEET
シート
OT Barcode Reader Option
43 DNAK1040 1 SHEET
シート
OT Barcode Reader Option
44 DNAK1050 2 SHEET
シート
OT Barcode Reader Option
45 DNAK1060 1 SHEET
シート
OT Barcode Reader Option
46 DNAK1070 1 SHEET
シート
OT Barcode Reader Option
47 DNAK1270 1 BKT
BKT
FE Barcode Reader Option
48 H5287A 2 BOLT, HEX SOCKET
ボルト 六角穴
M04X008 ゼンネジ FE Barcode Reader Option
49 W1022A 2 WASHER, LOCK
ワッシャ スプリング
4M/M FE Barcode Reader Option
50 W1041A 2 WASHER, FLAT
ワッシャ 平
4M/MX0.8X9(1W-4) FE Barcode Reader Option
51 H5276A 2 BOLT, HEX SOCKET
ボルト 六角穴
M03X010 FE Barcode Reader Option
52 W1021A 2 WASHER, LOCK
ワッシャ スプリング
3M/M FE Barcode Reader Option
53
W1042A
2
WASHER, FLAT
ワッシャ 平
4W- 3
FE
Barcode Reader Option
44
45

46