JUKI2050&2060安装说明书.pdf - 第28页
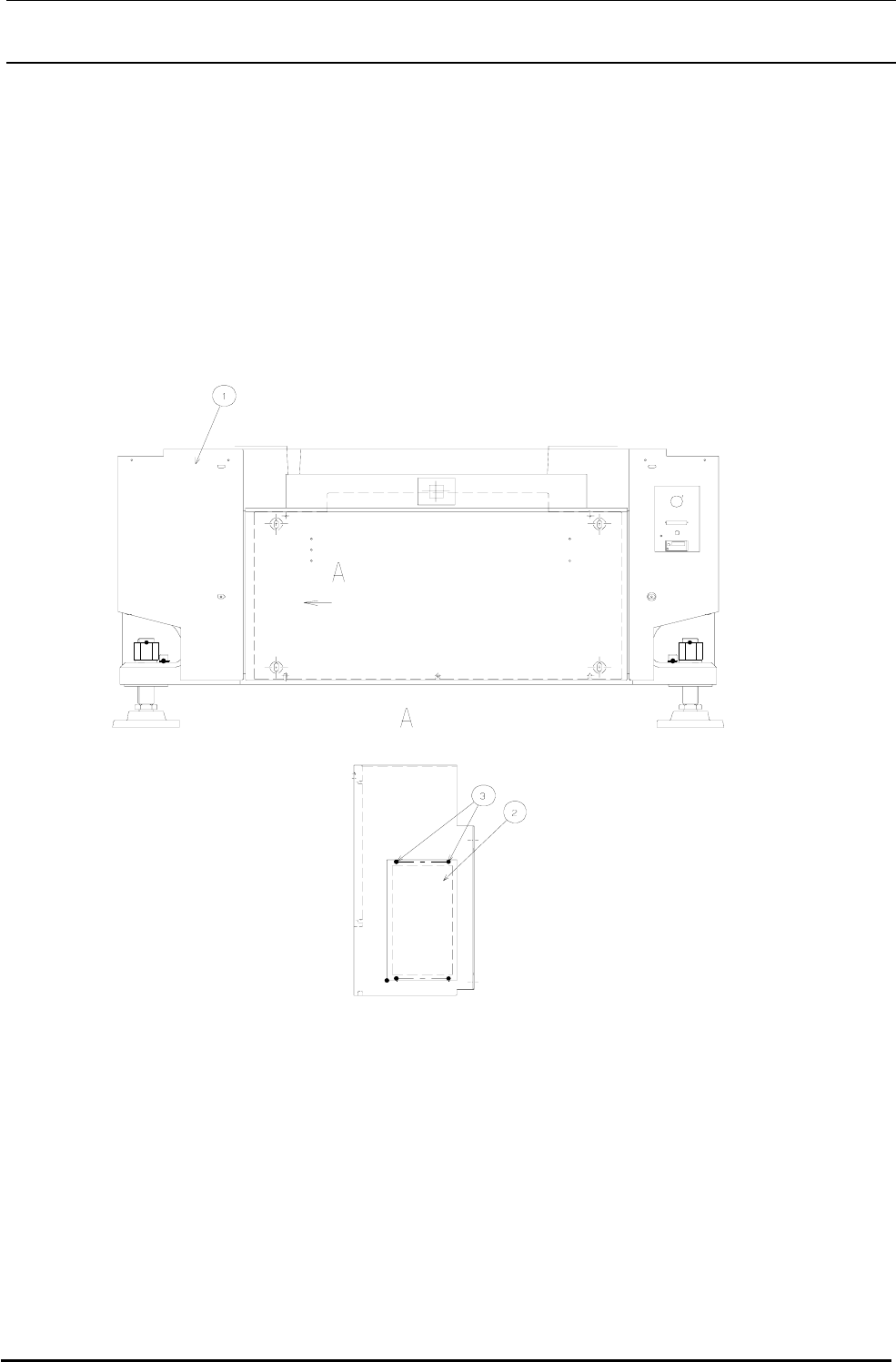
Rev.1.00 安装要领书 11. 电源电缆线的连接 11-1. 2050/2060 标准机 < 程序 > 1. 连接电源电缆线之前,请确认配电盘的断路器关闭等,连接电源电路的电源应被切断。 1. 卸下 ① 护罩 RBL 的 ③ 的螺丝,卸下 ② 的安装护罩。 22

Rev.1.00
安装要领书
UPJ304125301
弯管接头
UPF0552150A0
空气调节器
如上图所示,把φ10 空气软管安装到空气调节器,①的部分上安装着固定座,并用扎线带
固定。
请把附属的积水瓶如照片所示那样配置。
21

Rev.1.00
安装要领书
11. 电源电缆线的连接
11-1. 2050/2060 标准机
<程序>
1.连接电源电缆线之前,请确认配电盘的断路器关闭等,连接电源电路的电源应被切断。
1. 卸下①护罩RBL的③的螺丝,卸下②的安装护罩。
22

Rev.1.00
安装要领书
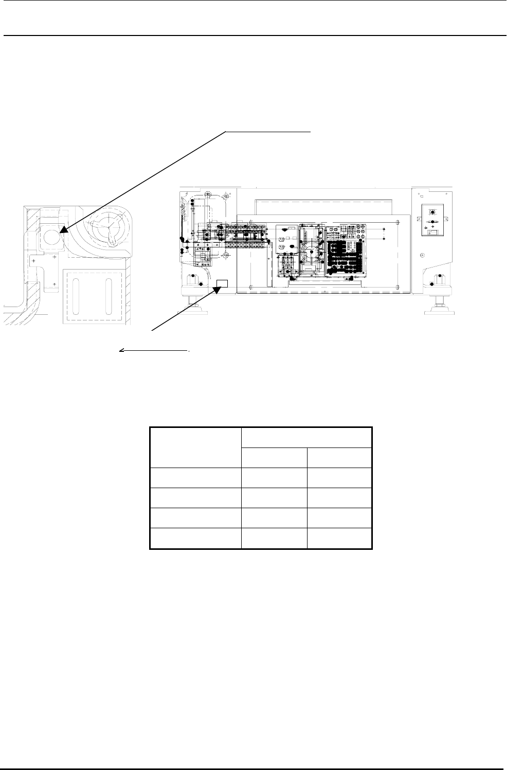
2. 请把一字形螺丝刀插到装置内部的接线端子座上,把电源的各线路连接到接线端子台。FG 线连
接到底架上的 FG 连接柱上。(电源电缆和 FG 线请参照表 1,请使用适合电缆长度的电缆线。)
端子台
U接线端子座
電源ケーブル挿入口
U电源电缆插入口
表 1 电缆长度的适合断面积
导体断面积[mm
2
]
电缆长度[m]
200V系列 400V系列
20以下 6 6
30 8 6
40 10 6
50 12 6
※变更电源电压时,请变更「变压器(伺服马达用)」「变压器(DC 电源用)」「AC 电源输入装置」的 3
个接线柱。
23