JUKI2050&2060安装说明书.pdf - 第44页
Rev.1.00 安装要领书 15. 主电源打开前的检查 < 程序 > 1. 是否进行了贴片机主机的水平调整了吗 ? 2. 传送轨道高度是否符合用户的规格要求 ? 3. 调节器的锁定螺母是否被牢牢地固定 ? 4. 是否正确地供给干燥空气 ? 5. 连接贴片机主机的电源线是否正确地连接 ?( 电压是否正确 ?) 6. X 轴、贴装头、 ATC 、传送轨道等的传送用固定金属部件是否脱落 ? 7. 附属品是否正确地安装 ? 8. 外部装置是否…

Rev.1.00
安装要领书
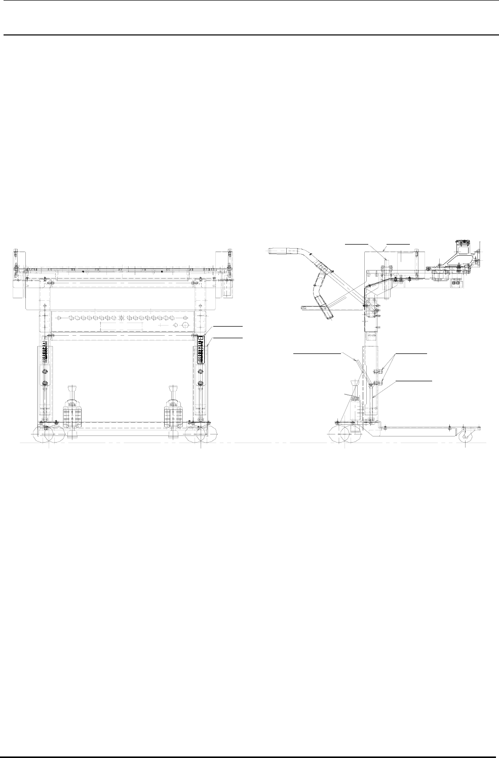
14-4. TR-5SN、TR-5DN
TR-5SN、TR-5DN 按照右图所示的位置进行安装。
图 14-4-1 TR-5SN 安装外观图
37

Rev.1.00
安装要领书
15. 主电源打开前的检查
<程序>
1.是否进行了贴片机主机的水平调整了吗?
2.传送轨道高度是否符合用户的规格要求?
3.调节器的锁定螺母是否被牢牢地固定?
4.是否正确地供给干燥空气?
5.连接贴片机主机的电源线是否正确地连接?(电压是否正确?)
6.X 轴、贴装头、ATC、传送轨道等的传送用固定金属部件是否脱落?
7.附属品是否正确地安装?
8.外部装置是否正确地连接?
9.各装置的轴是否可以用手动顺畅地转动?
・手拿 X 轴的两端,前后是否可以顺畅转动?
・手拿贴装板看看是否左右可以顺畅地移动?
・用手指转动 Z 和θ轴堪堪是否可以顺畅地转动?
38

Rev.1.00
安装要领书
16. 一次更换台(选购品)的高度调整
调整一次更换台的高度时,应在主机水平调整之后再进行调整。
16-1. 高度的调整方法
转动一次更换台的高度调整螺栓,可以无阶段地在传送高度 880mm~97mm 的范围内进行调整。
根据传送高度的大致高度,调整一次更换台的高度。
U防护罩 U导向轴
U球点的六角扳手
U高度调整螺
UM10 螺栓
U刻度标签
U刻度基准
图 16-1-1
(程序)传送高度和更换台车的尺寸不同时进行调整。
1. 拧松 4 个 M10 螺栓(不要拧下螺丝)。
2. 用球点的六角扳手转动高度调整螺栓,根据传送高度调整台车的刻度基准。(根据传送高度在±5mm
以内进行调整)
3. 固定 M10 螺栓。(拧紧扭矩 85 N・m)
〈注意〉
如果更换台车的高度与贴片机不一致时,请不要进行料库 UP 动作。
如果贴片机的传送高度和台车高度相差 10mm 以上时,导向轴会与防护罩上面相碰。
39