SM481_PLUS_TRM(Ver1.2_CS17.02).pdf - 第202页
Page +$1:+$ 190 SM481 PLUS Rear Feeder IF B/D(2/2) NO. Lev . PA R T N O . P ART NAME Q'TY Old No. Supply Supply L T Reference 1 J90800838D LEFT FDR SOL OUTPUT CABLE ASSY 1 SM_FD003 2 EP02-000588A HARNESS,WIRING-FEED…

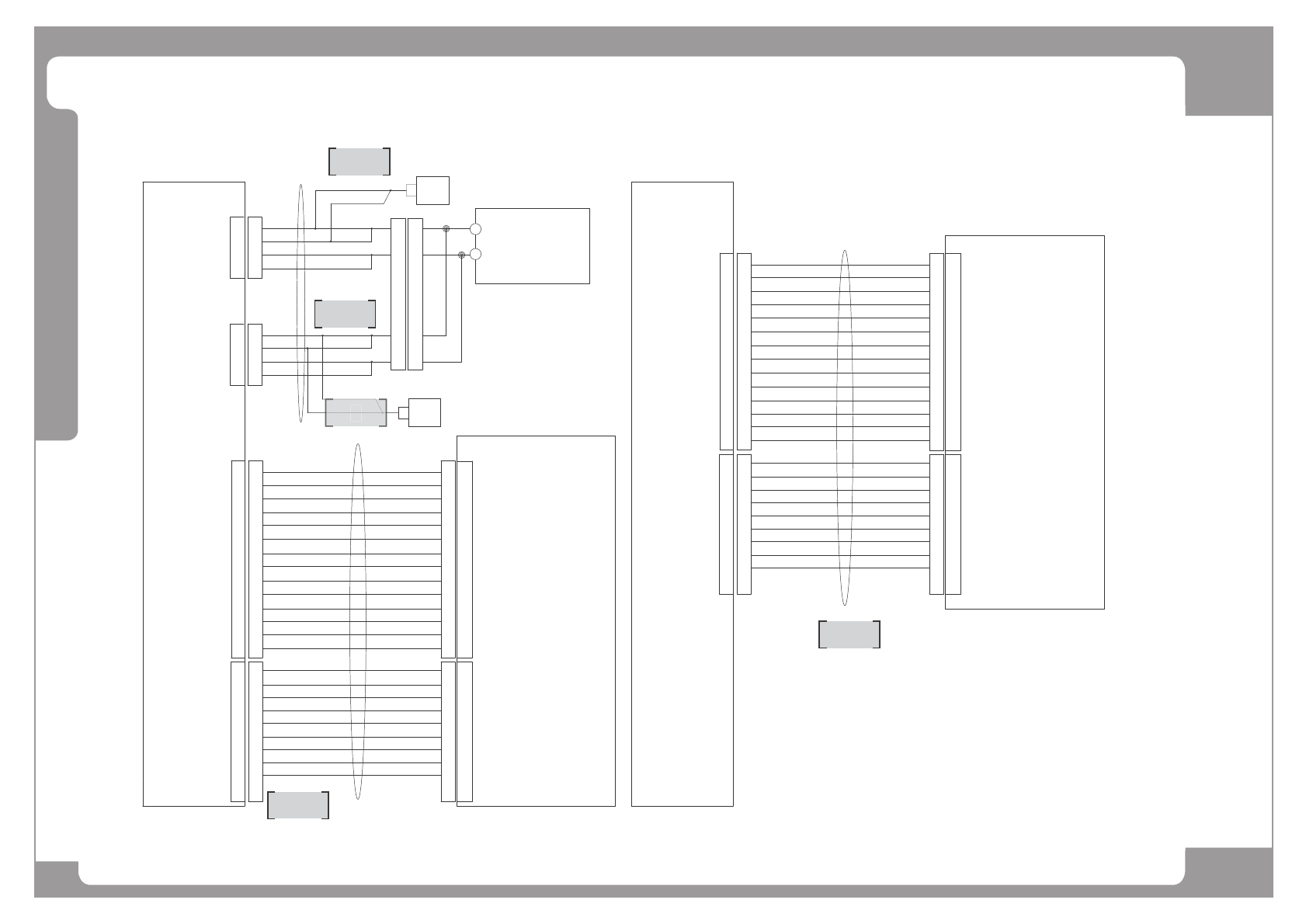
Page
+$1:+$
189
SM481
PLUS
Rear Feeder IF B/D(2/2)
11
60
~
60
CN5S
CN5P
60P
~
CN7P
12P
1
CN7S
FRONT FEEDER BASE
LEFT B/D
FEEDER #1~#29
SM_FD003
REAR FEEDER I/F
BOARD
2
3
4
5
6
7
8
1
2
3
4
5
6
7
8
9
10
11
12
9
10
11
12
1
2
3
4
5
6
7
8
9
10
11
12
1
2
3
4
5
6
7
8
9
10
11
12
SM411N_FD001
1
2
4
5
6
4
5
6
8P
CN13P
3
3
CN13S
1
2
1
2
8
7
8
7
1
2
FD-CN7-EX
FD-CN13-EX
1
1
GND
+24V
SM48_FD003
RY 3-8
RY 3-7
1
1
RY 4-8
RY 4-7
1
1
1
2
2
3

Page
+$1:+$
190
SM481
PLUS
Rear Feeder IF B/D(2/2)
NO. Lev. PART NO. PART NAME Q'TY Old No. Supply Supply LT Reference
1 J90800838D LEFT FDR SOL OUTPUT CABLE ASSY 1 SM_FD003
2 EP02-000588A HARNESS,WIRING-FEEDER CN7 EXT CABLE ASSY 1 SM411N_FD001
3 AM03-006885A CABLE ASSY-R FDR PWR RELAY 1 SM48_FD003

Page
+$1:+$
191
SM481
PLUS
Safety Control B/D(1/4)
SAFETY CONTROL
BOARD
MOLEX
CN2P
CN2S
+24V
24G
24G
+24V
4
3
1
2
4
3
1
2
DC POWER SUPPLY#1
MOLEX
+24V
24G
4
4
44
MOLEX 14PIN
CN3
22
33
MC1
+24V
11
READY LP
+24V
FRONT OP PANEL
2
2
3
3
1
1
5
5
6
READY SW
5
66
5
6
24G
FEM SW
10
9
10
9
10
9
REM1
+24V
88
77
8
7
24G
FDOOR SW
13
14
14
13
14
13
FD1
RD1
1212
11 11
12
11
7
8
9
10
11
12
13
14
FRONT READY SWITCH
FRONT EM SWITCH
FRONT DOOR SWITCH
SAFETY CONTROL
BOARD
REAR OP PANEL
MOLEX
CN1P
CN1S
+24V
24G
24G
+24V
4
3
1
2
4
3
1
2
MOLEX
4
3
2
1
SM48_PW033
1
RELAY
2-6
SC-EN2
1
RELAY
1-6
SC-EN1
SM48_PW201
T1L
MOLEX 10PIN
CN30
1
4
3
2
5
8
7
6
10
9
1
4
3
2
5
8
7
6
10
9
1
4
3
2
5
8
7
6
9
SM48_SC001
1
4
3
2
5
8
7
6
10
9
10
24G(FFD)
FFD-SW
24G(FSTT)
FSTART-SW
F-LED
+24V
F-SEL1
F-SEL2
24G
CN3
CN1
4
4
44
MOLEX 14PIN
CN4
22
33
MC1
+24V
11
READY LP
+24V
2
2
3
3
1
1
5
5
6
READY SW
5
66
5
6
24G
REM SW
10
9
10
9
10
9
REM1
+24V
88
77
8
7
24G
RDOOR SW
13
14
14
13
14
13
RD1
TF1
1212
11 11
12
11
7
8
9
10
11
12
13
14
REAR READY SWITCH
REAR EM SWITCH
REAR DOOR SWITCH
SM48-SC002
MOLEX 10PIN
CN31
1
4
3
2
5
8
7
6
10
9
1
4
3
2
5
8
7
6
10
9
1
4
3
2
5
8
7
6
9
1
4
3
2
5
8
7
6
10
9
10
24G(RFD)
RFD-SW
24G(RSTT)
RSTART-SW
R-LED
+24V
R-SEL1
R-SEL2
24G
CN3
CN1
4
3
2
1
SM48_PW120
SM48_PW032
24G
24G
1
2
3
3
4
5