00191024-01.pdf - 第389页
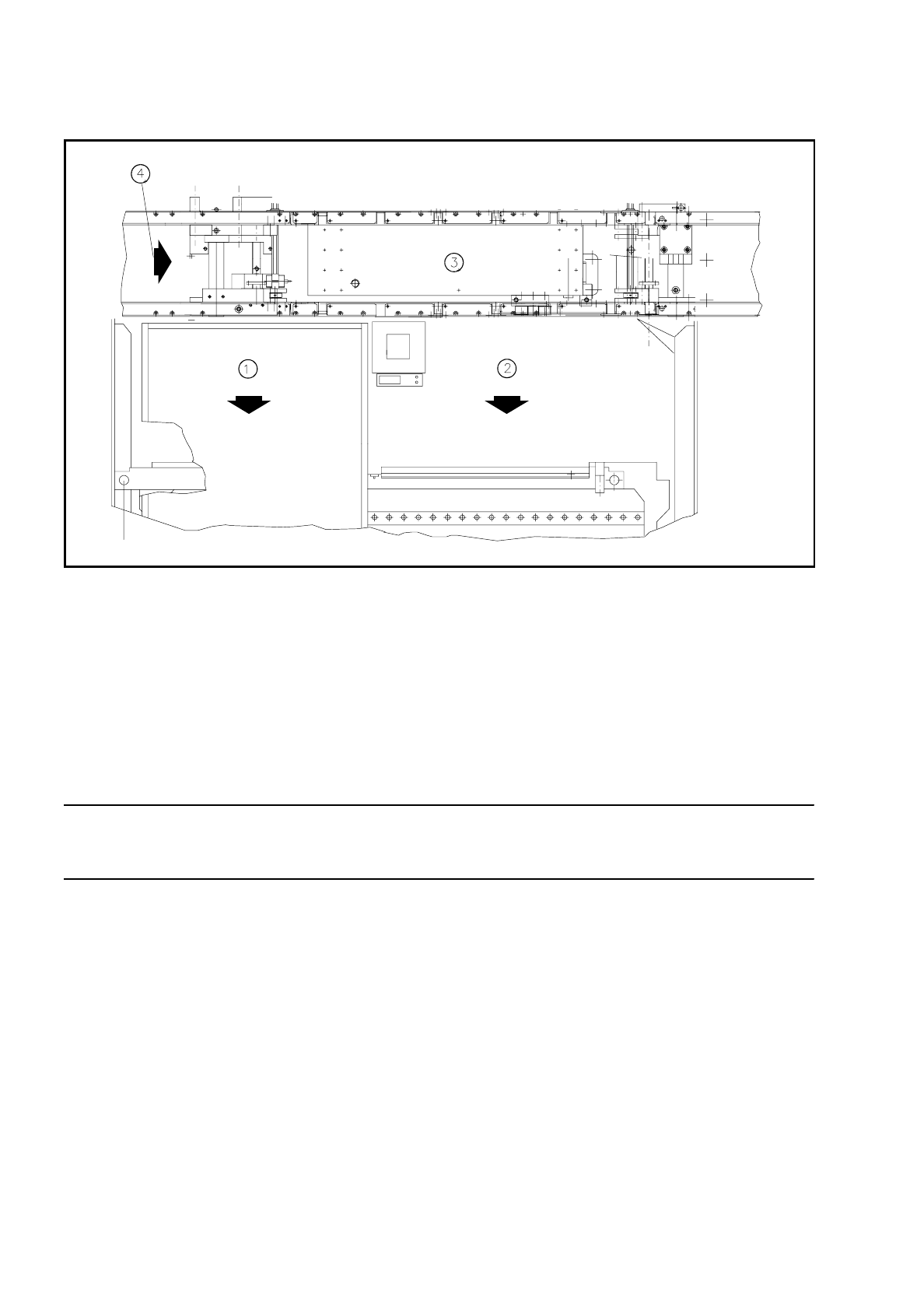
9 Instandhaltung Betriebsanleitung SIPLACE 80 S/F/G 9.3 Maschinenständer Ausgabe 07/97 ab Softwareversion SR.010.xx 9 - 26 Abb. 9.3.3 Wafflepackwechsler bzw. we chselfähiger BE-Tisch Legende Abb. 9.3.3 1 Wafflep ackw ech…

Betriebsanleitung SIPLACE 80 S/F/G 9 Instandhaltung
Ausgabe 07/97 ab Softwareversion SR.010.xx 9.3 Maschinenständer
9 - 25
VorBox
HINWEIS
Um Beschädigungen zu vermeiden, positionieren Sie den Bestückkopf 1 bzw. 2 innerhalb des LP-Transport-
bereichs. Verschieben Sie dazu das entsprechende Portal von Hand, indem Sie gegen eine Seitenfläche des
Portals drücken. Achten Sie bei Wartungsarbeiten insbesondere vor Einschalten des 80S-Automaten darauf,
daß der Mindestabstand zwischen den Portalen eingehalten wird. Positionieren Sie deshalb immer nur ein
Portal von Hand über den LP-Transport und führen Sie dann die Wartung der zugeordneten Leergurtschneid-
einrichtung durch.
Vorbereitende Arbeiten
GEFAHR
OOO
• Schalten Sie den Automaten am Hauptschalter aus und trennen Sie ihn von der Netzversorgung.
• Unterbrechen Sie die Druckluftzuführung mit dem Absperrhahn an der Drucklufteinheit.
WARNUNG
OO
• Warten Sie, bis sich der Druck in den Druckluftleitungen abgebaut hat. Sie erkennen dies daran, daß der
Messerbalken zum Schneidrad hin eingeschwenkt ist.
●
Öffnen Sie die Schutzhauben und die seitlichen Schwenktüren.
●
Verschieben Sie das entsprechende Portal aus dem Arbeitsbereich.
●
Entfernen Sie
–
beim 80S - Automaten den jeweiligen BE-Wechseltisch (siehe Abschnitt 9.3.3.7, Seite 9 - 22)
–
beim 80F - Automaten den jeweiligen BE-Wechseltisch (siehe Abschnitt 9.3.3.7, Seite 9 - 22) oder,
falls ein Wafflepackwechsler eingebaut ist, den Wafflepackwechsler
(siehe Abschnitt 9.7, Seite 9 - 89).
HINWEIS
Falls der Wafflepackwechsler noch nicht leergefahren ist, darf die Zuordnung der Magazinträger zur Spur
und die Drehstellung der Magazine zum Magazinträger nicht verändert werden!
●
Entfernen Sie die Schutzplatte der Schneideinrichtung.

9 Instandhaltung Betriebsanleitung SIPLACE 80 S/F/G
9.3 Maschinenständer Ausgabe 07/97 ab Softwareversion SR.010.xx
9 - 26
Abb. 9.3.3 Wafflepackwechsler bzw. wechselfähiger BE-Tisch
Legende Abb. 9.3.3
1 Wafflepackwechsler
2 Wechselfähiger BE-Tisch
3 Mittentransport
4 LP-Transportrichtung
Schneidmesser und Schneidrad prüfen, ggf. ersetzen
WARNUNG
OO
Berühren Sie nicht die Schneidkante des Schneidmessers! Verletzungsgefahr!
Führen Sie eine Sichtkontrolle von Schneidmesser und Schneidrad durch. Falls die Schneidkante stumpf und/
oder das Schneidmesser in das Schneidrad eingelaufen ist, müssen immer beide Teile ersetzt werden, wie
dies in der Serviceanleitung, Kapitel ’Bauelementetisch’, beschrieben ist. Dazu sind Einstellarbeiten erforder-
lich!
Führungsschiene reinigen und ölen, Schneidradschlitten fetten
●
An der Schneidkante besteht Verletzungsgefahr! Ziehen Sie feste Arbeitshandschuhe an!
●
Reinigen Sie die Führungsschiene (siehe Abb. 9.3.4, Seite 9 - 27) mit Alkohol. Entfernen Sie insbesondere
Fett- und Schmutzansammlungen jeweils am Ende des Schlittenverfahrwegs. Tragen Sie etwas Gleit- und
Korrosionsschutzmittel WD40 auf.
●
Um alle Stellen zu erreichen, verschieben Sie den Schlitten mit dem Schneidrad von Hand.
●
Tragen Sie etwas Gleit- und Korrosionsschutzmittel WD40 auf einen Pinsel auf und streichen Sie damit
Schneidrad und Schneidmesser ein.

Betriebsanleitung SIPLACE 80 S/F/G 9 Instandhaltung
Ausgabe 07/97 ab Softwareversion SR.010.xx 9.3 Maschinenständer
9 - 27
●
Schmieren Sie die zwei Schmiernippel des Schneidradschlittens (siehe Abb. 9.3.4, Seite 9 - 27) mit einer
geringen Menge Urethyn E/M2 (ca. 0,5 g + 0,25 g pro Schmiernippel). Verwenden Sie dazu die Fettpresse.
●
Verschieben Sie zum Schluß den Schlitten mit dem Schneidrad mehrmals auf der Führungsschiene hin
und her, um das Fett gleichmäßig auf den seitlichen Führungsflächen der Führungsschiene zu verteilen.
Zahnriemen fetten
●
Fetten Sie den Zahnriemen zum Bewegen des Schneidradschlittens (siehe Abb. 9.3.4, Seite 9 - 27) und
den Zahnriemen für die Drehbewegung des Schneidrads (siehe Abb. 9.3.4, Seite 9 - 27) leicht mit Sta-
burags N12.
Abb. 9.3.4 Leergurtschneideinrichtung warten (Leergurtleitkanal ausgebaut)
Legende zu Abb. 9.3.4:
1 Ausbau des wechselfähigen BE-Tisches
2 Schneidmesser
3 Zahnriemen zum Bewegen des Schneidradschlittens
4 Zahnriemen für die Drehbewegung des Schneidrads
5 Führungsschiene
6 Schneidrad
7 Schmiernippel