2RGKBM006507.pdf - 第51页
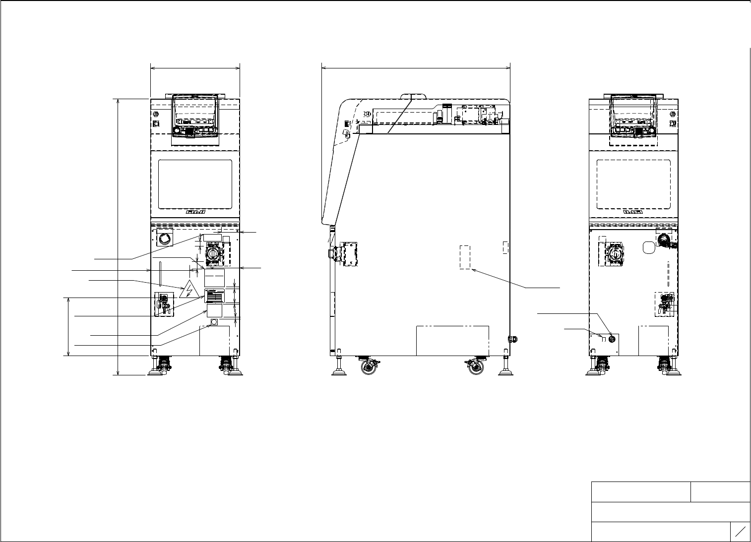
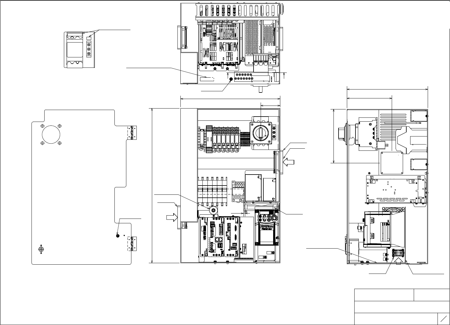
NAME T I T L E DRAWING N o. 部品配置図 2R G KB M0 06 10 8 ARRANGEMENT TYPE SNC-01 1 5 FUJI SECRET < F r o n t v i e w > < R i g h t S i d e v i e w > < R e a r V i e w > 10 CE <警告> メンテナンスは 機械電源を落とし てから行って下さ い <WARNIN G> DISCO…

NAME
TITLE
DRAWING No.
機構図
INSTRACTION DIAGRAM
2RGKBM006006
ストッカ部(オプション)
STOCKER PART(OPTION)
TYPE
SNC-01
4
4
FUJI SECRET
ストッカ部
STOCKER ELEVATOR SZ-AXIS
+
ー
前進
STOCKER SECTION PALLET
後退
STOCKER PART
ストッカ部パレット
ADVANCE
RETRACT
エレベータ部
SZ軸
STM1
STLS2X_R
STLS1X_R STBK1
STLS1W
STLS2X_T
STLS1X_T
STLS2P
STLS3P
STLS2W
STLS1P

NAME
TITLE
DRAWING No.
部品配置図
2RGKBM006108
ARRANGEMENT
TYPE
SNC-01
1
5
FUJI SECRET
< F r o n t v i e w > < R i g h t S i d e v i e w > < R e a r V i e w >
10
CE
<警告>
メンテナンスは機械電源を落としてから行って下さい
<WARNING>
DISCONNEC T P OWE R PR IOR TO SERVICING
INTERNAL CONDUCTOR AMPACITY
電線太さ 電流容量
Conductor Size A mpacity
2
AWG or MCM(mm) in Enclosure(A)
14 (2.1) 20
12 (3.3) 25
10 (5.3) 40
8 (8.4) 60
6 (13.3) 80
4 (21.2) 105
電源給電は、60~75℃以上の耐熱 性を持っ た銅線で配線して
ください。
60/75℃ field installed
copper conductors are required.
供給電源の電線太さ
LAN
K1AD1 K1COV1
K1CR2
RATING S OF MACHINE
TY PE
SNC -01
DESIGNATION
SMART NOZZLE CLEAN
DRAWING NUMBER
2RGKB M0058**
SU PPL Y VOL TAGE
AC200 V
FU LL LOAD AMP. 10A
SHORT-CIRCUIT-CUR RENT-RATING 10k Ar ms
SHORT-CIRCUIT-BRE AKING CAPACITY 14k A
FR EQ. 50/ 60H z
PH ASE 3
EN CLO SURE RATI NG IP 22
FUJI MACHINE MFG.CO. ,LTD
19 Chausuyama Yamamachi Chiryu,Aichi,Japan,472-8686
TEL: +81 (56 6)81 -21 10
M1M1
M1
M1M1
M2FAN2
M1PCB8
EEBR1870
2EGLBA0009**
EEBR1923
2MGKXS0016**
EEBR1860
20
30
10
10
10
EEBR1740
449.2
1391
948.993
90
130
200
300
LAN
Power activation mouth
M1PCB8

NAME
TITLE
DRAWING No.
部品配置図
2RGKBM006108
ARRANGEMENT
TYPE
SNC-01
2
5
FUJI SECRET
A-A断面図
L1 L2 L3
PE
M1NFB1M1SK1
A
A
C1CS3M1CR11X
M1CR4X M1CR6X
M1SR1
M1CR5X
C1CS2 C1CS4
TB2
M1SK1
AIR
M1FAN1
M1REC1
M1CP1 M1CP2 M1CS13X1
M1REC3
M1FAN3
M1IV1
M1CN1
M1REC2
AIR
M1PCB1 M1PCB2
AIR
注1:DINレールとM1REC1,3用BKTの間を10mm空ける事
2EGKBA0430**
S/N バーコードシール貼付
EEBR1791
560
69
360
145
195
290
M1FAN1
フィルタ
注1:(10)
M1FAN3
RX00191
EEBR1791
M1FAN6
2EGKBA0470**
2EGKBA0471**
M1FAN6