NPM_Parts List V2_3_N7203A329B03.pdf - 第232页
17-D 基 板 ホルダデュア ル対応:NPM Bo ard H old er For D ual :NP M パーツレイアウト Ki t N o . キット 品番 Kit N am e キット名称 N6 1009 341 2AA セクションNo. PARTS LAYOUT Section No. - - O125 ( KN610093412AA-04-4 )

Ref
No.
Remarks
R
1
Q'ty
17-C
基
板
ホルダデュアル対応:NPM
Board Holder For Dual:NPM
イラスト
No.
Part No.
品 名品番 数量
R
2
パーツリスト
Kit N
o
.
キット品
番
Kit Name
キット名称
N610093412AA
Part Name
備 考
セクションNo.
PARTS LIST
Section No.
R
3
PLATE
2
6 N210124266AA
CYL-NUT
4
9 N210124185AA
CYL-NUT
4
10 N210122008AA
GUIDE
2
20 N210124181AA
PIN
8
37 N510020608AA MMS5-15
SCREW
8
41 N510034901AA 87ANBN6-15
LINEAR-BUSH
8
43 N510050719AA LMH8LUU
WASHER
4
44 N510039173AA RR6.5-16
CYLINDER
4
54 N510050739AA CJ2F10-100
JOINT
8
55 KXF0D2ZAA00 KQ2L04-M5
BOLT
8
69 N510017344AA
Hexagon socket head cap screw M4X10-10.9 A2J (Trivalent)
BOLT
12
70 N510017346AA
Hexagon socket head cap screw M4X12-10.9 A2J (Trivalent)
WASHER
8
75 N510018497AA
Round finish plain washer 4 10H A2J (Trivalent)
WASHER
4
78 N510020099AA Thick washer M4
BOLT
16
82 N510017341AA
Hexagon socket head cap screw M3X8-10.9 A2J (Trivalent)
WASHER
4
87 N510020098AA Thick washer M3
SHAFT
8
98 N510051415AA SF08146M04B
SPACER
8
99 N510051857AA CU-407PH
WASHER
8
100 N510032235AA 87URWM10-6-2
WASHER
4
101 N510051858AA 87URWM15-10-2
BOLT
4
102 N510017305AA
Hexagon socket head cap screw M3X10-10.9 A2J (Trivalent)
O124
--
( KN610093412AA-04-3 )

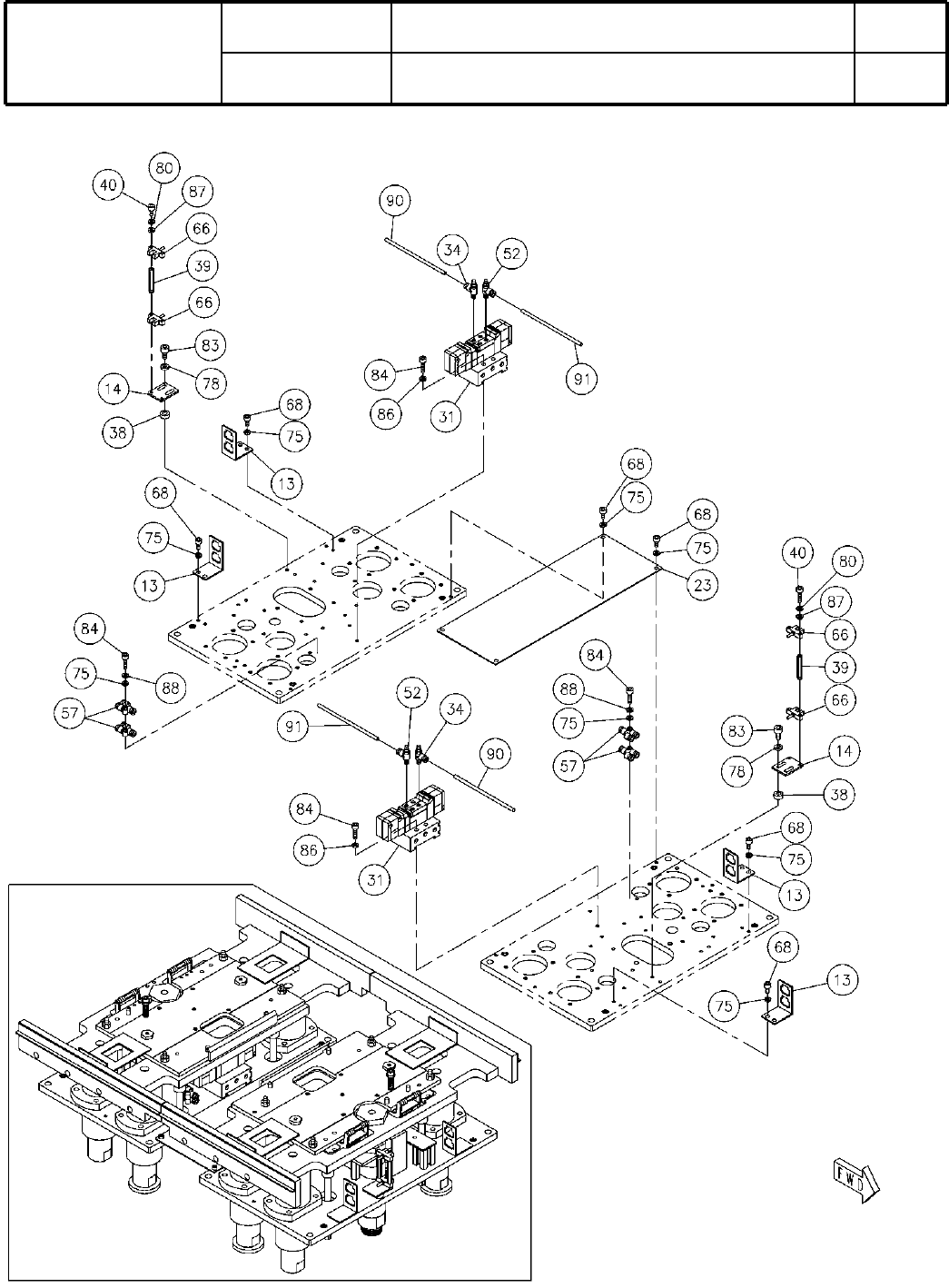
17-D
基
板
ホルダデュアル対応:NPM
Board Holder For Dual:NPM
パーツレイアウト
Ki
t
N
o
.
キット
品番
Kit Name
キット名称
N610093412AA
セクションNo.
PARTS LAYOUT
Section No.
--
O125
( KN610093412AA-04-4 )

Ref
No.
Remarks
R
1
Q'ty
17-D
基
板
ホルダデュアル対応:NPM
Board Holder For Dual:NPM
イラスト
No.
Part No.
品 名品番 数量
R
2
パーツリスト
Kit N
o
.
キット品
番
Kit Name
キット名称
N610093412AA
Part Name
備 考
セクションNo.
PARTS LIST
Section No.
R
3
BRACKET
4
13 N210097322AA
PLATE
2
14 N210125619AA
COVER
1
23 N210122017AA
MANIFOLD
2
31 N510051809AA M4GA130-M5-A2N-2-FL424711-3
SPEED-CONTROLLER
4
34 KXF00YVAA00 AS1211F-M5-06
WASHER
4
38 N510038745AA TT6.5
SPACER
4
39 N510015581AA CF-335E
BOLT
4
40 N510017335AA
Hexagon socket head cap screw M3X55-10.9 A2J (Trivalent)
SPEED-CONTROLLER
4
52 KXF00YSAA00 AS1211F-M5-04
JOINT
4
57 KXF0DZ4ZA00 KQ2U04-00
SENSOR
4
66 N510049698AA EE-SX910-C2J-R 0.2M
BOLT
12
68 N510017381AA
Hexagon socket head cap screw M4X8-10.9 A2J (Trivalent)
WASHER
14
75 N510018497AA
Round finish plain washer 4 10H A2J (Trivalent)
WASHER
4
78 N510020099AA Thick washer M4
WASHER
4
80 N510018327AA Spring lock washer No.2 3 S A2J (Trivalent)
BOLT
4
83 N510017351AA
Hexagon socket head cap screw M4X16-10.9 A2J (Trivalent)
BOLT
6
84 N510017361AA
Hexagon socket head cap screw M4X30-10.9 A2J (Trivalent)
WASHER
4
86 N510018479AA
Small round-plain washer 4 10H A2J (Trivalent)
WASHER
4
87 N510020098AA Thick washer M3
WASHER
2
88 N510018330AA Spring lock washer No.2 4 S A2J (Trivalent)
TUBE
1
90 KXF03U6AA00 TU0604B-20
TUBE
1
91 KXF03TEAA00 TU0425B-20
O126
--
( KN610093412AA-04-4 )