RS-1_RS-1-XL_RS-1R-Rev16.pdfPDFA.pdf - 第93页
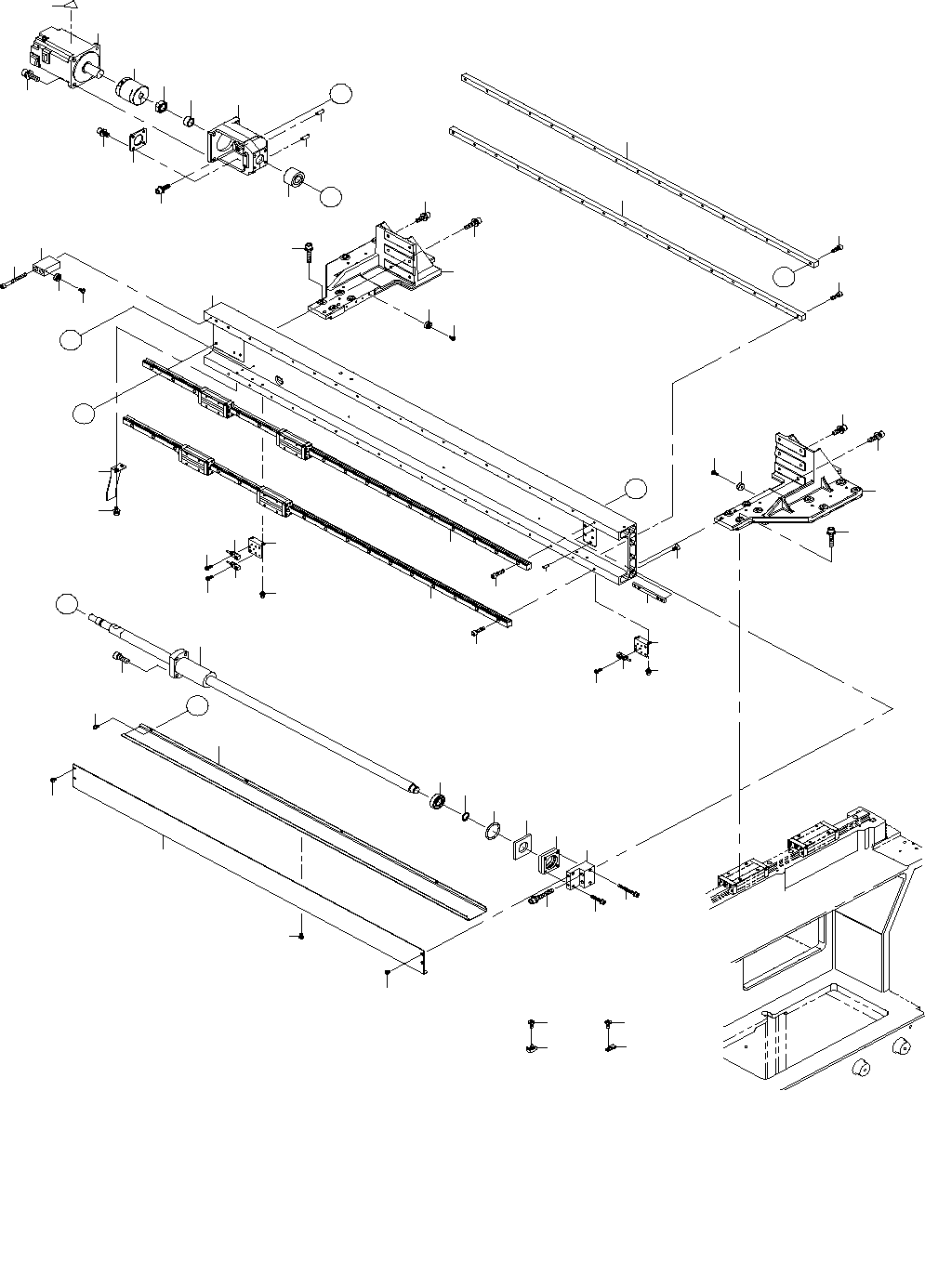
- 86 - REF.NO NOTE PART NO D E S C R I P T I O N 品 名 Qty 1 401-77461 Y_MOTOR_FRAME2 Yモータフレーム2 2 2 SL-6062592-TN SCREW M6 L=25 座金付き六角穴ボルト M6 L=25 8 3 401-46348 Y AXIS SERVO MOTOR Y軸モータ 2 4 SM-6082002-TN SCREW M8 L=20 六角穴ボ…

- 85 -
43.X-Y COMPONENTS (6) (RS-1R)
X − Y 関係(6)(RS −1 R)
9
14
8
9
39
25
22
21
14
8
4
1
7
3
2
15
16
24
24
31
26
38
28
27
27
31
34
35
5
6
33
33
6
5
35
34
2
3
7
1
4
39
C
C
18
19
20
23
40
10
37
41
12
29
30
30
32
32
36
13
13
17
37
41
37
41
11
A
49
B
47
46
48
44
45
43
42
B

- 86 -
REF.NO NOTE PART NO D E S C R I P T I O N
品 名
Qty
1 401-77461 Y_MOTOR_FRAME2
Yモータフレーム2
2
2 SL-6062592-TN SCREW M6 L=25
座金付き六角穴ボルト M6 L=25
8
3 401-46348 Y AXIS SERVO MOTOR
Y軸モータ
2
4 SM-6082002-TN SCREW M8 L=20
六角穴ボルト M8 L=20
8
5 401-77465 BEARING_PLATE
ベアリングプレート
2
6 SL-6051292-TN SCREW M5 L=12
座金付き六角穴ボルト M5 L=12
8
7 401-82778 COUPLING_STF-056SA1
カップリングSTF−056SA1
2
8 401-06041 Y_BALL_SCREW_L
Y軸_ボールねじ_L
2
9 401-06024 Y BS CONNECTOR
Yボールねじコネクタ
2
10 402-09512 X_CABLE_BEAR_SUPPORT
Xケーブルベアサポート
1
11 SL-6041092-TN SCREW
座金付き六角穴ボルト
6
12 401-82769 Y_CB_SUPPORT_ANGLE_A
YCBサポートアングルA
1
13 SL-6062592-TN SCREW
座金付き六角穴ボルト
8
14 SM-6061602-TN SCREW M6 L=16
六角穴ボルト M6 L=16
8
15 402-09514 X_CABLE_CLAMP
Xケーブルクランプ
1
16 L153E-321-000 FC RUBBER
FC ルーバー
2
17 SL-6041092-TN SCREW
座金付き六角穴ボルト
1
18 401-10219 FC_SUPPORT_Y_V2
FCサポートY_V2
1
19 400-98052 FC_RUBBER_Y
FC_ラバー_Y
3
20 SL-6061292-TN SCREW M6 L=12
座金付き六角穴ボルト M6 L=12
2
21 402-11718 CB_SUPPORT_SHEET
CBサポートシート
1
22 401-10451 X CABLE BEAR
Xケーブルベア
1
23 SL-6040892-TN SCREW M4 L=8
座金付き六角穴ボルト M4 L=8
2
24 SM-6041002-TN SCREW
六角穴ボルト
8
25 401-82750 Y_CB_SUPPORT
Y_CBサポート
1
26 400-60210 Y CABLE BEAR(E)
Yケーブルベア(E)
1
27 SM-3051052-TN SCREW M5 L=10
丸ねじ M5 L=10
4
28 400-46005 CB BRACKET L
CBブラケットL
1
29 WP-0431005-SP PLAIN WASHER
平座金
1
30 SL-6040892-TN SCREW M4 L=8
座金付き六角穴ボルト M4 L=8
3
31 L132E-421-000 CB BRACKET PIN X
CB ブラケット ピン X
2
32 WP-0531001-SC WASHER M5
平座金みがき丸 M5
4
33 SB-1150016-00 BEARING
ころがり軸受
2
34 400-93876 BEARING_LOCK_NUT
ベアリング_ロック_ナット
2
35 401-77466 COLLAR_150_200_60
カラー_150_200_60
2
36 SL-6040892-TN SCREW M4 L=8
座金付き六角穴ボルト M4 L=8
3
37 402-11719 CB_SUPPORT_ANGLE
CBサポートアングル
3
38 400-46006 CB BRACKET R
CBブラケットR
1
39 CM-3003000-03 HIGH TEMPARATURE CAUTION LABEL 2 (31.5)
高温注意シール2(31.5)
2
40 SM-1030601-SC SCREW M3X6
皿ねじ M3X6
3
41 SL-6041092-TN SCREW M4 L=10
座金付き六角穴ボルト M4 L=10
6
42 400-93864 O_RING_X
O_リング_X
4
43 402-17393 ADJUST_BLOCK
アジャストブロック
2
44 402-19594 END_BRACKET
エンドブラケット
2
45 SL-6062092-TN SCREW M6 L=20
金付き六角穴ボルト
4
46 SL-6052092-TN SCREW
金付き六角穴ボルト
8
47 SB-1150004-00 RADIAL BEARING
ラジアル軸受
4
48 400-93876 BEARING_LOCK_NUT
ベアリング_ロック_ナット
2
49 401-77466 COLLAR_150_200_60
カラー_150_200_60
2

- 87 -
44.X-Y COMPONENTS (7) (TYPE XL)
X − Y 関係(7)(XL 仕様)
C
B
35
16
48
36
33
32
30
29
10
18
19
45
40
B
C
35
56
27
48
47
50
49
50
50
A
A
46
41
44
43
39
38
37
28
13
9
8
3
4
2
42
47
D
2
4
D
5
5
53
54
11
52
51
52
51
15
17
27
34
22
23
57
57
1
6
7
12
14
20
21
31
24
7
25
26
55
58
59
60 60