RV-2_RV-2-3D_RV-2-3DH-Rev03.pdf - 第27页
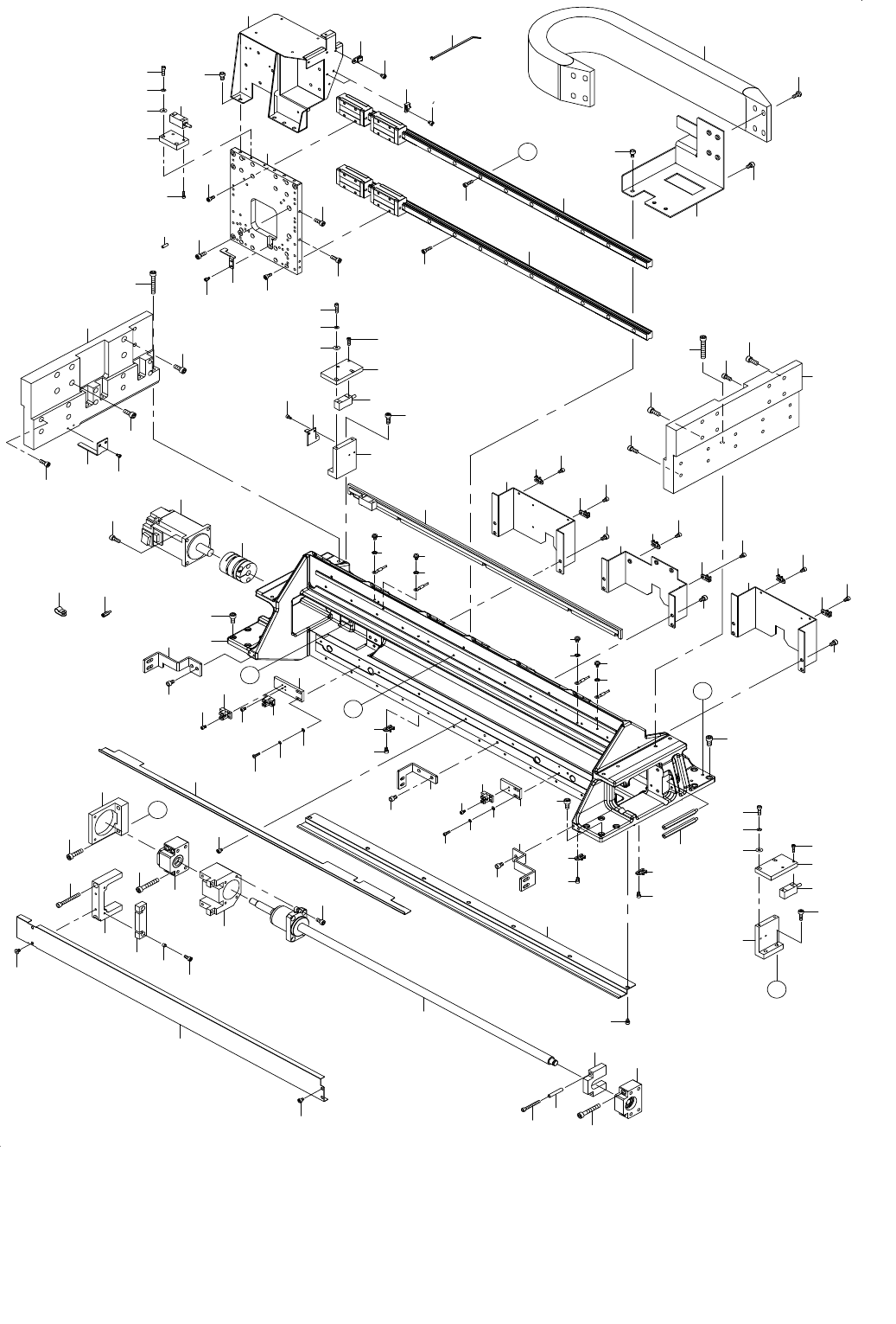
- 20 - REF.NO NOTE PART NO D E S C R I P T I O N 品 名 Qty 1 401-57019 RV2 X BEAM RV2 Xビーム 1 2 401-57113 X CABLE BARE BRACKET1 Xケーブルベアブラケット1 1 3 401-57114 HEAD BASE(RV2) ヘッドベース(RV2) 1 4 401-58292 SERVO MOTOR サーボモーター 1 5 40…

- 19 -
10.X UNIT COMPONENTS
X ユニット関係
2
4
35
5
1
6
7
10
13
16
17
21
23
26
27
27
28
37
38
39
39
41
15
47
52
20
9
46
56
5
56
5
51
59
60
60
59
51
51
55
57
58
54
54
54
32
48
50
19
43
43
43
44
44
53
53
53
61
62
62
53
45
45
55
60
59
51
45
48
45
45
45
63
48
48
24
45
41
42
11
A
54
34
12
A
B
B
36
53
18
16
3
52
52
41
51
28
C
C
25
41
43
40
22
14
65
64
65
64
65
64
65
64
54
29
49
70
62
53
62
53
62
53
67
48
54
66
48
33
39
55
57
58
44
68
48
62
30
62
53
53
62
53
62
53
31
62
62
53
53
48
48
45
69
8

- 20 -
REF.NO NOTE PART NO D E S C R I P T I O N
品 名
Qty
1 401-57019 RV2 X BEAM
RV2 Xビーム
1
2 401-57113 X CABLE BARE BRACKET1
Xケーブルベアブラケット1
1
3 401-57114 HEAD BASE(RV2)
ヘッドベース(RV2)
1
4 401-58292 SERVO MOTOR
サーボモーター
1
5 401-58297 LINER SCALE HEAD
センサーHD
3
6 401-57115 COUPLING (XGT-39CS-10X14)
カップリング (XGT−39CS−10X14)
1
7 401-57116 X STOPPER BLOCK
Xストッパーブロック
1
8 401-57117 DUCT STAY (2)
ダクト ステ− (2)
1
9 401-57118 X STOPPER (L)
X軸ストッパー (L)
1
10 401-57119 X STOPPER (R)
X軸ストッパー (R)
1
11 401-57120 X MOTOR BRACKET
X軸モータブラケット
1
12 401-57121 X BASE JOINT
Xベースジョイント
1
13 401-57122 BALL SCREW COVER (1)
ボ−ルねじカバ− (1)
1
14 401-57123 X CABLE BARE BRACKET(2)
X ケーブル ベア ブラケット(2)
1
15 401-57124 SCREW
ボールねじ
1
16 401-57125 LM GUIDE
LM ガイド
2
17 401-57126 SUPPORT UNIT (BF12)
サポート ユニット (BF12)
1
18 401-57127 SUPPORT UNIT (BK12)
サポート ユニット (BK12)
1
19 401-57128 SPACER
スペーサ
2
20 401-57129 SPACER
スペーサ
2
21 401-57130 HEXAGON SUPPORT
六角支柱
2
22 401-57070 SPACER (HEXAGON) M3 L=12
スペーサー(六角) M3 L=12
4
23 401-57131 BARE
ケ−ブルベア
1
24 401-57132 Y MOTOR BRACKET L
YモーターブラケットL
1
25 401-57133 Y MOTOR BRACKET R
YモーターブラケットR
1
26 401-57134 Y ORG SENSOR DOG
Y原点センサドグ
1
27 401-57135 Y SCALE HEAD PLATE
Yスケールヘッドプレート
2
28 401-57136 Y SCALE HEAD BASE
Yスケールヘッドベース
2
29 401-62160 Y LIMIT SENSOR DOG
Yリミットセンサードグ
1
30 401-57138 DUCT STAY(1)
ダクトステイ(1)
1
31 401-57139 DUCT STAY(3)
ダクトステイ(3)
1
32 401-57140 X LIMIT SENSOR DOG
Xリミットセンサドグ
1
33 401-57110 XY LIMIT SENSOR PLATE
XYリミットセンサプレート
1
34 401-57111 XY ORG SENSOR PLATE
XY原点センサプレート
1
35 401-57141 X SCALE HEAD PLATE
Yスケールヘッドプレート
1
36 401-57142 BALL SCREW COVER 2
ボールねじカバー2
1
37 401-62486 UNDER COVER
アンダーカバー
1
38 401-58298 LINER SCALE X
スケールX
1
39 HD-0032000-00 SENSOR
センサ
3
40 HX-0023300-0E NYLON BAND
束線バンド
15
41 SM-6064002-TT SCREW M6 L=40
六角穴ボルト M6 L=40
14
42 SM-6062502-TT SCREW M6 L=25
六角穴ボルト M6 L=25
2
43 SM-6062002-TT SCREW M6 L=20
六角穴ボルト M6 L=20
16
44 SM-6061202-TT SCREW M6 L=12
六角穴ボルト M6 L=12
16
45 SM-6051402-TT SCREW M5 L=14
六角穴ボルト M5 L=14
32
46 SM-6051202-TT SCREW M5 L=12
六角穴ボルト M5 L=12
1
47 SM-6051002-TT SCREW M5 L=10
六角穴ボルト M5 L=10
4
48 SM-6050802-TT SCREW M5 L=8
六角穴ボルト M5 L=8
31
49 SM-6054502-TT SCREW M5 L=45
六角穴ボルト M5 L=45
2
50 SM-6043502-TT SCREW M4 L=35
六角穴ボルト M4 L=35
2
51 SM-6041402-TT SCREW M4 L=14
六角穴ボルト M4 L=14
30
52 SM-6041002-TT SCREW M4 L=10
六角穴ボルト M4 L=10
18
53 SM-6040602-TT SCREW M4 L=6
六角穴ボルト M4 L=6
28
54 SM-6030602-TT SCREW M3 L=6
六角穴ボルト M3 L=6
12
55 SM-6031002-TT SCREW M3 L=10
六角穴ボルト M3 L=10
6
56 SM-6031202-TT SCREW M3 L=12
六角穴ボルト M3 L=12
4
57 WP-0320501-SD WASHER
平座金みがき丸 M3
4
58 WS-0310002-KP SPRING WASHER
ばね座金 M3
4
59 WP-0430801-SD WASHER M4
平座金みがき丸 M4
6
60 WS-0410002-KP SPRING WASHER
ばね座金 M4
6
61 401-58598 NYLON CLIP
ナイロンクリップ
1
62 401-58599 TIE ANCHOR
タイアンカー
12
63 SM-3061252-TN SCREW M6 L=12
丸ねじ M6 L=12
4
64 WT-0430002-KN WASHER M4
歯付き座金 M4
4
65 SL-4040881-SC SCREW M4 L=8
座金付きなべ小ねじ M4 L=8
4
66 401-61207 X RETAINER
X固定具
1
67 401-61208 Y RETAINER (R)
Y固定具(R)
1
68 401-61209 Y RETAINER (L)
Y固定具(L)
1
69 400-65489 BOLT
極低頭ボルト
2
70 PH-0400122-C0 PIN
平行ピン
8

- 21 -
11.AIR COMPONENTS
エアー関係
1
2
3
4
8
11
9
6
5
10
7
12 17
18 19