KE-1070_KE-1080-Rev03.pdf - 第62页
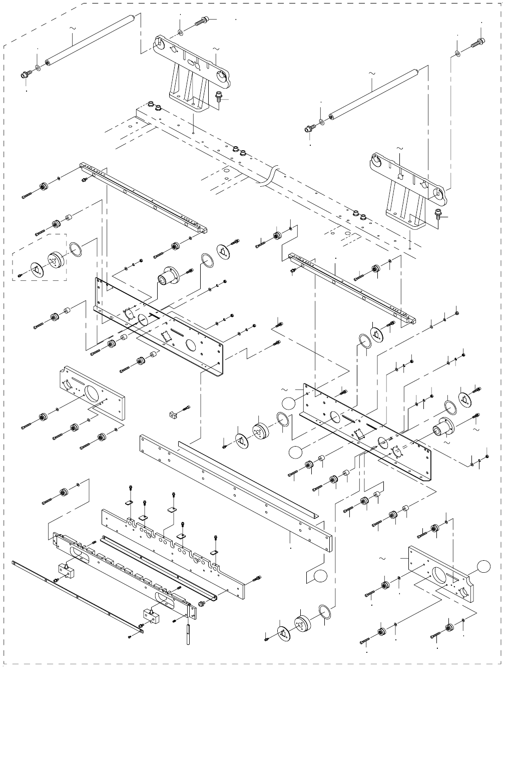
- 57 - 29. PWB CONVEYOR COMPONENTS (4) 基板搬送関係 (4) 19 18 17 5 53 54 4 33 32 15 33 32 15 12 33 32 16 22 21 20 25 24 23 22 21 20 22 21 20 22 21 20 25 24 23 25 24 23 25 24 23 29 30 34 34 31 35 57 34 30 29 57 35 31 34 6 8 26 …

- 56 -
NOTE( 注記 ) #01....FOR 1070L,1070CL,1080L 1070 L,1070 CL,1080 L 用
#02....FOR 1070L,1070CL,1080L,1080E 1070 L,1070 CL,1080 L,1080 E 用
#03....FOR 1080E 1080 E 用
*INSTALLATION PSITION AND DIRECTION VARY IF THE PWB TRANSFER
REFERENCE IS DIFFERENT.
基板搬送基準が異なると取付位置、方向が変わります。
REF.NO NOTE PART NO D E S C R I P T I O N
品 名
Qty
1
#01
400-01064 SUPPORT PLATE RL(L)
サポートプレート RL(L)
1
2 400-00841 SUPPORT PLATE S
サポートプレート S
1
3
#03
E4076-725-000 SUPPORT PLATE RL(E)
サポートプレート RL(E)
1
4 WP-0430800-SC WASHER M4
平座金小形丸 M 4
3
5 SM-4040855-SC SCREW
なべ小ねじ M 4 L =8
3
6 E4105-729-0A0 SHAFT SUPPORT B ASM.
シャフトサポート組
2
7 SM-8030302-TP SCREW M3X0.5 L=3
止めねじ M 3 X 0.5 L =3
2
8 400-00836 CONVEYOR RAIL RC
コンベアレール RC
1
9
#02
400-01057 CONVEYOR RAIL RC(L)
コンベアレール RC(L)
1
10 SL-6041092-TN SCREW
座金付き六角穴ボルト
4
11 400-00812 RAIL GUIDE SHAFT
レールガイドシャフト
2
12 SM-8040602-TP SCREW M4X0.7 L=6
止めねじ
2
13 E2275-725-000 SAFETY BAR
セイフティバー
1
14
#02
E4075-725-000 SAFETY BAR(E)
セイフティバー(E)
1
15 SL-4040841-SE SCREW M4 L=8
なべねじ セムス M 4 L =8
4
16 E2124-721-000 PWB GUIDE PLATE RA
PWB ガイドプレート RA
4
17
#02
E2124-721-000 PWB GUIDE PLATE RA
PWB ガイドプレート RA
10
18 E2125-721-000 PWB GUIDE PLATE RB
PWB ガイドプレート RB
2
19
#02
E2125-721-000 PWB GUIDE PLATE RB
PWB ガイドプレート RB
1
20 SL-6030892-TN SCREW M3 L=8
座金付き六角穴ボルト M 3 L =8
6
21
#02
SL-6030892-TN SCREW M3 L=8
座金付き六角穴ボルト M 3 L =8
11
22 E2111-715-0A0 CONVEYOR PULLEY ASM.
搬送プ−リ(組)
4
23 WP-0430800-SC WASHER M4
平座金小形丸 M 4
4
24 SM-4040855-SC SCREW
なべ小ねじ M 4 L =8
4
25 SM-1030601-SC SCREW M3 L=6
皿ねじ M 3 X 0.5 L =6
5
26 400-00835 RAIL GUIDE R
レールガイド R
1
27
#02
400-01056 RAIL GUIDE R(L)
レールガイド R(L)
1
28 E4265-729-000 CONVEYOR BELT GUIDE (L)
搬送ベルトガイド(L)
1
29
#02
E4365-729-000 CONVEYOR BELT GUIDE (E)
搬送ベルトガイド(E)
1
30 SL-6041692-TN SCREW M4 L=16
座金付き六角穴ボルト M 4 L =16
8
31
#02
SL-6041692-TN SCREW M4 L=16
座金付き六角穴ボルト M 4 L =16
10
32 400-13196 Y PUSHER GUARD
Y プッシャガード
1
33 E2111-715-0A0 CONVEYOR PULLEY ASM.
搬送プ−リ(組)
2
34 WP-0430800-SC WASHER M4
平座金小形丸 M 4
2
35 SM-4040855-SC SCREW
なべ小ねじ M 4 L =8
2
36 E2089-721-0A0 CONVEYOR PULLEY B ASM.
搬送プ−リ B 組
4
37 E2055-721-000 PULLEY SPACER
プーリスペーサ
4
38 SM-4042501-SC SCREW M4X0.7 L=25
なべ小ねじ M 4 X 0.7 L =25
4
39 WP-0430801-SC WASHER 4.3X9X0.8
平座金 4.3 X 9 X 0.8
4
40 WS-0410002-KN SPRING WASHER
ばね座金 M 4
4
41 NM-6040001-SC NUT M4
六角ナット M 4
4
42 400-00839 DRIVE PULLEY R ASM.
ドライブプーリ R 組
1
43 400-00840 DRIVE PULLEY R
ドライブプーリ R
1
44 E2160-721-000 PULLEY FLANGE
プーリフランジ
1
45 SL-6030892-TN SCREW M3 L=8
座金付き六角穴ボルト M 3 L =8
3
46 E3931-750-000 PULLEY WASHER
プーリ スラスト ワッシャ
2
47 E2160-721-000 PULLEY FLANGE
プーリフランジ
1
48 SL-6030892-TN SCREW M3 L=8
座金付き六角穴ボルト M 3 L =8
3
49 SB-8160001-00 BEARING
ころがり軸受
1
50
#01
SB-8160001-00 BEARING
ころがり軸受
2
51
#03
SB-8200001-00 BEARING
ころがり軸受
2
52 400-00838 RAIL PLATE RL
レールプレート RL
1
53
#01
400-01063 RAIL PLATE RL(L)
レールプレート RL(L)
1
54
#03
E4070-725-000 RAIL PLATE RL(E)
レールプレート RL(E)
1
55 SM-6040802-TN SCREW
六角穴ボルト M 4 X 0.7 L =8
4
56
#01
SM-6040802-TN SCREW
六角穴ボルト M 4 X 0.7 L =8
8
57
#03
SM-6051002-TN BOLT
六角穴ボルト
8
58 SL-6042092-TN SCREW M4 L=20
座金付き六角穴ボルト
3
59 HX-0029400-00 FIXED BASE
固定ベース
1
60 SM-6042002-TN BOLT
六角穴ボルト
1
61 E2111-715-0A0 CONVEYOR PULLEY ASM.
搬送プ−リ(組)
3
62 400-00828 CONVEYOR RAIL
コンベアレール
1
63
#03
400-01839 CONVEYOR RAIL(E)
コンベアレール(E)
1
64 SL-6031492-TN SCREW M3 L=14
座金付き六角穴ボルト M 3 L =14
4
65 SL-6041092-TN SCREW
座金付き六角穴ボルト
2

- 57 -
29.PWB CONVEYOR COMPONENTS (4)
基板搬送関係 (4)
19
18
17
5
53
54
4
33
32
15
33
32
15
12
33
32
16
22
21
20
25
24
23
22
21
20
22
21
20
22
21
20
25
24
23
25
24
23
25
24
23
29
30
34
34
31
35
57
34
30
29
57
35
31
34
6
8
26
28
60
51
52
44
45
58
59
58
59
42
43
46
47
42
43
58
59
58
59
44
45
A
A
B
B
39
41
36
38
48
50
39
41
1
3
9
11
13
14
55
56
55
56
12
13
14
13
14
12
55
56

- 58 -
NOTE( 注記 ) #01....FOR 1070L,1070CL,1080L 1070 L,1070 CL,1080 L 用
#02....FOR 1070L,1070CL,1080L,1080E 1070 L,1070 CL,1080 L,1080 E 用
#03....FOR 1080E 1080 E 用
*INSTALLATION PSITION AND DIRECTION VARY IF THE PWB TRANSFER
REFERENCE IS DIFFERENT.
基板搬送基準が異なると取付位置、方向が変わります。
REF.NO NOTE PART NO D E S C R I P T I O N
品 名
Qty
1 400-00843 RAIL PLATE RR
レールプレート RR
1
2
#01
400-01061 RAIL PLATE RR(L)
レールプレート RR(L)
1
3
#03
400-01850 RAIL PLATE RR(E)
レールプレート RR(E)
1
4 SL-6031492-TN SCREW M3 L=14
座金付き六角穴ボルト M 3 L =14
4
5 SL-6041092-TN SCREW
座金付き六角穴ボルト
2
6 SB-8160001-00 BEARING
ころがり軸受
1
7
#01
SB-8160001-00 BEARING
ころがり軸受
2
8
#03
SB-8200001-00 BEARING
ころがり軸受
2
9 400-00841 SUPPORT PLATE S
サポートプレート S
1
10
#01
400-01069 SUPPORT PLATE RR(L)
サポートプレート RR(L)
1
11
#03
400-01852 SUPPORT PLATE RR(E)
サポートプレート RR(E)
1
12 E2111-715-0A0 CONVEYOR PULLEY ASM.
搬送プ−リ(組)
3
13 WP-0430800-SC WASHER M4
平座金小形丸 M 4
3
14
#02
WP-0430800-SC WASHER M4
平座金小形丸 M 4
6
15 SM-4040855-SC SCREW
なべ小ねじ M 4 L =8
2
16 SM-4042501-SC SCREW M4X0.7 L=25
なべ小ねじ M 4 X 0.7 L =25
1
17 WP-0430801-SC WASHER 4.3X9X0.8
平座金 4.3 X 9 X 0.8
1
18 WS-0410002-KN SPRING WASHER
ばね座金 M 4
1
19 NM-6040001-SC NUT M4
六角ナット M 4
1
20 E2089-721-0A0 CONVEYOR PULLEY B ASM.
搬送プ−リ B 組
4
21 E2055-721-000 PULLEY SPACER
プーリスペーサ
4
22 SM-4042501-SC SCREW M4X0.7 L=25
なべ小ねじ M 4 X 0.7 L =25
4
23 WP-0430801-SC WASHER 4.3X9X0.8
平座金 4.3 X 9 X 0.8
4
24 WS-0410002-KN SPRING WASHER
ばね座金 M 4
4
25 NM-6040001-SC NUT M4
六角ナット M 4
4
26 SM-6041002-TN BOLT
六角穴ボルト
4
27
#01
SM-6041002-TN BOLT
六角穴ボルト
8
28
#03
SM-6051002-TN BOLT
六角穴ボルト
8
29 E2160-721-000 PULLEY FLANGE
プーリフランジ
1
30 SL-6030892-TN SCREW M3 L=8
座金付き六角穴ボルト M 3 L =8
3
31 SL-6030892-TN SCREW M3 L=8
座金付き六角穴ボルト M 3 L =8
6
32 E2111-715-0A0 CONVEYOR PULLEY ASM.
搬送プ−リ(組)
3
33 WP-0430800-SC WASHER M4
平座金小形丸 M 4
3
34 E3931-750-000 PULLEY WASHER
プーリ スラスト ワッシャ
4
35 E2160-721-000 PULLEY FLANGE
プーリフランジ
2
36 400-00983 RAIL STAND RR
レールスタンド RR
1
37
#01
400-01066 RAIL STAND RR(L)
レールスタンド RR(L)
1
38
#03
E4024-725-000 RAIL STAND RR(E)
レールスタンド RR(E)
1
39 E2009-725-000 GUIDE SHAFT
ガイドシャフト
2
40
#01
E2209-725-000 GUIDE SHAFT
ガイドシャフト
4
41
#03
E4009-725-000 GUID SHAFT(E)
ガイドシャフト(E)
4
42 SL-6051292-TN BOLT
座金付き六角穴ボルト
2
43
#02
SL-6051292-TN BOLT
座金付き六角穴ボルト
4
44 SL-6052042-TN SCREW
座金付き六角穴ボルト
2
45
#02
SL-6052042-TN SCREW
座金付き六角穴ボルト
4
46 SL-6052092-TN SCREW
座金付き六角穴ボルト
2
47 SL-6052092-TN SCREW
座金付き六角穴ボルト
2
48 400-00982 RAIL STAND RL
レールスタンド RL
1
49
#01
400-01065 RAIL STAND RL(L)
レールスタンド RL(L)
1
50
#03
E4023-725-000 RAIL STAND RL
レールスタンド RL(E)
1
51 E4274-729-000 SUPPORT PLATE C(L)
サポートプレート C(L)
1
52
#02
E4074-725-000 SUPPORT PLATE C(E)
サポートプレート C(E)
1
53 400-00828 CONVEYOR RAIL
コンベアレール
1
54
#03
400-01839 CONVEYOR RAIL(E)
コンベアレール(E)
1
55 SM-4040855-SC SCREW
なべ小ねじ M 4 L =8
3
56
#02
SM-4040855-SC SCREW
なべ小ねじ M 4 L =8
6
57 400-00840 DRIVE PULLEY R
ドライブプーリ R
1
58 WP-0501046-SC WASHER 5 X 14 X 1
平座金 0.5 X 14 X 1
4
59
#02
WP-0501046-SC WASHER 5 X 14 X 1
平座金 0.5 X 14 X 1
8
60 SL-6042092-TN SCREW M4 L=20
座金付き六角穴ボルト
4