OM-1683-001_w.pdf - 第80页
63 OM-1683 1 103-001 16.Specications Item Description 6. T ransfer Mode There are two modes; One is the dual transfer mode that uses two transfer lanes and the other is the single transfer mode that uses one transfer l…

62
OM-1683
1103-001
16.Specications
Item Description
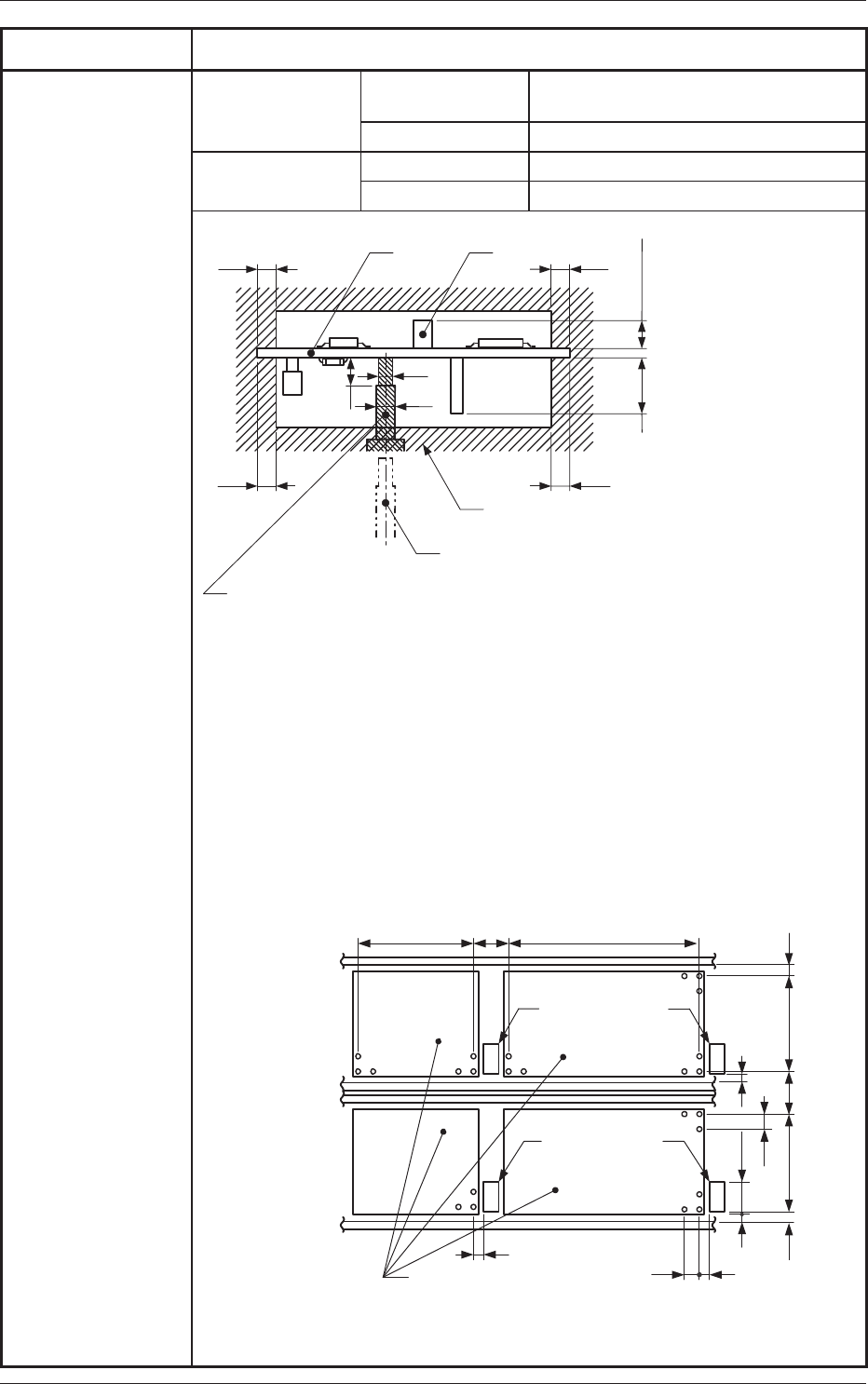
5. Conditions of PCB
before Placement
(Regulation
of Component
Height)
Height of
Previously Placed
Component
Upper surface 12.
7 mm / High-Speed Head
25.4 mm / Multi-Functional Head
Lower surface 30 mm
Dead Space
Upper surface 3.0 mm
Lower surface 3.0 mm
3.0
PCB
PCB Support Pin
(At this position when PCB is transferred.)
Previously placed Components
Placement Unallowed Range
Component
3.0
PCB Support Pin (Several Places)
φ5
φ2
4.0
3.0 3.0
When the High-Speed Head is used:
Max. 12.7
When the Multi-Functional Head is used:
Max. 25.4
Max. 30
(Front Side of Machine)
Unit : mm
Notes
: (a) The gure shows that the PCB is being supported.
(b) The PCB support pin is set onto the position where it does not touch any already
placed component.
(c) The dimensions are those for design reference.
Leave some room for the actual setting.
(d) The position of the PCB support pin can move by pitch of 10 mm.
(e) Even in the case that the same type of PCB is transferred in both the lane
A and
lane B, the PCB support pin setup positions are not the same.
(f) For the positional relationship between the conveyor, PCB stopper and backup
base, refer to the following gure.
230 10
55.5
50
250 300
9
230
10
30.5
10
5
Chute A
Lane A
Lane B
PCB Stopper
PCB Stopper
Backup Base
510
9
(Dual Transfer Mode : Flow from Left to Right)
Chute A'
Chute B
Chute B'
Unit : mm

63
OM-1683
1103-001
16.Specications
Item Description
6. Transfer Mode There are two modes; One is the dual transfer mode that uses two transfer lanes and the
other is the single transfer mode that uses one transfer lane.
However, in the case of the dual transfer mode, the PCB width should be up to 250
mm.
•
Dual Transfer Mode (Dual Transfer for Two PCBs at the same time)
In the case of a PCB width between 84 mm and 250 mm, the dual transfer
operation is available using both lanes.
Max. 250 mm
Max. 250 mm
Chute
A (Fixed)
Chute
A' (Movable)
Chute
B (Movable)
Chute
B' (Fixed)
Buffer Section Buffer Section
Front Side of Machine
Positioning Section
• Single Transfer Mode (Dual Transfer for Single PCB)
In the case of the PCB width between 84 mm and 415 mm, the single transfer is
available by means of moving the two inside rails (Chute A', Chute B) together to
the rear side.
Max. 415 mm
Chute A (Fixed)
Chute A' (Movable)
Chute B (Movable)
Chute B' (Fixed)
Buffer Section Buffer Section
Front Side of Machine
Positioning Section

64
OM-1683
Item Description
7. Operation Scope The machine starts component placement on either one (positioned one) of the PCBs
on the two transfer lanes.
After the machine has completed component placement on the PCB on one lane, it
starts placement on the PCB on the other lane.
Lane A : Placement
Lane B : Transfer
Lane A : Transfer
Lane B : Placement
Process
Position
Process
Position
The two PCBs are transferred one by one alternatively and the component placement
is performed on a single PCB in either of the Lane A and Lane B, which enables
successive component placement without considering the PCB transfer time.
(Nominal PCB transfer time is zero).
8. PCB Replacement
Time
Dual Transfer Mode :
0 second (Note)
Single Transfer Mode : Within 2 seconds
(260 mm or less in PCB length)
Notes :
(a) When the PCBs are transferred one by one alternatively on the two lanes,
the nominal PCB transfer time becomes zero.
However, the condition is that "Height of the both the previously-placed
component and placed component should be 12.
7 mm or less".
(b) When the production on one lane only is continued, the PCB replacement
time is the same as for the single transfer mode.
9. T
ransfer Height 905 mm (Transfer Reference Height)
Note :
For the SMEMA Height, a separate option is required.
10. Automatic Setup
function
• Automatic
Width Setup function
Standard Design with Two Modes; Dual Transfer Mode and Single Transfer Mode
• Backup Up/Down Function
Standard Design with Divided Type for Dual Transfer
• Support Pin Change
Standard Design with the Support Pin Automatic Setup Function
11. Pattern Program The two PCBs are transferred one by one alternatively for each PCB transfer lane.
Therefore, the pattern programs shall be prepared individually for each PCB transfer
lane.
16.Specications
1103-001