KD-2077_Maintenance_Guide_Rev1.1_C.pdf - 第38页
维修调整要领书 台面降到最低的状态 轴原点传感器的更换 轴原点传感器的拆卸 请从点胶头主基板中拆下 轴原点传感器的插头。( ) 请卸下 轴原点传感器的固定螺钉,然后拆下 传感器。 …

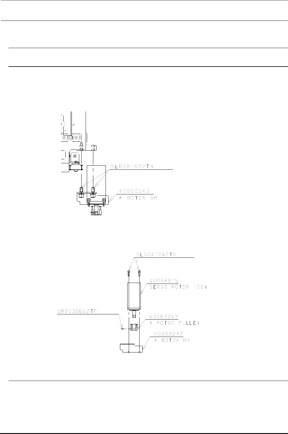
维修调整要领书
电动机的更换
电动机的拆卸
请拆下保护罩 。(参考 )
请拆下保护罩 。(参照 )
请拆下电动机中转插头。
请拧松电动机托架的螺钉,然后拆下电动机和电动机托架。
请拆下电动机的固定螺钉,将电动机从电动机托架中取出来。
请拧松皮带轮的止动螺钉然后将皮带轮从电动机中拆卸下来。
电动机的安装
安装按照与拆卸相反的顺序进行。
请参考 对皮带轮的张力进行调整。
请把 参数(轴原点偏差) 轴都再次进行取得。
止动螺钉
夹紧转矩:
止动螺钉
夹紧转矩:
止动螺钉
夹紧转矩:

维修调整要领书
台面降到最低的状态
轴原点传感器的更换
轴原点传感器的拆卸
请从点胶头主基板中拆下 轴原点传感器的插头。()
请卸下 轴原点传感器的固定螺钉,然后拆下 传感器。
轴原点传感器的安装
请把新的 轴原点传感器固定到原点传感器托架上。
安装后,请将 传感器和配件的位置关系调整如下图所示。
(上下方向:用配件的长空进行调整,左右方向:用传感器托架的长空进行调整)
请将 轴原点传感器的插头安装到点胶头主基板上。()
把 台面抬到最高时,请注意避免配件上端接触扎线以及空气软管。
请把 参数( 轴原点偏差) 轴都再次进行取得。
把 台面抬到最高时,请注意避免配件上端接触扎线以及空气软管。
夹紧转矩:
危
险

维修调整要领书
轴原点传感器的更换
轴原点传感器的拆卸
请从点胶头主基板中拆下轴原点传感器的插头。()
拆下传感器托架的固定螺钉。(有头螺钉×)
请拆下传感器固定螺钉(圆头螺钉 ×),然后将传感器从托架中分离出来。
请将传感器从点胶头主体的孔中拔出来。
夹紧转矩:
夹紧转矩: