VM101.pdf - 第117页
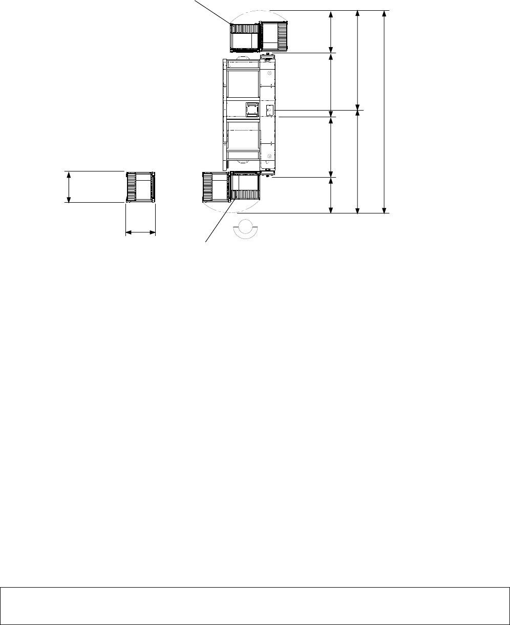
VM-101 2018.0520 - 1 1 1 - 【 前侧 】 托盘供料器、 【 后侧 】 安装卷盘支架时,所必须的 最小限空间。 由于在维修时会卸下托盘供料器, 请在设置机器时一定要确保以下的空 间。 ( 单位 : mm) Remarks 托盘供料器设置范围的地面倾斜,需 要托盘供料器的左右方向在 6 mm 以内,前后方向在 11 mm 以内。 地面倾斜度超过此范围时,则不能进 行托盘供料器的连接。 前 侧 托盘供…

VM-101 2018.0520
- 110 -
【前侧】卷盘支架
【后侧】安装卷盘支架时,所必须的最小限空间。
在维护作业时有时会卸下托盘供料器,所以设置机器时请必须确保以下的空间。
(
单位
: mm)
Remarks
卷盘支架设置范围的地面倾斜,需要卷盘支架的左右方向在
10 mm
以内。
地面倾斜度超过此范围时,则不能进行卷盘支架的连接。
前 侧
卷盘支架
卷盘支架
3 194
1 571.5
668
1 622.5
568
954.5 1 003.5
471
44
8

VM-101 2018.0520
- 111 -
【前侧】托盘供料器、
【后侧】安装卷盘支架时,所必须的最小限空间。
由于在维修时会卸下托盘供料器,
请在设置机器时一定要确保以下的空间。
(
单位
: mm)
Remarks
托盘供料器设置范围的地面倾斜,需要托盘供料器的左右方向在
6 mm
以内,前后方向在
11 mm
以内。
地面倾斜度超过此范围时,则不能进行托盘供料器的连接。
前 侧
托盘供料器
卷盘支架
3 494
1 571.5
668
1 922.5
868
954.5 1 003.5
483
8
1
5

VM-101 2018.0520
- 112 -
14.
有关许可证
为了启动以下软件
(
选购件
)
,需要各自的使用许可证。
PanaCIM-EE
对应
元件校对
自动机种切换
供料器准备导向
上位通信
APC
系统对应
※
1
iLNB
其他厂家检查机界面软件
※
2
支援站箱
(
元件校对类型
)
元件供给导向
每台启动的设备都需要一个使用许可证。
对以上的软件选择,生产线中的所有设备,必须是相同的。
如果一条线中软件的使用许可证或有或无,就不能保证生产线整体的运转。
※1 以下每一台设备需要本选购件。
1) 搭载 2D 检查头的生产线的第一台设备 NPM-D3
2) 接收 APC 补正数据的 VM101
※
2
每台接收
APC
补正数据的
VM101
都需要本选购件。
(APC
系统许可证也需要相同数量。
)
【重要】
为了使用以上应用软件,需要在下页的「软件的使用条件」签字同意。请必须浏览确认。
正确例子 错误例子
自动机种切换 × 4
自动机种切换 × 2
有许可证
无许可证
VM101
VM101
有许可证