VM101.pdf - 第69页
VM-101 2018.0520 - 63 - 7. 印刷基板设计基准 7.1 印刷基板规格概要 项 目 规 格 基板尺寸 50 × 50 mm ~ 330 × 250 mm 贴装可能范围 50 × 44 mm ~ 330 × 244 mm 基板厚度 0.3 mm ~ 8.0 mm 基板重量 1.5 k g以 下 ※ 1 基板弯曲容许 基板断面 贴装前基板状态 ※ 1 基板重量 ( 包括载体重量 ) 超过 1.5 k g 的情况时,请另…

VM-101 2018.0520
- 62 -
6. 其他标准规格
6.1 程序功能
数据编制都是在数据编制系统 NPM-DGS 进行。在 NPM-DGS 作成的生产数据,通过 LNB (FA 电脑)或者 AM-LNB
下载于设备。
但是,部分数据修正也可在机器主体上进行。
在设备主体修正的数据以及校正内容被保存,可以再利用。
※ NPM-DGS 用的硬件,请客户准备。(NPM-DGS 是其他产品。)
NPM-DGS 和 NPM-DGS 选购件的牌照是设定为 1 台设备 1 张牌照。因此复数台机器需要购买同样数量的牌照。
有关 NPM-DGS 的详细情况,请参照别册的「NPM-DGS 规格说明书」。
6.2 信号塔
信号灯的颜色和亮灯标准
信号灯
颜色
分 类 亮灯标准
红色 紧急停止错误
・ 马达等的轴异常
・ 空气压力下降
・ 基板支撑部异常
・ 贴装头故障
・ 编带故障 等
黄色 中途停止错误
・ 吸着错误
・ 贴装错误
・ 基板传送错误
・ 元件用完
・ 吸嘴更换错误 等
绿色 运转中
自动运转等动力为 ON 时
(但是,红色和黄色闪烁时熄灯)
※ 亮灯规格,可以变更设定。
数据编制系统 NPM-DGS
设备设定 PCB 数据
元件数据
最佳化
生产数据
网板 Gerber 数据
(锡膏检查时)
距离地面
2 000 mm
(
标准
)
红
黄
绿

VM-101 2018.0520
- 63 -
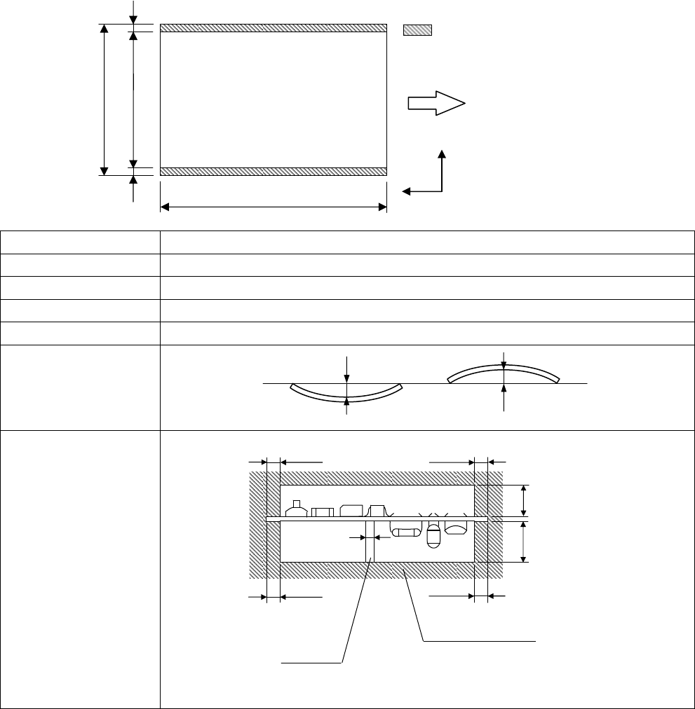
7. 印刷基板设计基准
7.1 印刷基板规格概要
项 目 规 格
基板尺寸
50 × 50 mm ~ 330 × 250 mm
贴装可能范围
50 × 44 mm ~ 330 × 244 mm
基板厚度
0.3 mm ~ 8.0 mm
基板重量 1.5 kg以下
※1
基板弯曲容许
基板断面
贴装前基板状态
※1 基板重量(包括载体重量)超过 1.5 kg 的情况时,请另行联络。
※2 使用支撑销自动更换功能的情况时,支撑销形状、销的配置条件等有异。
详细请参阅「9. 选购件:支撑销的自动更换」。
※ 有关陶瓷基板的对应请另行联络。
Max. 0.5 mm
Max. 0.5 mm
禁止有元件的范围
支撑销
※
2
(
设置在与反面元件距离隔开
2 mm
以上的位置。
)
28 mm
3 mm
3 mm
3 mm
φ
3
3 mm
30 mm
Y
X
固定侧
禁止有元件的范围
3 mm
50 mm ~ 330 mm
3 mm
50 mm ~ 250 mm
44 mm ~ 244 mm
流向

VM-101 2018.0520
- 64 -
项 目 规 格
基板缺口条件 基板缺口尺寸必需满足以下 2 个条件。
条件 A
基板缺口尺寸必需满足以下条件。
L L1
50 mm ≦ L ≦ 330 mm L/4 或者 100 mm 的较小的一个
W W1
50 mm ≦ W ≦ 250 mm W/3 或者 30 mm 的较小的一个
※ 以上是在基板厚度为 1.6 mm 以上时的情况。
基板厚度 1.6 mm 未满时,请另行商洽。
条件 B
下图 领域内必须保证没有缺口(包括缝隙)。
※ 上图领域内如果有缺口(包括缝隙)时,请另行商洽。
基板端面的元件伸出条
件
请另行商洽。
L1
L
W1
W1
W
只限任意一处
流向
A
A
10 mm
30 mm
10 mm
基准轨道侧
流向
B