NPM_D3Wiring Diagram.pdf - 第133页
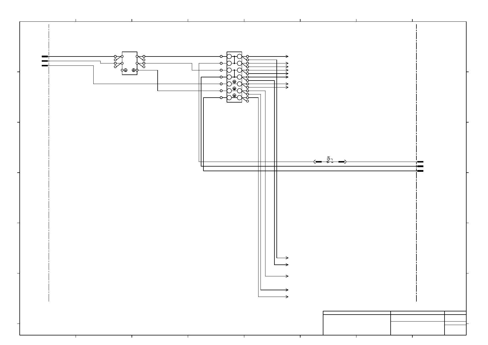
AC200V INPUT BK UL#16 105/600-1.25mm2 BK UL#16 105/600-1.25mm2 P004-2B L11(T101) P004-2B L21(T101) P004-2C E(T101) GN/YE UL#16 105/600-1.25mm2 L11aX1 AI 1,5-10 BK PHOENIX CONTACT L21aX1 L11cX1 L11bX1 AI 1,5-10 BK PHOENIX…

AC200V
INPUT
BK UL#16 105/600-1.25mm2
BK
UL#16 105/600-1.25mm2
P004-2B L11(T101)
P004-2B L21(T101)
P004-2C E(T101)
GN/YE
UL#16 105/600-1.25mm2
L11aX1
AI 1,5-10 BK
PHOENIX CONTACT
L21aX1
L11cX1
L11bX1
AI 1,5-10 BK
PHOENIX CONTACT
L11eX1
L11fX1
L21bX1
L21cX1
L21eX1
L21fX1
FK1.25-4
JST
3aV01
FK2-4
JST
4aV01 2aV01
1aV01
FK2-4
JST
GN/YE
UL#16 105/600-1.25mm2
BK
UL#16 105/600-1.25mm2
BK
UL#16 105/600-1.25mm2
L21
L11
-X121
TB-X121(F000058)
1 1
2 2
3 3
4 4
5 5
6 6
7 7
PHOENIX CONTACT
P004-2D E(T102-1)
P004-2D E(T102-2)
AC200V
OUTPUT
L11
L21
E
BK
UL#16 105/600-1.25mm2
BK
UL#16 105/600-1.25mm2
GN/YE
UL#16 105/600-1.25mm2
P003-2B L11(K201)
P003-2B L21(K201)
P003-2C L11(K401)
P003-2C L21(K401)
P003-2C E(K401)
P003-2E L11(K402)
P003-2E L21(K402)
P003-2E E(K402)
-F121
NRF110-0.5A
(0.5A)
IDEC
L111
L21
E
2
1
3
2-179553-3
FAN
AMP
s
L11dX1
L21dX1
1F121
STO-61T-250N
JST
ST250-32-16-18
NISSEIECO
ST250-32-16-18
NISSEIECO
2F121
STO-61T-250N
JST
1-353047-3
TRAY.AC
AMP
3
1
2
3
-V01
NAC-06-681
3
4
1
2
COSEL
BK UL#16 105/600-1.25mm2
4
4
NICHIFU
TMEE2-4
NICHIFU
TMEE2-4
NICHIFU
TMEE1.25-4
5 5
5
Panasonic Smart Factory Solutions Co.,Ltd. パナソニック スマートファクトリーソリューションズ株式会社
Name
Drawing No.
Loc. No.
F4K1020-05A
1
2 3 4 5 6 7 8
A
B
C
D
E
F
1 2 3 4 5 6 7 8
A
B
C
D
E
F
Page. No.
TRAY BOX
(AC200V input)
N610067177+002AF
P002

BK UL#16 105/600-1.25mm2
-K201
SD-Q12 DC24V 1a1b
1 2
3 4
5 6
13 14
21 22
A1 A2
Mitsubishi Electric
CNP2-L
54927-0570
MOLEX
CNP1-L
54928-0670
L1
L2
L3
N
P1
P2
MOLEX
L1CNP1L
AI 1,5-10 BK
PHOENIX CONTACT
L2CNP1L
L11CNP2L
L21CNP2L
BK UL#16 105/600-1.25mm2
BK
UL#16 105/600-1.25mm2
BK UL#16 105/600-1.25mm2
TP-axis
CNP2-P
54927-0570
MOLEX
CNP1-P
54928-0670
L1
L2
L3
N
P1
P2
MOLEX
L1CNP1P
AI 1,5-10 BK
PHOENIX CONTACT
L2CNP1P
L11CNP2P
L21CNP2P
BK UL#16 105/600-1.25mm2
BK
UL#16 105/600-1.25mm2
BK
UL#16 105/600-1.25mm2
BK UL#16 105/600-1.25mm2
UL#16 105/600-1.25mm2
P004-4D PON
TL-axis
GN/YE UL#16 105/600-1.25mm2
GN/YE UL#16 105/600-1.25mm2
FK1.25-4
JST
FK1.25-4
JST
BK
UL#16 105/600-1.25mm2
21aK201
FK1.25-M3
JST
22aK201
FK1.25-M3
JST
1aK201
FK2-M3
JST
3aK201 4aK201
2aK201
FK2-M3
JST
2bK201
4bK201
MOTOR DRIVER
P2
P1
N
L3
L2
L1
CNP1
D
C
P
L21
L11
CNP2
-K402
MR-J3-20A
MITSUBISHI ELECTRIC
MOTOR DRIVER
P2
P1
N
L3
L2
L1
CNP1
D
C
P
L21
L11
CNP2
-K401
MR-J3-20A
MITSUBISHI ELECTRIC
P004-4D G24
P004-4D RESET_COM
P004-4D RESET
A2aK201 A1aK201
1
1
BK
P002-5B L21(K201)
P002-5A L11(K201)
P002-5A L11(K401)
P002-5B L21(K401)
P002-5B E(K401)
P002-5A L11(K402)
P002-5B L21(K402)
P002-5B E(K402)
BK
UL#16 105/600-1.25mm2
BK
UL#16 105/600-1.25mm2
P1CNP1L
P2CNP1L
PCNP2L
DCNP2L
BK
UL#16 105/600-1.25mm2
BK
UL#16 105/600-1.25mm2
P1CNP1P
P2CNP1P
PCNP2P
DCNP2P
1
1
1
1
SD-Q12 DC24V 2
2
2
NICHIFU
TMEE2-3.5
3
NICHIFU
TMEE2-3.5
NICHIFU
TMEE1.25-3.5
3
3
3
NICHIFU
TMEE1.25-3.5
NICHIFU
TMEE1.25-4
3
NICHIFU
TMEE1.25-4
3
Panasonic Smart Factory Solutions Co.,Ltd. パナソニック スマートファクトリーソリューションズ株式会社
Name
Drawing No.
Loc. No.
F4K1020-05A
1
2 3 4 5 6 7 8
A
B
C
D
E
F
1 2 3 4 5 6 7 8
A
B
C
D
E
F
Page. No.
TRAY BOX
(Driver wiring)
N610067177+003AE
P003