YSP_mpl_je.pdf - 第20页
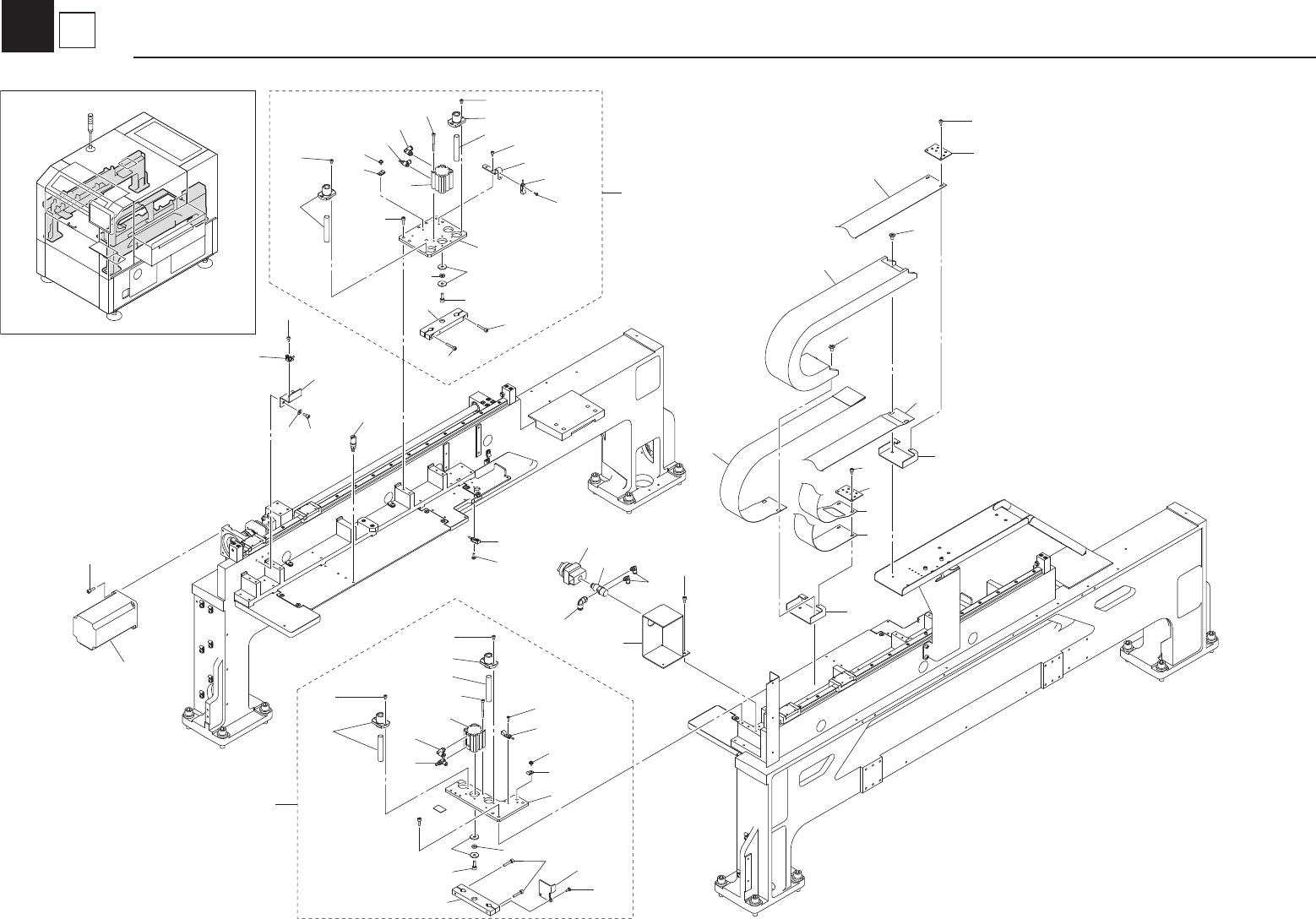
KHT -1004 Rev . :It had a change without the compatibility . Please be careful at the time of the parts ordering. Rev.: 過去に互換性の無い変更が入った部品。部品発注時は注意してください。 No. Part No. Part Name Q’ty Remarks Rev. Rank Level No. Part No. P…

KHT-1004
3
2
SY-Motor / Sensor / Clamper
Moving-axis
22
31
34
31
22
27
40
26
19
39
46
8
36
49
9
47
22
24
25
18
34
31
22
21
42
43
33
44
27
40
19
26
39
20
16
31
11
12
14
13
35
6
3
3
5
4
4
2
10
30
10
30
48
48
5
7
1
45
38
15
39
18
38
17
32
29
28
41
51
25
24
43
44
23
50
23

KHT-1004
Rev. :It had a change without the compatibility. Please be careful at the time of the parts ordering.
Rev.: 過去に互換性の無い変更が入った部品。部品発注時は注意してください。
No. Part No. Part Name Q’ty Remarks Rev. Rank Level No. Part No. Part Name Q’ty Remarks Rev. Rank Level
1
KHT-M2616-00 STAY SENSOR,SY
1 /
Í
38
91312-05016 BOLT HEX.SOCKET HEAD
4
M5X16
2
KHT-M2617-00 CABLE DUCT,SY
1 /
Í
39
91312-05025
BOLT HEX.SOCKET HEAD
8
M5X25
3
KHT-M2623-00 BRACKET,TAPE
2 /
Í
40
91312-06016 BOLT HEX.SOCKET HEAD
4
M6X16
4
KHT-M2624-00 TAPE 1,SY DUCT
1 /
Í
41
98902-03008 SCREW BINDING HEAD
2
5
KHT-M2625-00 TAPE 2,SY DUCT
1 /
Í
42
98902-03012 SCREW BINDING HEAD
1
6
KHT-M2626-00 TAPE 3,SY DUCT
1 /
Í
43
90990-11J003 SCREW PAN HEAD
4
7
KHT-M2627-00 BRKT.,TAC VALVE
1
/
Í
44
$NK-2N NYLON CLIP
4
8
KHT-M6521-U0 SENSOR SY ORG ASSY
1
B
Í
45
92902-05200 WASHER PLAIN
2
9
KHT-M6525-C0 SENS. SY MASK ASSY
1
B
Í
46
98502-03006 SCREW PAN HEAD
2
10
KGY-M2475-00 PLATE,NUT CY
2 /
Í
47
90990-01J043 BOLT,EXTRA LOW HEAD
1
11
KU4-M8594-00 TAC SELECT
1 /
48
98702-05008 SCREW FLAT HEAD
4
12
KU4-M8596-00 TAC VALVE
1 /
49
KHT-M2690-00 PIN,MASK STOPPER
3 /
13
$TL4-M5 JOINT
2 /
50
KHT-M2650-10 MASK CLAMPER,FR
1
FR Type(-00 FL)
/
Í
14
$TL6-M5M JOINT
1 /
51
KHT-M2650-50 MASK CLAMPER,RL
1
RL Type(-60 RR)
/
Í
15
90K63-431546 AC SERVO MOTER
1 /
Í
52
16
KHT-M2651-00 STAY,CLAMPER F
2 /
Í
53
17
KHT-M2651-50 STAY CLAMPER R
2 /
Í
54
18
KHT-M2658-00 CYL,PRESS
4
/
Í
55
19
KHT-M2621-00 PLATE,CYL.
4
/
Í
56
20
KHT-M2659-00 DOG,MASK CLAMP
1
FL
/
Í
57
21
KHT-M6524-H0
SENS. M. CLAMP ASSY
1
FL
B
Í
58
22
KGY-M2621-00 SLIDE BUSH
8 /
Í
59
23
KGJ-M2621-00 SHAFT
8 /
Í
60
24
$SC4-M5A SPEED CONTROLLER
4 /
Í
61
25
$TL4-M5 JOINT
4 /
62
26
90990-28J078 WASHER,PLAIN
4 63
27
90990-28J003 WASHER,PLAIN
8 64
28
KHT-M6522-B0 SENS. M-ADP. L ASSY
1
L
B
Í
65
KHT-M6522-C0 SENS. M-ADP. R ASSY
1
R
B
Í
66
29
KHT-M2619-00 BRKT,SENSOR
1 /
Í
67
30
91312-03006 BOLT HEX.SOCKET HEAD
4
M3X6
68
31
91312-04006 BOLT HEX.SOCKET HEAD
4
M4X6
69
32
91312-04008 BOLT HEX.SOCKET HEAD
2
M4X8
70
33
98902-04010 SCREW BINDING HEAD
2
M4X10
71
34
91312-04045 BOLT HEX.SOCKET HEAD
8
M4X45
72
35
91312-05010 BOLT HEX.SOCKET HEAD
2
M5X10
73
36
91312-05012 BOLT HEX.SOCKET HEAD
2
M5X12
74
37
91312-05014 BOLT HEX.SOCKET HEAD
4
M5X14
75
3
2
SY-Motor / Sensor / Clamper
Moving-axis

KHT-1004
17
10
21
23
8
17
24
24
24
23
9
17
17
3
16
21
17
21
17
21
5
4
6
5
18
18
2
2
1
1
19
19
20
15
6
17
21
17
21
17
21
17
21
14
11
12
13
22
22
22
10
10
8
25
26
17
10
21
24
9
7
3
3
Y-Motor / Sensor / Cover
Moving-axis