YSP_mpl_je.pdf - 第46页
KHT -1204 Rev . :It had a change without the compatibility . Please be careful at the time of the parts ordering. Rev.: 過去に互換性の無い変更が入った部品。部品発注時は注意してください。 No. Part No. Part Name Q’ty Remarks Rev. Rank Level No. Part No. P…

KHT-1204
19
22
17
1
3
2
10
12
7
5
6
7
11
11
8
9
4
16
21
15
10
18
14
13
17
19
20
23
24
7
1
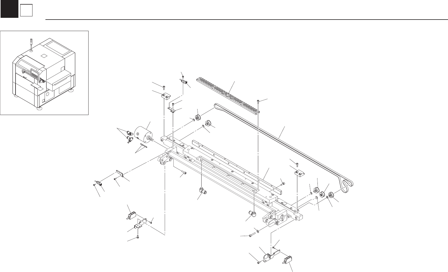
Main Base - Transport
Conveyor Unit

KHT-1204
Rev. :It had a change without the compatibility. Please be careful at the time of the parts ordering.
Rev.: 過去に互換性の無い変更が入った部品。部品発注時は注意してください。
No. Part No. Part Name Q’ty Remarks Rev. Rank Level No. Part No. Part Name Q’ty Remarks Rev. Rank Level
1
KHT-M9111-00 PULLEY 1,MOTOR
1 /
39
2
KHT-M9112-01 SPLINE
1 /
Í
40
3
KHT-M9113-00 COUPLING
1 /
41
4
KHT-M9114-00 PLATE ,MOTOR
1 /
42
5
KHT-M9116-00 BELT(501-3GT-9)
1 /
43
6
KHT-M9181-00 COLLAR
1 /
44
7
KH2-M9105-11 PULLEY,MOTOR:P30-3GT
2
/
45
8
KGK-M9170-00 DC MOTOR ASSY.
1
B
46
9
91312-04045 BOLT HEX.SOCKET HEAD
4
M4X45
/
47
10
91312-06016 BOLT HEX.SOCKET HEAD
4
M6X16
/
48
11
92A08-04306 SET SCREW
4
M4X6
/
49
12
92902-06200 WASHER PLAIN(N)
2 /
Í
50
13
KG2-M9108-11 COLLAR CONVEYOR
1 /
Í
51
14
KGT-M1935-00 PULLEY 1 SPLINE
1 /
Í
52
15
KHT-M9119-00 PLATE,TENSION
1 /
53
16
KHT-M3165-00 HEXAGON BOLT
1 /
54
17
KH2-M9121-00 BEARING
2 /
Í
55
18
91312-03010 BOLT HEX.SOCKET HEAD
4
M3X10
56
19
91312-04006 BOLT HEX.SOCKET HEAD
4
M4X6
57
20
91312-05008 BOLT HEX.SOCKET HEAD
1
M5X8
58
21
95302-05600
NUT HEXAGON
1 59
22
92902-05200 WASHER PLAIN
1 60
23 90990-28J018 WASHER,PLAIN 1 61
24 91312-04012 BOLT HEX.SOCKET HEAD 1 62
25 63
26 64
27 65
28 66
29 67
30 68
31 69
32 70
33 71
34 72
35 73
36 74
37 75
38 76
7
1
Main Base - Transport
Conveyor Unit

KHT-1204
7
2
Main F - Belt / Sensor / CYL / Edge / V-Plate
Conveyor Unit
25
12
16
6
20
18
17
23
17
4
21
10
7
3
20
2
1
22
28
7
5
18
19
30
29
11
21
8
25
9
15
10
25
25
29
27
26
26
27
24
13
14
24