cp842_eng_spec.pdf.pdf - 第20页
Prelim inar y CP-842E/ 842 ME S p ecif icati ons - 18 - 7.2.2 CP-842M E

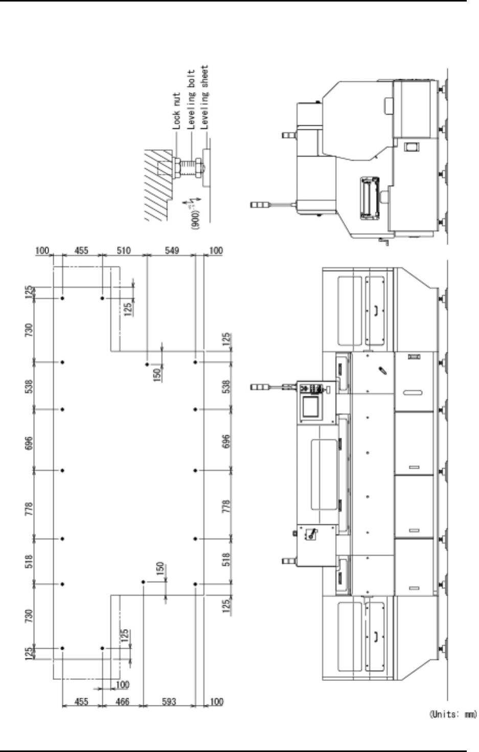
Preliminary CP-842E/842ME Specifications- 17 -
7.2 Leveling Positions
7.2.1 CP-842E

Preliminary CP-842E/842ME Specifications- 18 -
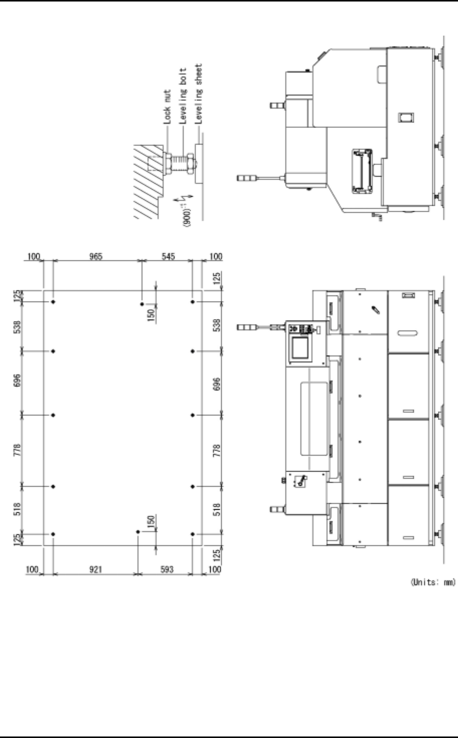
7.2.2 CP-842ME

Preliminary CP-842E/842ME Specifications- 19 -
7.3 Power and Air Supply