OM-1529-002_w.pdf - 第19页
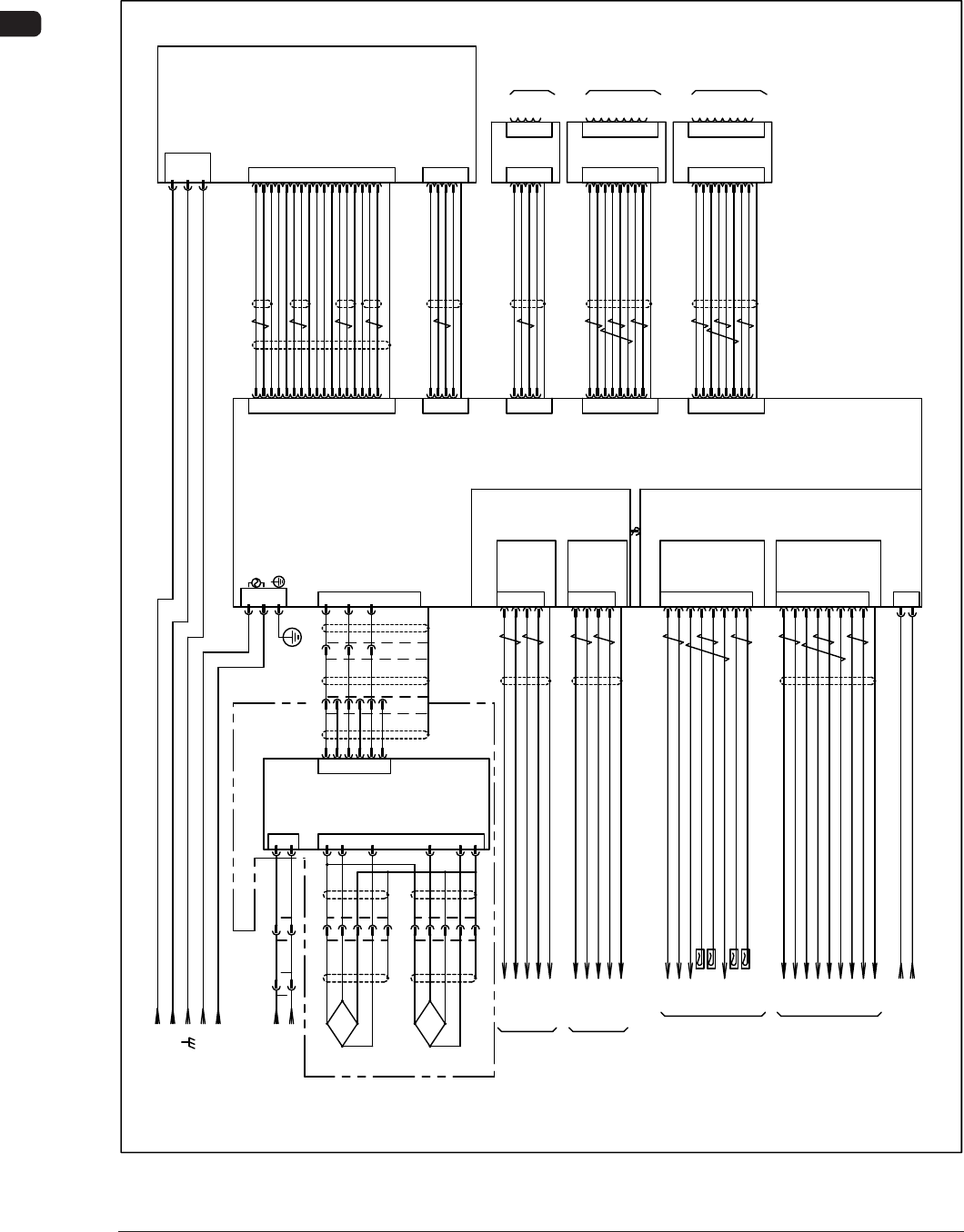
OM-1529 16 7. 資 料 7. 資 料 7.1 電気回路図 TMDS DATA2- 1 2 TMDS DATA2+ 3 TMDS DATA2 SHIELD 6 7 DDC CLOCK DDC DATA TMDS DATA1- 9 10 TMDS DATA1+ 11 TMDS DATA1 SHIELD 14 +5V POWER GND 15 16 HOT PLUG DETECT 17 TMDS DATA0- 18 19 TMDS…

OM-1529
15
6. トラブルシューティング
異常 ID 異常名、説明、要因および復帰方法
1416000 印圧設定
ロードセルからの入力がありません。
( 要因 1) ロードセルアンプとボックスコンピュータ間の通信 (RS-232C) 異常
(
復帰方法 1) 装置の電源を切り、ケーブルが外れていないか、コネクタのゆる
みが無いか確認してください。
ケーブルに問題が無い場合は、ロードセルアンプの不良が考えら
れますので、当社サービス部門へ連絡してください。
T5
0902-001

OM-1529
16
7. 資 料
7. 資 料
7.1 電気回路図
TMDS DATA2-
1
2
TMDS DATA2+
3
TMDS DATA2 SHIELD
6
7
DDC CLOCK
DDC DATA
TMDS DATA1-
9
10
TMDS DATA1+
11
TMDS DATA1 SHIELD
14
+5V POWER
GND
15
16
HOT PLUG DETECT
17
TMDS DATA0-
18
19
TMDS DATA0+
TMDS DATA0 SHIELD
TMDS CLOCK SHIELD
22
23
TMDS CLOCK+
24
TMDS CLOCK-
DVI-D
USB1
+5V
USB
-DATA
+DATA
GND
H00-DVI
+5VIN
USB-
USB+
GND
1
2
3
6
7
9
10
11
14
15
16
17
18
19
22
23
24
1
2
3
4
TMDS DATA2-
TMDS DATA2+
TMDS DATA2 SHIELD
DDC CLOCK
DDC DATA
TMDS DATA1-
TMDS DATA1+
TMDS DATA1 SHIELD
+5V
GND
HOT PLUG DETECT
TMDS DATA0-
TMDS DATA0+
TMDS DATA0 SHIELD
TMDS CLOCK SHIELD
TMDS CLOCK+
TMDS CLOCK-
2
4
3
5
6
14
15
X1A53
7
FG
L
V
+EXC
INPUT
INPUT
-EXC
HIGH1
LOW1
INPUT
LOW2
INPUT
HIGH2
USB2
N80
1
2
3
4
FG
1
2
3
4
FG
USB
N81
1
2
3
4
LAN1
5
6
7
8
FG
1
2
3
4
5
6
7
8
FG
LAN1
DVI-I
3
2
5
RXD
TXD
SG
+5VDC
受信データ
送信データ
4
3
2
5
GND
1
NC
NC
6
コネクタケース
+V1
2 GND
3 COM A
4 +V
5
6
7
8
GND
COM B
+V
GND
サテライト送信+4
CN1
5
サテライト送信-
2
センター送信+
3
センター送信-
コネクタケース
TX+:3
TX-:5
RX+:7
RX-:9
FG:コネクタケース
40
CN6
CN1
GND
CH1
(A-LINK)
コネクタケース
+V
COM A1
COM B1
CH1
(AE-LINK)
+V1
2 GND
3 COM A
4 +V
5
6
7
8
GND
COM B
+V
GND
CN2
GND
コネクタケース
+V
COM A2
+V
GND
COM B2
+V
GND
FG
CH2
(AE-LINK)
+VIN1
CN3
2 GND
24A7
10A
COM1
FG FG
+5VIN
USB-
USB+
GND
X2A53
H00-PW
GND
+V
GND
+V
サテライト送信+4
CN2
5
サテライト送信-
2
センター送信+
3
センター送信-
コネクタケース
TX+:3
TX-:5
RX+:7
RX-:9
FG:コネクタケース
CH1
(A-LINK)
N82
1
2
3
4
LAN2
5
6
7
8
FG
1
2
3
4
5
6
7
8
FG
LAN2
U50-LAN2 N82-LAN2
NC
NC
1TX+
2TX-
7
3RX+
4NC
8
5NC
6RX-
FG
U52-CN2
1
3
2
:1
:2
FG
U53-CN3
U53-CN2
U53(RS485)
U52(HLSC)
U52-CN1
U53-CN1
FG
X532
X531
ケース
:6
:1
:2
X2530
ケース
:4
:5
:3
:6
:1
:2
U50-COM1
X1530X530
U50-LAN1 N81-LAN1
FG
1
2
3
4
N80-USB1U50-USB2
FG
1
2
3
4
NC
NC
1TX+
2TX-
7
3RX+
4NC
8
5NC
6RX-
FG
:1
:2
:E
B02
:D
:C
:B
:A
24A3
10A
:E
:D
:C
:B
B01
:A
+24V
SG
10A
24A3
L
N
H00-USBU50-USB1
H00
タッチパネルモニタ
U50-DVI
L204
L104
U50
BOXコンピュータ
X0304
(前後インターフェース部)
A25-N1
(テーブル幅軸)
A19-N1
(テーブルX軸/
テーブルθ軸)
X0701
(スキージヘッド部/
基板認識部)
(オプション)
FA:スキージヘッド部
シールド
緑
白
黒
赤
後ロードセル B02(オプション)
ロードセルアンプ
シールド
緑
白
黒
赤
前ロードセル B01(オプション)
0902-001-(M900WC---2001)

OM-1529
17
7. 資 料
7.2 ロードセル組図
0902-001-(M900KFA--0004)
A53
ロードセルアンプ
(
オプション
)