KE2000R_安装要领书.pdf - 第26页
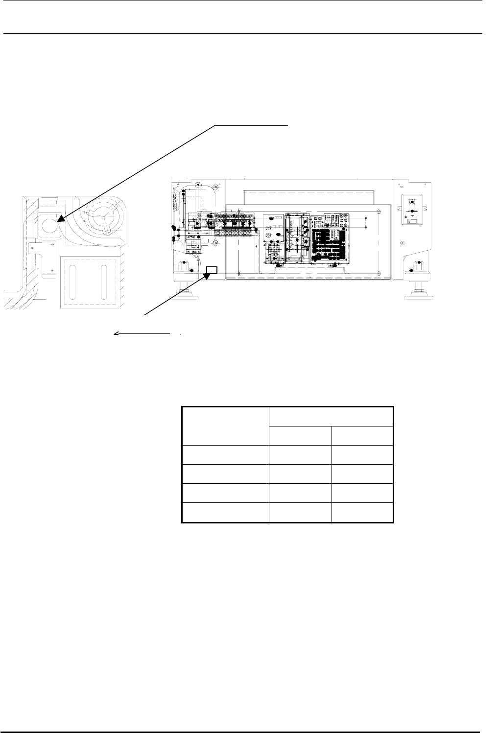
Rev.1.00 安装要领书 3. 请把一字形螺丝刀插到装置内部的接线端子座上, 把电源的各线路连接到接线端子台。 FG 线连 接到底架上的 FG 连接柱上。 ( 电源电缆和 FG 线请参照表 1 ,请使用适合电缆长度的电缆线。 ) 端子台 接线端子座 電源ケーブル挿入口 电源电缆插入口 表 1 电缆长度的适合断面积 导体断面积 [mm 2 ] 电缆长度 [m] 200V 系列 400V 系列 20 以下 6 6 30 8 6 40 1…

Rev.1.00
安装要领书
11. 电源电缆线的连接
11-1. 标准机
<程序>
1. 连接电源电缆线之前,请确认配电盘的断路器关闭等,连接电源电路的电源应被切断。
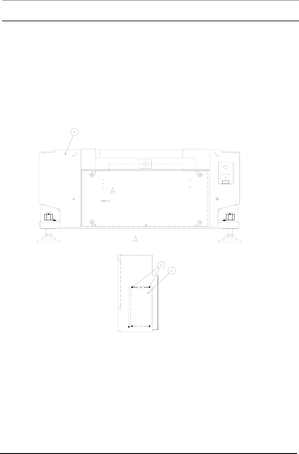
2. 卸下①护罩RBL的③的螺丝,卸下②的安装护罩。
21

Rev.1.00
安装要领书
3. 请把一字形螺丝刀插到装置内部的接线端子座上,把电源的各线路连接到接线端子台。FG 线连
接到底架上的 FG 连接柱上。(电源电缆和 FG 线请参照表 1,请使用适合电缆长度的电缆线。)
端子台
接线端子座
電源ケーブル挿入口
电源电缆插入口
表 1 电缆长度的适合断面积
导体断面积[mm
2
]
电缆长度[m]
200V系列 400V系列
20以下 6 6
30 8 6
40 10 6
50 12 6
※变更电源电压时,请变更「变压器(伺服马达用)」「变压器(DC 电源用)」「AC 电源输入装置」的 3
个接线柱。
22

Rev.1.00
安装要领书
11-2. EN 机
<程序>
1. 与标准机相同,确认配电盘的断路器的关闭等,连接电源的电源电路的电源被切断。
同时,卸下护罩 RBL 上安装的安装护罩。
2. 把电源电缆穿过插入口安装的锁定器,把一字形螺丝刀插到装置内部的接线端子座拧紧,把电
源的各线连接到接线端子座上。FG 线连接到底座上的 FG 线接线柱上。(电源电缆线和保护接地
用电线请参照表 1,请适合电缆长度的电缆。)
3. 请用电源电缆插入口上的锁定装置从侧面固定好电缆并拧紧。
※变更电源电压时,请变更「变压器(伺服马达用)」「变压器(DC 电源用)」「AC 电源输入装置」的
3 个接线柱。
危险
请确保工厂充分的供电电流容量。
危险
请绝对不能连接到不符合电压规格的电源上。
23