NPM-TT2.pdf - 第128页
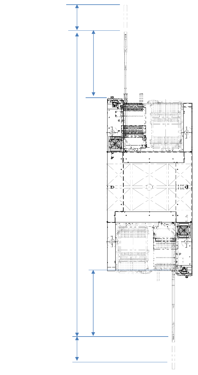
NPM-TT2 2018.0416 - 122 - ( 单位 : mm) ■ 调整螺栓的配置图 75 75 1 1 13 Air 636 470 686 470 381 1 1 16 636 686 2 388 851 993 120 150 1 263 电源 前 侧 基板传送基准 ( 前侧轨道 ) 381 851 基板传送基准 ( 后侧轨道 )

NPM-TT2 2018.0416
- 121 -
(
単位
: mm)
■ 交换台车连接时(含堆叠杆状供料器)
※ 为了取出和设置供料器,需要以下空间。
・从尾端顺序取出或设置的情况,如上图所示,需要
400 mm
的空间。
・若要从两侧都邻接供料器的位置取出中间的供料器,需要供料器全长的距离,因此需要最多
1 600mm
的空间。
400
400
996
996

NPM-TT2 2018.0416
- 122 -
(
单位
: mm)
■ 调整螺栓的配置图
75 75
1 113
Air
636
470 686 470 381
1 116 636
686
2 388
851
993 120 150
1 263
电源
前 侧
基板传送基准
(
前侧轨道)
381
851
基板传送基准
(
后侧轨道)

NPM-TT2 2018.0416
- 123 -
■ 托盘供料器
(
单位
: mm)
※ 托盘供料器高度
896 mm
,是
NPM-TT2
的基板搬送高度是
900 mm
时的标准值。
可调整范围是
: 896 mm
+65
-16.5
896
※
1 052
985
873
828
480