NPM-TT2.pdf - 第129页
NPM-TT2 2018.0416 - 123 - ■ 托 盘供料器 ( 单位 : mm) ※ 托盘供料器高度 896 mm ,是 NPM-TT2 的基板搬送高度是 900 mm 时的标准值 。 可调整范围是 : 896 mm +65 -16.5 896 ※ 1 052 985 873 828 480

NPM-TT2 2018.0416
- 122 -
(
单位
: mm)
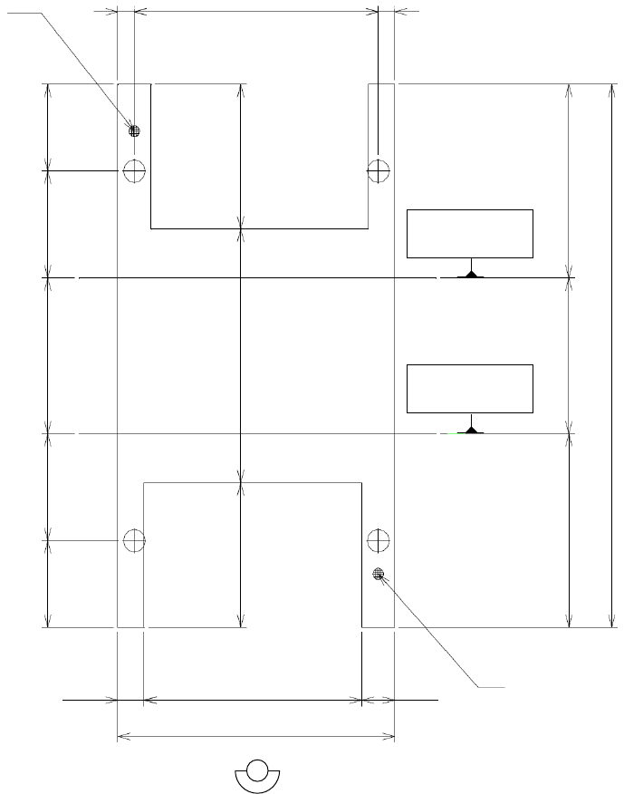
■ 调整螺栓的配置图
75 75
1 113
Air
636
470 686 470 381
1 116 636
686
2 388
851
993 120 150
1 263
电源
前 侧
基板传送基准
(
前侧轨道)
381
851
基板传送基准
(
后侧轨道)

NPM-TT2 2018.0416
- 123 -
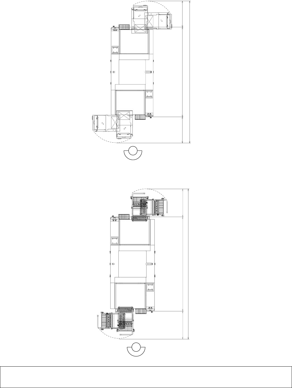
■ 托盘供料器
(
单位
: mm)
※ 托盘供料器高度
896 mm
,是
NPM-TT2
的基板搬送高度是
900 mm
时的标准值。
可调整范围是
: 896 mm
+65
-16.5
896
※
1 052
985
873
828
480

NPM-TT2 2018.0416
- 124 -
安装托盘供料器时,是必须的最小限空间。
在维护作业时有时会卸下托盘供料器,所以设置机器时请必须确保以下的空间。
(
单位
: mm)
交换台车时,是必须的最小限空间。设置机器时请必须确保以下的空间。
Remarks
交换台车设置范围的地面倾斜,需要台车的左右方向在
6 mm
以内,前后方向在
11 mm
以内。
地面倾斜度超过此范围时,不可搬移交换台车。
前 侧
4 190
2 628 781 781
前 侧
2 628
4 154
763 763