FUJI NXTIIIC 配件清单.pdf - 第329页
ࡇࡢ࣮࣌ࢪࡣࣈࣛࣥࢡ࣮࣌ࢪ࡛ࡍ ↔亥ᱟオⲭ亥 This page is intentionally blank. 329 PTS-NXT3c-01JE

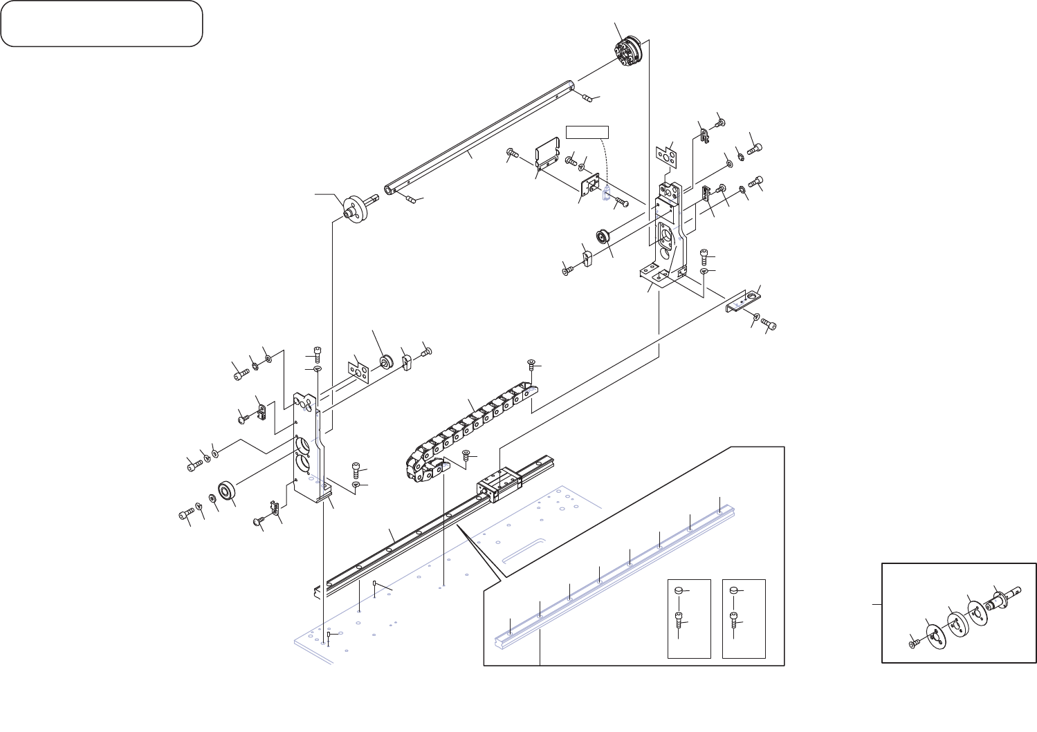
M3 IIIc-SINGLE CONVEYOR 4/6
M3 IIIc-シングルコンベア 4/6
2UGZCA000106
No. Dr
g
.No. & Code No. QTY Descri
p
tion Ratin
g
Materials Remarks
番号 図番 & コード番号 個数 品名
規
格材質 備考
109 W1106D 1 WASHER, LOCK ワッシャ ス
プ
リン
グ
4M
/
M(3カ シロ) FE
110 W1108S 1 WASHER, FLAT ワッシャ 平 4M
/
MX0.8X9(1W-4)(3カシロ) FE
119 H2096H 5 PIN, PARALLEL ピン 平行
φ
03X06 B種(h8) ステンレス OT
120 2MGLCA000300 1 GUIDE, RAIL ガイド レール OT THK
121 K20089 8 CAP キャッ
プ
C4 OT THK
122 2MGTCA006501 5 BOLT, HEX SOCKET ボルト 六角穴 FE
123 H5426S 3 BOLT, HEX SOCKET ボルト 六角穴 M04X018(3カ シロ) FE
130 2MGZCA000700 1 GUIDE, RAIL ガイド レール OT HIWIN
131 . 8 CAP キャッ
プ
OT HIWIN, ACC-130
328
PTS-NXT3c-01JE
ࡇࡢ࣮࣌ࢪࡣࣈࣛࣥࢡ࣮࣌ࢪ࡛ࡍ
↔亥ᱟオⲭ亥
This page is intentionally blank.
329
PTS-NXT3c-01JE

&RQYH\DQFHGULYHD[LV
ᦙ㏦㥑ື㍈
DETAIL V
V
V
V
S1
S1
Ref.4/
A
A
A
A
B
B
2
21
8
28
32
29
105
33
9
27
106
119
30
31
3
6
22
25
5
10
11
24
1
81
81
76
77
78
116
117
117
107
108
84
84
85
86
87
12
13
36
37
23
4
109
112
111
110
113
114
115
90
4.1
23.1
81.1
81.1
108
16
15
16
15
34
35
34
35
80
83
120
130
121
122
121
123
131
131
2UGZCA000106
0,,,Fࢩࣥࢢࣝࢥࣥ࣋
0,,,F6,1*/(&219(<25
B
B
A
A
A
A
A
A
B
B
B
B
A
A
330
PTS-NXT3c-01JE