FUJI NXTIIIC 配件清单.pdf - 第374页
B B C C A A A A OPTION Auto backup pin function ⮬ືࣂࢵࢡࢵࣉࣆࣥᶵ⬟ BACK-UP PIN ࣂࢵࢡࢵࣉࣆࣥ 㸿㹎㸴㹄㸿 㸮㸮㸮㸮㸮㸮 B B C C 5 6 7 8 9 11 12 44 18 21 33 74 75 76 73 74 75 76 73 34 31 42 45 46 33 34 31 35 38 55 56 57 56 57 59 59 48 55 44 48 55…
ࡇࡢ࣮࣌ࢪࡣࣈࣛࣥࢡ࣮࣌ࢪ࡛ࡍ
↔亥ᱟオⲭ亥
This page is intentionally blank.
373
PTS-NXT3c-01JE

B
B
C
C
A
A
A
A
OPTION
Auto backup pin function
⮬ືࣂࢵࢡࢵࣉࣆࣥᶵ⬟
BACK-UP PIN
ࣂࢵࢡࢵࣉࣆࣥ
㸿㹎㸴㹄㸿
㸮㸮㸮㸮㸮㸮
B
B
C
C
5
6
7
8
9
11
12
44
18
21
33
74
75
76
73
74
75
76
73
34
31
42
45
46
33
34
31
35
38
55
56
57
56
57
59
59
48
55
44
48
55
56
57
59
59
55
57
56
68
62
63
64
62
63
65
4
36
37
19
20
62
63
61
62
63
60
32
32
32
32
12
9
73
35
74
75
76
73
74
75
76
11
31
33
34
45
46
43
8
31
33
34
18
52
53
4
68
51
22
24
23
39
41
40
4
4
58
58.1
58
58.1
58
58.1
58
58.1
58
58.1
58
58.1
120
121
122
123
2
3
1
15
15
80
81
79
86
87
88
89
90
91
92
93
85
96
97
95
98
99
101
102
100
95.1
118
116
111
112
110
115
110.1
5.1
51.1
47
47
16
16
16
16
30
25
25
49
50
49
50
14
14
78
78
26.1
26
30
25
26.1
26
17
17
17
17
77
77
27
28
29
27
28
29
27
28
29
27
28
29
25
83
84
103
104
16.1
16.1
16.1
16.1
47.1
47.1
0,,,Fࢩࣥࢢࣝࢥࣥ࣋
0,,,F6,1*/(&219(<25
2UGZCE000106
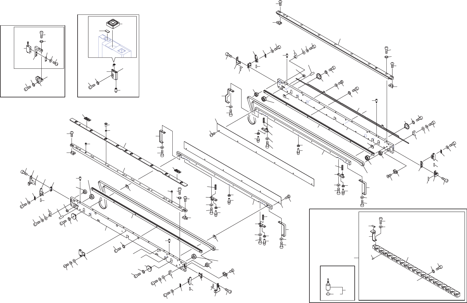
374
PTS-NXT3c-01JE

M6 IIIc-SINGLE CONVEYOR 3/6
M6 IIIc-シングルコンベア 3/6
2UGZCE000106
No. Dr
g
.No. & Code No. QTY Descri
p
tion Ratin
g
Materials Remarks
番号 図番 & コード番号 個数 品名
規
格材質 備考
1 2MGTCF000505 1 PLATE, RETAINING
プ
レート 押え FE
2 2MGTCF004501 10 BOLT ボルト FE
3 2MGTCF000400 10 COLLAR カラー FE
4 PM23709 4 PIN, REFERENCE ピン 基準 FE
5 PM085S6 1 RAIL レール FE
5.1 PM0BYN2 1 RAIL レール FE Thin
p
anel o
p
tion
6 H5289A 8 BOLT, HEX SOCKET ボルト 六角穴 M04X012 FE
7 W1011A 8 WASHER, CONICAL ワッシャ 皿 M-4-L FE
8 PT01225 2 GUIDE ガイド FE
9 K5255T 4 SCREW, HEX SOCKET BUTTON 小ネジ 六角穴ボタン M03X006 FE
11 PT01214 2 GUIDE ガイド FE
12 K5255T 4 SCREW, HEX SOCKET BUTTON 小ネジ 六角穴ボタン M03X006 FE
14 H3170B 2 PLUNGER, BALL
プ
ランジャ ボール SBP-4 OT
15 2MGTCA001000 2 SEAL シール OT
16 2AGTCA000702 4 PULLEY
プ
ーリ OT
16.1 AB07600 4 PULLEY
プ
ーリ OT Thin
p
anel o
p
tion
17 2AGTCA000602 4 PULLEY
プ
ーリ OT
18 PM92403 2 BKT, SENSOR BKT センサ FE
19 2MGTCA004801 1 GUIDE ガイド OT
20 PS03151 1 SHEET シート OT
21 H67813 2 BOLT, HEX SOCKET ボルト 六角穴 M03X008テイトウ(3カ シロ) FE
22 2MGTCA005100 1 GUIDE ガイド OT
23 PS03151 1 SHEET シート OT
24 H67813 2 BOLT, HEX SOCKET ボルト 六角穴 M03X008テイトウ(3カ シロ) FE
25 2MGTCA002600 2 SENSOR, FIBER センサ ファイバ OT SET
26 T63140 2 TUBE, MARKER チュー
ブ
マーカ
φ
2.8(内径)X0.4(キイロ) OT
26.1 T63141 2 TUBE, MARKER チュー
ブ
マーカ
φ
2.8(内径)X0.4(シロ) OT
27 H54250 8 BOLT, HEX SOCKET ボルト 六角穴 M03X005(3カ シロ) FE
28 W1106C 8 WASHER, LOCK ワッシャ ス
プ
リン
グ
3M
/
M(3カ シロ) FE
29 2MGKCA031200 4 PLATE
プ
レート FE
30 N10790 2 NUT, SQUARE ナット 四角 M04 P=0.7(3カシロ) FE
31 PM05AC1 4 GUIDE ガイド FE
32 PP02472 4 SPACER スペーサ FE
33 H54254 4 BOLT, HEX SOCKET ボルト 六角穴 M03X012(3カ シロ) FE
34 W1010A 4 WASHER, CONICAL ワッシャ 皿 M-3-L FE
35 PM92393 2 BKT, SENSOR BKT センサ FE
36 2MGTCA004901 1 GUIDE ガイド OT
37 PS03151 1 SHEET シート OT
38 H67813 2 BOLT, HEX SOCKET ボルト 六角穴 M03X008テイトウ(3カ シロ) FE
39 2MGTCA005000 1 GUIDE ガイド OT
40 PS03151 1 SHEET シート OT
41 H67813 2 BOLT, HEX SOCKET ボルト 六角穴 M03X008テイトウ(3カ シロ) FE
42 2MGTCF004800 1 PLATE
プ
レート FE
43 2MGTCF002702 1 PLATE
プ
レート FE
44 2MGKCE005500 2 GUIDE, BELT ガイド ベルト AL
45 H5426L 12 BOLT, HEX SOCKET ボルト 六角穴 M04X010(3カ シロ) FE
46 W1011A 12 WASHER, CONICAL ワッシャ 皿 M-4-L FE
47 2MGKCE008901 2 CONVEYOR, BELT コンベア ベルト OT
47.1 2MGKCE009000 2 CONVEYOR, BELT コンベア ベルト OT Thin
p
anel o
p
tion
48 PM059Z4 2 PLATE, GUIDE
プ
レート ガイド FE
49 2MGTCF003301 2 PLATE, CLAMPING
プ
レート クラン
プ
FE
375
PTS-NXT3c-01JE