FUJI NXTIIIC 配件清单.pdf - 第461页
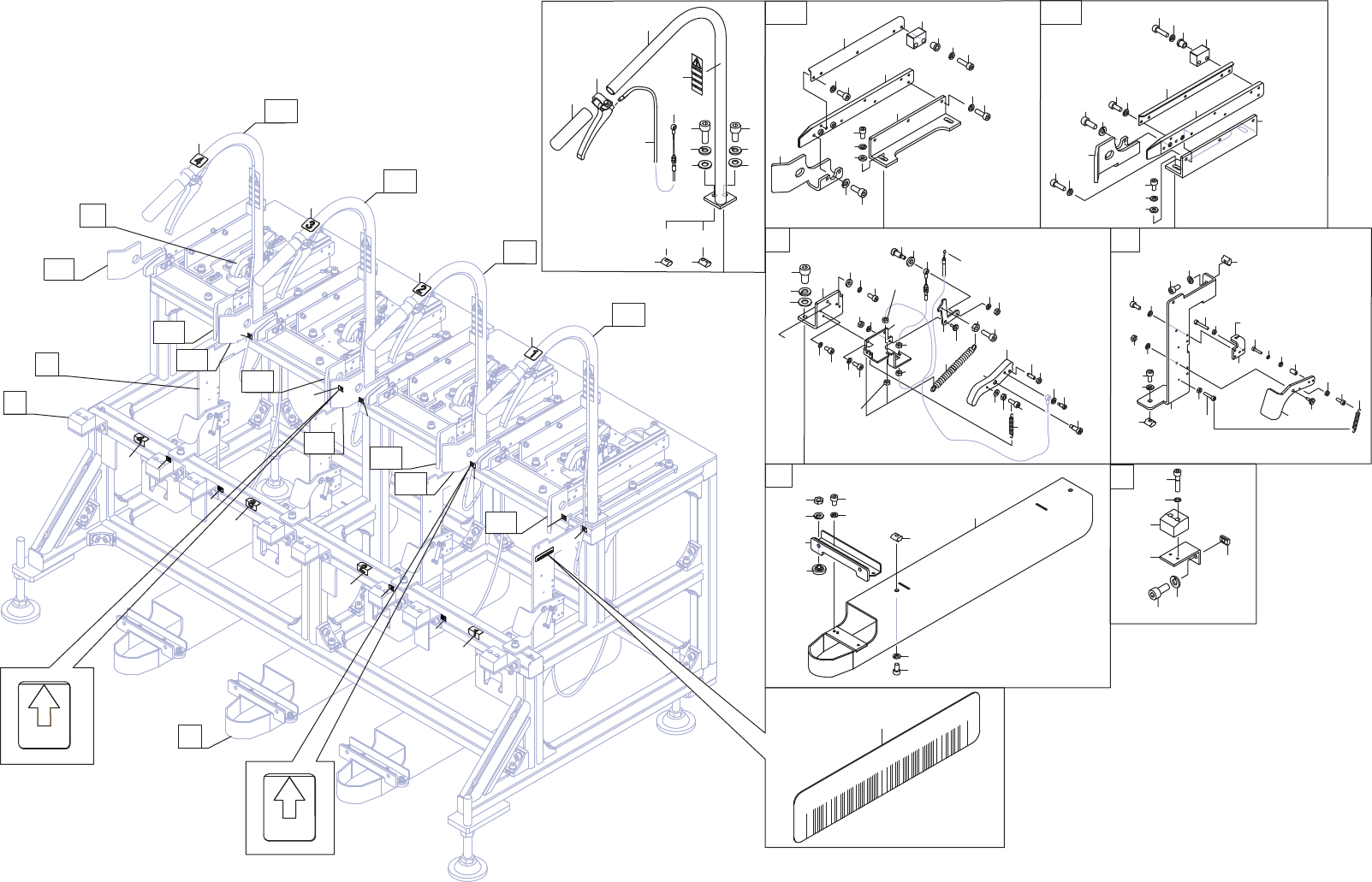
PSU IIc 3/5 (M3 PALLET WITH BUCKET) PSU IIc 3/5 (M3 バケット) UK04907 No. Dr g .No. & Code No. QTY Descri p tion Ratin g Materials Remarks 番号 図番 & コード番号 個数 品名 規 格材 質 備 考 1 2MGLPT003502 4 HANDLE 取手 FE 2 H5428N 4 BOLT…

M3
M3
M3
M3
M3
M3
M6
M6
M6
M6
Pallet lock
Pa
llet
lo
ck
release lever
r
el
ease
lever
パレットロック
パ
レットロ
ック
解除レバー
解
除レ
バ
ー
トオ。@ァi
トオ。@ァi
Pallet lock
Pallet
lock
release lever
rel
ea
se
lever
パレットロック
パ
レ
ットロ
ック
解除レバー
解
除レ
バ
ー
トオ。@ァi
トオ。@ァi
B
B
B
M6
M6
M3
M3
M3
M3
M3
M3
M3
M3
M3
M3
Pallet lock
Pa
llet
lo
ck
release lever
release
leve
r
パレットロック
パ
レットロック
解除レバー
解
除
レ
バ
ー
トオ。@ァi
トオ。@ァi
*PD00J 123456*
*PD0
0J 1
2345
6*
M3
M3
M3
M3
M3
M3
M6
M6
M6
M6
M3
M3
M6
M6
M6
M6
B
M3
M3
M3
M3
M3
M3
Pallet lock
Pa
llet
lock
release lever
rel
ea
se
lever
パレットロック
パレ
ットロック
解除レバー
解
除レバ
ー
トオ。@ァi
トオ。@ァi
M3
M3
M6
M6
M6
M6
M3
M3
M3
M3
WARNING
W
ARNING
警 告
警 告
M6
M6
M3
M3
M3
M3
M3
M3
M3
M3
WARNING
W
ARNING
警 告
警 告
WARNING
W
AR
NING
警 告
警 告
WARNING
WARNING
警 告
警 告
M3
M3
M3
M3
M3
M3
M6
M6
M3
M3
M3
M3
M6
M6
M3
M3
A2
A2
C
C
A1
A1
A2
A2
A1
A1
H
H
E
E
L
L
㹋㸴
㹋㸱
E
E
F
F
L
L
㸨㹎㹂㸮㸮㹈ࠉ㸯㸰㸱㸲㸳㸴㸨
M3
M3
M3
M3
M3
M3
M3
M3
G1
G1
G1
G1
G2
G2
G1
G1
G2
G2
G2
G2
G1
G1
G2
G2
G2
G2
G1
G1
C
C
F
F
D
D
B
B
D
D
H
H
B
B
A1
A1
A2
A2
WARNING
警 告
Pallet lock
release lever
パレットロック
解除レバー
? ?
???????
??詈????
15
16
17
18
15
16
17
18
161
161
160
160
160
160
160
160
160
160
60
61
62
61
62
63
63
66
67
68
69
73
74
76
75
76
77
78
79
80
81
82
83
150
151
152
153
154
155
156
163
90
91
92
93
94
95
96
97.1
98
99
101
105
103
104
108
109
110
90
91
92
93
94
95
96
97
98
99
101
103
104
105
107
109
110
88
89
20
21
22
23
24
25
26
27
28
29
30
31
32
33
34
35
36
37
38
39
49.1
49.1
40
10.1
10.1
41
42
43
44
45
46
47
48
49
50
51
52
53
115
116
117
118
119
120
121
122
123
124
1
23
4
5
4
5
67
8
9
10
11
368,,F03$//(7:,7+%8&.(7
368,,F0ࣂࢣࢵࢺ
UK04907
460
PTS-NXT3c-01JE

PSU IIc 3/5 (M3 PALLET WITH BUCKET)
PSU IIc 3/5 (M3 バケット)
UK04907
No. Dr
g
.No. & Code No. QTY Descri
p
tion Ratin
g
Materials Remarks
番号 図番 & コード番号 個数 品名
規
格材質 備考
1 2MGLPT003502 4 HANDLE 取手 FE
2 H5428N 4 BOLT, HEX SOCKET ボルト 六角穴 M08X025(3カシロ) FE
3 H5428F 4 BOLT, HEX SOCKET ボルト 六角穴 M08X015(3カ シロ) FE
4 W1106G 8 WASHER, LOCK ワッシャ ス
プ
リン
グ
8M
/
M(3カシロ) FE
5 W1108K 8 WASHER, FLAT ワッシャ 平 M08(3カ シロ)8X17X1.6 FE
6 N1009C 2 NUT ナット HNTT8-8 FE
7 N60286 2 NUT ナット HNTC8-8 FE
8 R4012L 4 LEVER レバー LPレバークロ(ヒダリ) OT
9 N2117E 4 GRIP 握り C-57(02) PL
10 XW00523 4 WIRE ワイヤ OT
10.1 N1079C 8 NUT, HEX ナット 六角 M05 P=0.8 1シュ(3カシロ) FE
11 2MGKPT003500 4 SEAL シール PL
15 PX05912 2 SEAL シール PL
16 PX05922 2 SEAL シール PL
17 PX05932 2 SEAL シール PL
18 PX05942 2 SEAL シール PL
20 PJ10603 4 STOPPER ストッパ PL
21 N1079D 4 NUT, HEX ナット 六角 M06 P=1.0 1シュ(3カシロ) FE
22 H3170K 4 PLUNGER, BALL
プ
ランジャ ボール BPWL6 FE
23 H5120W 4 BOLT ボルト MSB6-10 FE
24 W1108F 4 WASHER, FLAT ワッシャ 平 4W-6(3カ シロ) FE
25 H5120Z 4 BOLT ボルト MSB8-15 FE
26 H5426M 4 BOLT, HEX SOCKET ボルト 六角穴 M04X012(3カ シロ) FE
27 N1079B 4 NUT, HEX ナット 六角 M04 P=0.7 1シュ(3カシロ) FE
28 W1040S 4 WASHER, FLAT ワッシャ 平 4M
/
MX0.8X9(1W-4)(3カクロ) FE
29 S3262S 4 SPRING, TENSION ス
プ
リン
グ
引
張
AWY8-40 FE
30 PB0ALG1 4 BKT, PIVOT BKT 支点 FE
31 H5428F 8 BOLT, HEX SOCKET ボルト 六角穴 M08X015(3カ シロ) FE
32 W1106G 8 WASHER, LOCK ワッシャ ス
プ
リン
グ
8M
/
M(3カシロ) FE
33 W1108G 8 WASHER, FLAT ワッシャ 平 4W-8(3カ シロ) FE
34 H5426K 4 BOLT, HEX SOCKET ボルト 六角穴 M04X008(3カ シロ) FE
35 W1011A 4 WASHER, CONICAL ワッシャ 皿 M-4-L FE
36 H5426L 4 BOLT, HEX SOCKET ボルト 六角穴 M04X010(3カ シロ) FE
37 W1011A 4 WASHER, CONICAL ワッシャ 皿 M-4-L FE
38 W1043C 4 WASHER, FLAT ワッシャ 平 4W- 4(3カシロ) FE
39 PB0ALF2 4 BKT BKT FE
40 H5426L 8 BOLT, HEX SOCKET ボルト 六角穴 M04X010(3カ シロ) FE
41 W1106D 8 WASHER, LOCK ワッシャ ス
プ
リン
グ
4M
/
M(3カ シロ) FE
42 2MGLPT007300 4 LEVER, CLAMP レバー クラン
プ
FE
43 PM93493 4 BOLT ボルト FE
44 N1079B 4 NUT, HEX ナット 六角 M04 P=0.7 1シュ(3カシロ) FE
45 W1106D 4 WASHER, LOCK ワッシャ ス
プ
リン
グ
4M
/
M(3カ シロ) FE
46 S3250G 4 SPRING, TENSION ス
プ
リン
グ
引
張
AWS6-60 FE
47 H54253 4 BOLT, HEX SOCKET ボルト 六角穴 M03X010(3カ シロ) FE
48 N10793 4 NUT, HEX ナット 六角 M03 P=0.5(3カシロ) FE
49 2MGKPT004900 4 WIRE ワイヤ OT
49.1 N1079C 8 NUT, HEX ナット 六角 M05 P=0.8 1シュ(3カシロ) FE
50 H5120W 4 BOLT ボルト MSB6-10 FE
51 W1108F 4 WASHER, FLAT ワッシャ 平 4W-6(3カ シロ) FE
52 N1079B 4 NUT, HEX ナット 六角 M04 P=0.7 1シュ(3カシロ) FE
53 W1106D 4 WASHER, LOCK ワッシャ ス
プ
リン
グ
4M
/
M(3カ シロ) FE
461
PTS-NXT3c-01JE

PSU IIc 3/5 (M3 PALLET WITH BUCKET)
PSU IIc 3/5 (M3 バケット)
UK04907
No. Dr
g
.No. & Code No. QTY Descri
p
tion Ratin
g
Materials Remarks
番号 図番 & コード番号 個数 品名
規
格材質 備考
60 2MGLPT007801 4 BKT BKT FE
61 H5428G 8 BOLT, HEX SOCKET ボルト 六角穴 M08X016(3カ シロ) FE
62 W1106G 8 WASHER, LOCK ワッシャ ス
プ
リン
グ
8M
/
M(3カシロ) FE
63 N1009C 8 NUT ナット HNTT8-8 FE
66 2MGLPT005900 8 LEVER レバー FE
67 2MGLPT005300 8 BOLT ボルト FE
68 N1079B 4 NUT, HEX ナット 六角 M04 P=0.7 1シュ(3カシロ) FE
69 W1106D 4 WASHER, LOCK ワッシャ ス
プ
リン
グ
4M
/
M(3カ シロ) FE
73 S3262S 4 SPRING, TENSION ス
プ
リン
グ
引
張
AWY8-40 FE
74 H54253 4 BOLT, HEX SOCKET ボルト 六角穴 M03X010(3カ シロ) FE
75 H54255 4 BOLT, HEX SOCKET ボルト 六角穴 M03X015(3カ シロ) FE
76 N10793 8 NUT, HEX ナット 六角 M03 P=0.5(3カシロ) FE
77 S3228C 8 SPACER スペーサ CU-414 FE
78 H5426T 8 BOLT, HEX SOCKET ボルト 六角穴 M04X020(3カ シロ) FE
79 W1106D 8 WASHER, LOCK ワッシャ ス
プ
リン
グ
4M
/
M(3カ シロ) FE
80 W1043C 8 WASHER, FLAT ワッシャ 平 4W- 4(3カシロ) FE
81 PB69232 4 BKT, STOPPER BKT ストッパ FE
82 H5426L 8 BOLT, HEX SOCKET ボルト 六角穴 M04X010(3カ シロ) FE
83 W1106D 8 WASHER, LOCK ワッシャ ス
プ
リン
グ
4M
/
M(3カ シロ) FE
88 H5426X 4 BOLT, HEX SOCKET ボルト 六角穴 M04X025(3カ シロ) FE
89 N1079B 4 NUT, HEX ナット 六角 M04 P=0.7 1シュ(3カシロ) FE
90 2MGLPT003400 8 RAIL レール FE
91 PG02861 8 STOPPER ストッパ PL
92 K1138S 16 COLLAR カラー AZC5 FE
93 H5427F 16 BOLT, HEX SOCKET ボルト 六角穴 M05X020(3カ シロ) FE
94 W1106E 16 WASHER, LOCK ワッシャ ス
プ
リン
グ
5M
/
M(3カ シロ) FE
95 H5427B 16 BOLT, HEX SOCKET ボルト 六角穴 M05X012(3カシロ) FE
96 W1106E 16 WASHER, LOCK ワッシャ ス
プ
リン
グ
5M
/
M(3カ シロ) FE
97 2MGLPT012001 4 GUIDE, RAIL ガイド レール FE
97.1 2MGLPT012101 4 GUIDE, RAIL ガイド レール FE
98 H5427D 24 BOLT, HEX SOCKET ボルト 六角穴 M05X016(3カ シロ) FE
99 W1106E 24 WASHER, LOCK ワッシャ ス
プ
リン
グ
5M
/
M(3カ シロ) FE
101 2MGLPT003001 8 BKT, SUPPORT BKT 支え OT
103 H5428G 16 BOLT, HEX SOCKET ボルト 六角穴 M08X016(3カ シロ) FE
104 W1106G 16 WASHER, LOCK ワッシャ ス
プ
リン
グ
8M
/
M(3カシロ) FE
105 W1108G 16 WASHER, FLAT ワッシャ 平 4W-8(3カ シロ) FE
107 2MGLPT012300 4 GUIDE ガイド FE
108 2MGLPT012400 4 GUIDE ガイド FE
109 H54241 16 BOLT, HEX SOCKET ボルト 六角穴 M06X015(3カシロ) FE
110 W1106F 16 WASHER, LOCK ワッシャ ス
プ
リン
グ
6M
/
M(3カシロ) FE
115 2MGLPT005702 3 GUIDE ガイド FE
116 H5428F 6 BOLT, HEX SOCKET ボルト 六角穴 M08X015(3カ シロ) FE
117 W1106G 6 WASHER, LOCK ワッシャ ス
プ
リン
グ
8M
/
M(3カシロ) FE
118 N1009C 6 NUT ナット HNTT8-8 FE
119 2MGLPT004201 3 BKT, ROLLER BKT ローラ FE
120 R60106 6 ROLLER ローラ UMBH6-28 FE
121 N1079Z 6 NUT, HEX ナット 六角 M06 3シュ(3カ シロ) FE
122 W1106F 6 WASHER, LOCK ワッシャ ス
プ
リン
グ
6M
/
M(3カシロ) FE
123 H54269 6 BOLT, HEX SOCKET ボルト 六角穴 M05X010(3カシロ) FE
124 W1106E 6 WASHER, LOCK ワッシャ ス
プ
リン
グ
5M
/
M(3カ シロ) FE
150 PJ10611 8 BLOCK
ブ
ロック PL
462
PTS-NXT3c-01JE