FUJI NXTIIIC 配件清单.pdf - 第401页
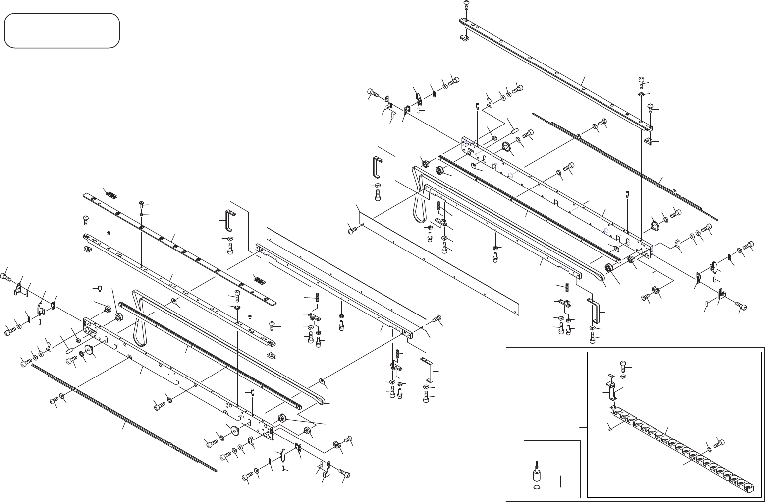
M6 IIIc-DOUBLE CONVEYOR 4/8 M6 IIIc-ダブルコンベア 4/8 2UGZCF000106 No. Dr g .No. & Code No. QTY Descri p tion Ratin g Materials Remarks 番号 図番 & コード番号 個数 品名 規 格材 質 備 考 1 2MGTCF002504 1 PLATE, RETAINING プ レート 押え FE 2 2M…

/DQHUDLO
࣮࣮ࣞࣥࣞࣝ
A
A
A
A
OPTION
Auto backup pin function
⮬ືࣂࢵࢡࢵࣉࣆࣥᶵ⬟
BACK-UP PIN
ࣂࢵࢡࢵࣉࣆࣥ
㸿㹎㸴㹄㸿
㸮㸮㸮㸮㸮㸮
1
5
6
7
8
9
11
12
12
9
44
18
33
74
75
76
73
74
75
76
73
73
34
31
42
45
46
33
34
31
35
55
56
57
56
57
59
59
48
55
35
74
75
76
73
74
75
76
11
51
31
33
34
45
46
43
8
44
31
33
34
18
48
55
56
57
59
59
55
57
56
19
21
36
38
68
52
53
15
39
41
22
24
68
40
23
37
20
62
63
60
62
63
65
62
63
61
62
63
64
32
32
32
32
80
81
79
4
4
4
4
58
58.1
58
58.1
58
58.1
58
58.1
58
58.1
58
58.1
2
3
15
96
97
95
86
87
88
89
90
91
92
93
85
5.1
16.1
16.1
16.1
16.1
51.1
47.1
47.1
47
47
16
17
17
16
30
16
17
17
16
30
25
25
25
49
50
49
50
14
14
77
78
77
78
26.1
26
26.1
26
27
28
29
27
28
29
27
28
29
27
28
29
25
83
84
0,,,Fࢲࣈࣝࢥࣥ࣋
0,,,F'28%/(&219(<25
2UGZCF000106
400
PTS-NXT3c-01JE

M6 IIIc-DOUBLE CONVEYOR 4/8
M6 IIIc-ダブルコンベア 4/8
2UGZCF000106
No. Dr
g
.No. & Code No. QTY Descri
p
tion Ratin
g
Materials Remarks
番号 図番 & コード番号 個数 品名
規
格材質 備考
1 2MGTCF002504 1 PLATE, RETAINING
プ
レート 押え FE
2 2MGTCF004501 10 BOLT ボルト FE
3 2MGTCF000400 10 COLLAR カラー FE
4 PM23709 4 PIN, REFERENCE ピン 基準 FE
5 PM085T6 1 RAIL レール FE
5.1 PM0BYZ2 1 RAIL レール FE Thin
p
anel o
p
tion
6 H5289A 8 BOLT, HEX SOCKET ボルト 六角穴 M04X012 FE
7 W1011A 8 WASHER, CONICAL ワッシャ 皿 M-4-L FE
8 PT01225 2 GUIDE ガイド FE
9 K5255T 4 SCREW, HEX SOCKET BUTTON 小ネジ 六角穴ボタン M03X006 FE
11 PT01214 2 GUIDE ガイド FE
12 K5255T 4 SCREW, HEX SOCKET BUTTON 小ネジ 六角穴ボタン M03X006 FE
14 H3170B 2 PLUNGER, BALL
プ
ランジャ ボール SBP-4 OT
15 2MGTCA001000 2 SEAL シール OT
16 2AGTCA000702 4 PULLEY
プ
ーリ OT
16.1 AB07600 4 PULLEY
プ
ーリ OT Thin
p
anel o
p
tion
17 2AGTCA000602 4 PULLEY
プ
ーリ OT
18 PM92403 2 BKT, SENSOR BKT センサ FE
19 2MGTCA005100 1 GUIDE ガイド OT
20 PS03151 1 SHEET シート OT
21 H67813 2 BOLT, HEX SOCKET ボルト 六角穴 M03X008テイトウ(3カ シロ) FE
22 2MGTCA005100 1 GUIDE ガイド OT
23 PS03151 1 SHEET シート OT
24 H67813 2 BOLT, HEX SOCKET ボルト 六角穴 M03X008テイトウ(3カ シロ) FE
25 2MGTCA002600 2 SENSOR, FIBER センサ ファイバ OT SET
26 T63140 2 TUBE, MARKER チュー
ブ
マーカ
φ
2.8(内径)X0.4(キイロ) OT
26.1 T63141 2 TUBE, MARKER チュー
ブ
マーカ
φ
2.8(内径)X0.4(シロ) OT
27 H54250 8 BOLT, HEX SOCKET ボルト 六角穴 M03X005(3カ シロ) FE
28 W1106C 8 WASHER, LOCK ワッシャ ス
プ
リン
グ
3M
/
M(3カ シロ) FE
29 2MGKCA031200 4 PLATE
プ
レート FE
30 N10790 2 NUT, SQUARE ナット 四角 M04 P=0.7(3カシロ) FE
31 PM05AC1 4 GUIDE ガイド FE
32 PP02472 4 SPACER スペーサ FE
33 H54254 4 BOLT, HEX SOCKET ボルト 六角穴 M03X012(3カ シロ) FE
34 W1010A 4 WASHER, CONICAL ワッシャ 皿 M-3-L FE
35 PM92393 2 BKT, SENSOR BKT センサ FE
36 2MGTCA005000 1 GUIDE ガイド OT
37 PS03151 1 SHEET シート OT
38 H67813 2 BOLT, HEX SOCKET ボルト 六角穴 M03X008テイトウ(3カ シロ) FE
39 2MGTCA005000 1 GUIDE ガイド OT
40 PS03151 1 SHEET シート OT
41 H67813 2 BOLT, HEX SOCKET ボルト 六角穴 M03X008テイトウ(3カ シロ) FE
42 2MGTCF004800 1 PLATE
プ
レート FE
43 2MGTCF002702 1 PLATE
プ
レート FE
44 2MGKCE005500 2 GUIDE, BELT ガイド ベルト AL
45 H5426L 12 BOLT, HEX SOCKET ボルト 六角穴 M04X010(3カ シロ) FE
46 W1011A 12 WASHER, CONICAL ワッシャ 皿 M-4-L FE
47 2MGKCF003701 2 CONVEYOR, BELT コンベア ベルト OT
47.1 2MGKCF003800 2 CONVEYOR, BELT コンベア ベルト OT Thin
p
anel o
p
tion
48 PM059Z4 2 PLATE, GUIDE
プ
レート ガイド FE
49 2MGTCF003301 2 PLATE, CLAMPING
プ
レート クラン
プ
FE
401
PTS-NXT3c-01JE

M6 IIIc-DOUBLE CONVEYOR 4/8
M6 IIIc-ダブルコンベア 4/8
2UGZCF000106
No. Dr
g
.No. & Code No. QTY Descri
p
tion Ratin
g
Materials Remarks
番号 図番 & コード番号 個数 品名
規
格材質 備考
50 K5255A 12 SCREW, HEX SOCKET BUTTON 小ネジ 六角穴ボタン M03X004 FE
51 2MGTCF002600 1 RAIL レール FE
51.1 2MGTCF003100 1 RAIL レール FE Thin
p
anel o
p
tion
52 H5289A 7 BOLT, HEX SOCKET ボルト 六角穴 M04X012 FE
53 W1011A 7 WASHER, CONICAL ワッシャ 皿 M-4-L FE
55 PM05AD2 4 PLATE
プ
レート FE
56 H54252 8 BOLT, HEX SOCKET ボルト 六角穴 M03X008(3カ シロ) FE
57 W1106C 8 WASHER, LOCK ワッシャ ス
プ
リン
グ
3M
/
M(3カ シロ) FE
58 2MGKCA042000 6 BOLT, STOPPER ボルト ストッパ OT
58.1 N1079X 6 NUT, HEX ナット 六角 M04 3シュ(3カ シロ) FE
59 PZ14451 4 SPRING ス
プ
リン
グ
FE
60 PB90312 1 HOOK フック FE
61 PB90322 1 HOOK フック FE
62 H54252 8 BOLT, HEX SOCKET ボルト 六角穴 M03X008(3カ シロ) FE
63 W1106C 8 WASHER, LOCK ワッシャ ス
プ
リン
グ
3M
/
M(3カ シロ) FE
64 PB90322 1 HOOK フック FE
65 PB90312 1 HOOK フック FE
68 2MGKCA006501 2 PIN ピン OT
73 PM97051 4 BLOCK, LOCATING
ブ
ロック 位置決め FE
74 H54252 8 BOLT, HEX SOCKET ボルト 六角穴 M03X008(3カ シロ) FE
75 W1106C 8 WASHER, LOCK ワッシャ ス
プ
リン
グ
3M
/
M(3カ シロ) FE
76 W60542 8 WASHER, FLAT ワッシャ 平 3M
/
MX0.5X6 コガタマル(3カシロ) FE
77 2MGKCE009501 2 BRUSH
ブ
ラシ OT
78 K65002 4 SCREW, HEX SOCKET COUNTERSUNK 小ネジ 六角穴皿 M03X012(3カ シロ) FE
79 2MGTCE001301 1 COVER, WIRING カバー 配線 FE
80 K5258E 2 SCREW, HEX SOCKET BUTTON 小ネジ 六角穴ボタン M03X006(3カ シロ) FE
81 W1106C 2 WASHER, LOCK ワッシャ ス
プ
リン
グ
3M
/
M(3カ シロ) FE
83 AA6WL06 20 PIN, BACKUP ピン バックアッ
プ
OT
84 PZ34033 20 SHEET シート OT
85 2AGTCF000202 1 HOLDER, PIN ホルダ ピン OT
86 2AGTCF000101 1 HOLDER, PIN ホルダ ピン OT
87 H5426T 6 BOLT, HEX SOCKET ボルト 六角穴 M04X020(3カ シロ) FE
88 W1011A 6 WASHER, CONICAL ワッシャ 皿 M-4-L FE
89 2MGTCB004300 1 BKT BKT FE
90 H5274A 2 BOLT, HEX SOCKET ボルト 六角穴 M03X006 FE
91 W1021A 2 WASHER, LOCK ワッシャ ス
プ
リン
グ
3M
/
MFE
92 H21924 4 PIN, PARALLEL ピン 平行
φ
02X05 A種(m6) SUS OT
93 2MGTCF002401 1 SEAL, BAR CODE シール バーコード PL unit serial number
95 2MGTCE001301 1 COVER, WIRING カバー 配線 FE
96 K5258E 2 SCREW, HEX SOCKET BUTTON 小ネジ 六角穴ボタン M03X006(3カ シロ) FE
97 W1106C 2 WASHER, LOCK ワッシャ ス
プ
リン
グ
3M
/
M(3カ シロ) FE
402
PTS-NXT3c-01JE