cm101规格说明书(latest).pdf - 第38页

CM101-D 2009.0601 - 32 - 规格 ( 对象基板,计测范围 ) 项 目 规格 ・ 基板材质 : 玻璃环氧 ・ 基板厚度 : 1.6 mm ~ 4.0 mm ( ※ 3) ・ 基板缺口条件 : 为了取得基板弯曲的计测基准点,有 关基板缺口位置和尺寸有以下条件。 [ 下图是,左→右流向前基板 ( 标准 ) 的情况。其他条件 ( 选购件 ) 的情况也以此 为准。 ] ・ 基板计测点的条件 : 能够计测的面是在铜膜有防焊膜的…

100%1 / 85
CM101-D 2009.0601
- 31 -
基板弯曲传感器
(
选购件
)
计测基板弯曲,通过控制贴装高度,提高贴装品质。
在生产线上流的设备上流基台的前侧轴安装
1
套。
(
1)
基板弯曲传感器有以下功能。
高速贴装头
(12
吸嘴
)
,泛用贴装头
(LS8
吸嘴
)
是专用选购件。
功能
贴装高度
控制功能
计测基板的弯曲,控制贴装高度。
无基板弯曲传感器
有基板弯曲传感器
向下一工序馈送高
度数据的功能
在上流基台计测的基板弯曲数据馈送于下流基台以及下流设备。
(
2)
基板弯曲检测功能
设定基板的容许弯曲的倾斜度,
如果是超过容许值的弯曲基板,
在贴装开始前发出警告。
※容许弯曲倾斜度
(%) = h/L × 100
1
在多功能贴装头不可安装基板弯曲传感器
2
在下流的设备是
CM101-D
对象。
有待机位置类型的传送带或者其他公司设备连接在本公司设备中间时,不可进行数据的馈送。
贴装高度的最佳化
h
L
基板弯曲传感器
(
在生产线上流设备的上流侧安装
)
基台
CM101-D CM101-D CM101-DCM101-D
基台 基台
基台
CM101-D 2009.0601
- 32 -
规格
(
对象基板,计测范围
)
规格
基板材质
:
玻璃环氧
基板厚度
: 1.6 mm
4.0 mm
(
3)
基板缺口条件
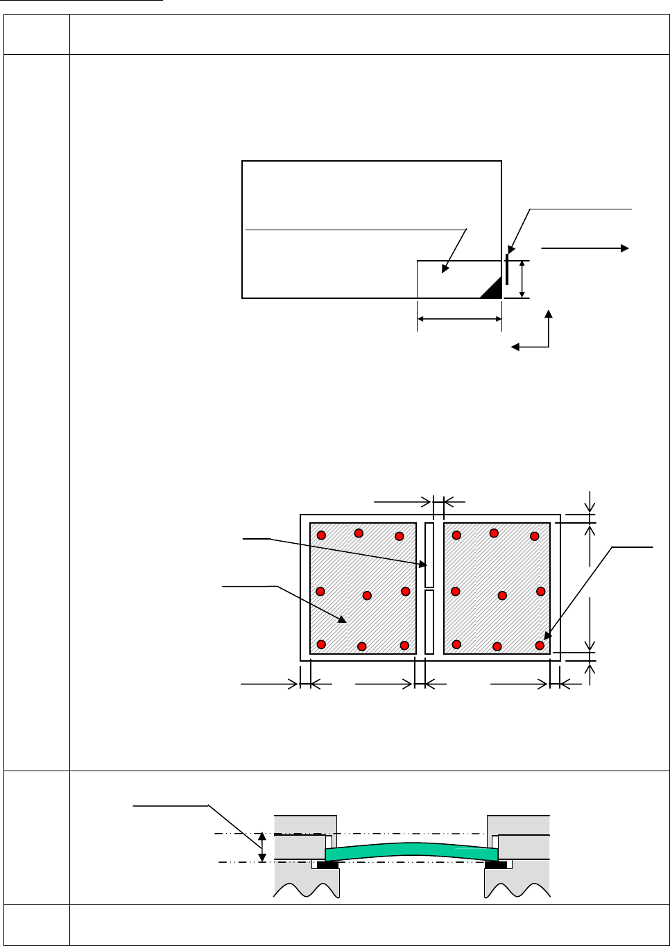
:
为了取得基板弯曲的计测基准点,有关基板缺口位置和尺寸有以下条件。
[
下图是,左→右流向前基板
(
标准
)
的情况。其他条件
(
选购件
)
的情况也以此
为准。
]
基板计测点的条件
:
能够计测的面是在铜膜有防焊膜的面,计测点需要
3 mm × 3 mm
以上的范围。
另外,需要排列从基板边缘
5 mm
以内的计测点。
(
参照下图
)
1
面基板时,计测点需要均匀的
9
点以上。
多数基板时,每区块需要
9
点以上的计测点。
(1
区块最多限制为
25
)
对象基板
基板的弯曲形状
:
1
区块能够补正的弯曲只限定断面是
U
字型的单纯曲面。
复杂弯曲的情况时进行区块分类,作为单纯曲面组合能够补正。
※由于基板的弯曲形状不同,会发生不可正确补正的情况。
※作为条件是,由于自身重量,基板形状不发生变化。
基板弯曲
传感器
计测范围
0 mm(
基板搬送面
)
4 mm
基板弯曲
计测时间
进行基板弯曲计测的基台,计测时间需要大约
3 s
(
计测
460 mm × 360 mm
尺寸的基板
9
点时
)
3
有关基板厚度
1.6 mm
未满的对应,请与本公司联络。
计测范围
0 mm
(基板搬送面)
4 mm
基板流向
固定侧
24.5 mm
50 mm
禁止基板缺口区域
Y
X
基板止动器
空隙
5 mm 5 mm 5 mm
计测可能
区域
5 mm
5 mm
5 mm
计测点
CM101-D 2009.0601
- 33 -
4.4
供给部的构成
编带料架
(
选购件
)
根据有无接头传感器
(
元件的追踪管理等为目的,拼接位置的检测传感器
)
,可将编带料架分为
2
种类型,根据编带宽有下表
所示的
8
种类。进给间距根据生产数据可以自动设定。但是,气压驱动式是手动切换。
无接头检测传感器类型
进给间距
(1
间距
= 4 mm)
料架种类
编带
宽度
类型
卷盘
直径
(
1)
安装
间距
编带槽
最大深度
(mm)
最多安装
数量
0.5
1 2 3 4 5 6 7 8 9 10 11 12 13 14
21 mm
气压驱动式
8 mm
单式编带料架
8 mm
纸塑料
21 mm
3 70
21 mm 140
8 mm
(
2, 5)
双式编带料架
8 mm
纸塑料
21 mm
3
70
21 mm
8 mm
(
5)
单式编带料架
8 mm
纸塑料
21 mm
3 70
21 mm 15 70
12 mm
塑料
21 mm 15 70
12 mm
16 mm
共用编带料架
16 mm 塑料
21 mm 15
70
(
3)
24 mm 塑料
42 mm 15 34
24 mm
32 mm
共用编带料架
32 mm
塑料
42 mm 15 34
15
44 mm 塑料
63 mm
21
22
15
44 mm
56 mm
共用编带料架
56 mm
塑料
63 mm
21
22
15
72 mm
编带料架
72 mm
塑料
84 mm
21
16
有接头传感器类型
进给间距
(1
间距
= 4 mm)
料架种类
编带
宽度
类型
卷盘
直径
(
1)
安装
间距
编带槽
最大深度
(mm)
最多安装
数量
0.5 1 2 3 4 5 6 7 8 9 10 11 12 13 14
21 mm
气压驱动式
8 mm
单式编带料架
8 mm
纸塑料
21 mm
3 70
21 mm 140
8 mm
(
2, 5)
双式编带料架
8 mm
纸塑料
21 mm
3
70
21 mm
8 mm
(
5)
单式编带料架
8 mm
纸塑料
21 mm
3 70
21 mm 15 70
12 mm
塑料
21 mm 15 70
12 mm
16 mm
共用编带料架
16 mm 塑料
21 mm 15
70
(
3)
24 mm 塑料
42 mm 15 34
24 mm
32 mm
共用编带料架
32 mm
塑料
42 mm 15 34
15
44 mm
塑料
63 mm
21
22
15
44 mm
56 mm
共用编带料架
56 mm
塑料
63 mm
21
22
15
72 mm
编带料架
72 mm
塑料
84 mm
21
16
88 mm
编带料架
(
4)
88 mm
塑料
105 mm 21 14
104 mm
编带料架
(
4)
104 mm 塑料
126 mm 21 10
1:
卷盘直径 小卷盘
:
φ
178 mm
,大卷盘
:
φ
178 mm
φ
382 mm
2:
8 mm
双式编带料架上能够设置
2
个小卷盘。在同一槽部的卷盘收纳部不可设置小卷盘和大卷盘。
3:
根据卷盘的宽度,最多安装数量有可能减少。
4: 88 mm, 104 mm
类型没有无接头检测传感器。
5: 0402
对应,需要专用料架。
32 mm
粘着编带料架
(
6)
料架种类
编带
宽度
类型
卷盘
直径
(
1)
安装
间距
最大元件
高度
最多安装
数量
进给间距
(1
间距
= 4 mm)
32 mm
编带料
32 mm
粘着式
63 mm 2.8 mm 22 3 (12 mm)
6:
粘着编带料架不存在有接头检测传感器。
∗∗
Remarks
∗∗
对编带槽最大深度
21 mm
,是标准对应。
使用
8 mm
塑料编带料架时,最大可对应编带槽深度为
3 mm
12 mm
以上的编带料架能够最大对应编带槽深度为
15 mm
,与编带宽度相比,编带槽宽度窄时,为了防止编带脱落,需
要调整料架的槽宽。这时,编带槽的深度可能会限制在
13 mm
以下。详细请与本公司联络。
高速贴装头
(12
吸嘴
)
规格时,双式编带料架的软件版本需要在
Ver. 5.14
以上,整体交换台车的软件版本需要在
Ver. 1.20
以上。
(
为了对应双式编带料架的左右导轨同时搬送
)