cm101规格说明书(latest).pdf - 第49页
CM101-D 2009.0601 - 43 - 5. 其他标准规格 5.1 程序功能 数据编制都是在数据编制装置 PT200-G 进行。但是,部分数据修正也可在机 器主体上进行。在机器主体修正的数 据以及示教内容,被自动反馈于 PT200-G 在基板四角也可设定坐标数据的原 点。 通过使用 PS200-G ,考虑多种工件生产方式的数 据分配等,能够更有效编制数据。 ※ PT200-G 用的硬件,请客户准备。 有关 PT200-G 的详…

CM101-D 2009.0601
- 42 -
・ 弯曲
:
装载至托盘板上的托盘的
“
弯曲
”
必须符合下列条件。
『弯曲』
=
间隙
Max. 0.5 mm
・ 种类
:
并非真空成形的托盘,而是具有足够强度和尺寸精度的注塑成形的托盘。
(
若不符合本条件,请提供样本并且与本公司联络,以便提供相应的选购件规格或者进行客户特殊对应。
)
・ 托盘装载条件
:
装载至托盘板和托盘箱的托盘
(
元件
)
必须符合下列条件。
①在
1
个托盘板上放置的元件,包括托盘的合计重量必须在
1
㎏以下。
(
托盘板的重量除外
)
②
在托盘箱内,将托盘板以及托盘
(
元件
)
设置的状态下,托盘箱总重量必须在
20
㎏以下。
托盘箱
+
托盘板
+
托盘
+
元件
= Max. 20
㎏
/ 1
托盘箱
③
在托盘板上设置的托盘高度超过
11 mm
时,在托盘箱内
1
层上的槽,不可插入托盘板。
另外,托盘高度超过
26 mm
时,在托盘箱内
1
层上和
2
层上的槽,不可插入托盘板。
托盘
+
元件
= Max. 1
㎏
/ 1
托盘板
托盘
托盘
Max. 335 mm
间隙
间隙
超过11 mm ,26 mm以内
11 mm以下
可插入
超过26 mm
,
33 mm以内
不可插入
不可插入

CM101-D 2009.0601
- 43 -
5.
其他标准规格
5.1
程序功能
数据编制都是在数据编制装置
PT200-G
进行。但是,部分数据修正也可在机器主体上进行。在机器主体修正的数
据以及示教内容,被自动反馈于
PT200-G
在基板四角也可设定坐标数据的原点。
通过使用
PS200-G
,考虑多种工件生产方式的数据分配等,能够更有效编制数据。
※
PT200-G
用的硬件,请客户准备。
有关
PT200-G
的详细情况,请参照别册的「
PT200-G
规格说明书」。
有关
PS200-G
的详细情况,请参照别册的「
PS200-G
规格说明书」。
5.2
三色信号塔
信号灯的颜色和亮灯标准
信号灯颜
色
分 类
亮灯标准
红色
紧急停止错误
・
电机等的轴异常
・
空气压力下降
・
基板支撑部异常
・
贴装头故障
・
编带故障
黄色
单一停止错误
・
吸着错误
・
贴装错误
・
基板搬送错误
・
无工件
・
吸嘴交换错误
绿色
运转中
自动运转等动力为
ON
时
(
但是,红色和黄色闪烁时熄灯
)
※亮灯规格,可以变更设定。
红
黄
绿
距离地面
2 000 mm
(
标准
)
数据编制装置
PT200-G
基板数据
L
W
T
零件数据
芯片名
L
W
T
REF
形状角
托盘数据
托盘名
L
W
T
芯片数量
固定信息
料架固定 吸嘴固定
Max. 10 000
点
区块数据
No.
X
Y
A
零件名
区块属性数据
BL
X
Y
BAD
ROT
数据分配
料架配置
吸嘴配置
Max. 10 000
点
贴装数据
X
Y
零件名
BL
注释

CM101-D 2009.0601
- 44 -
6.
印刷基板设计基准
6.1
印刷基板规格概要
标准
:
基板固定方式
(
需要基板标记。
)
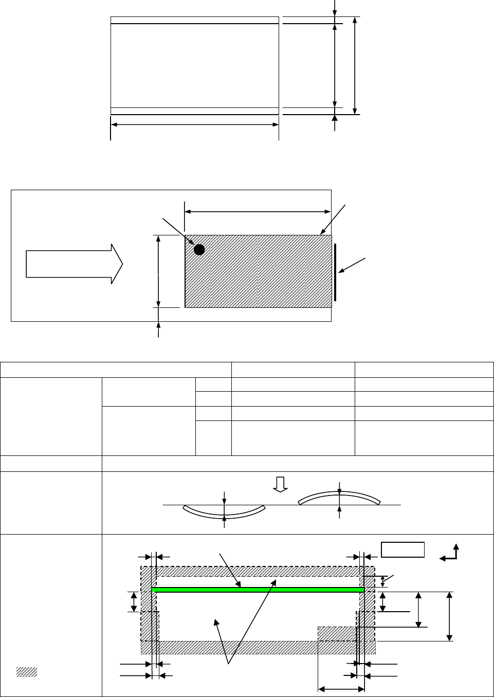
■ 基板缺口基准
为了确保基板止动器所定的基板停止位置和基板检测传感器的安全动作,对基板缺口的位置和尺寸的条件如下。
[下图是,左→右流向前基板
(
标准
)
的情况。其他条件
(
选购件
)
的情况也以此为准。]
基板尺寸
D
尺寸规格
M
尺寸规格
(
选购件
)
Min. 50 mm × 50 mm 50 mm × 50 mm
能够使用的基板尺
寸
Max. 460 mm × 360 mm 330 mm × 250 mm
Min. 50 mm × 44 mm 50 mm × 44 mm
能够使用的基板尺
寸
(
能够贴装的基板尺
寸
)
贴装可能范围
Max. 460 mm × 354 mm
330 mm × 244 mm
※但是,
L
尺寸
460 mm
以内
都可以搬送和贴装
基板厚度
0.3 mm
∼
4.0 mm
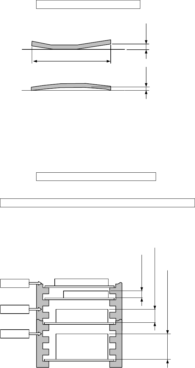
基板弯曲容许
贴装前基板状态
※
禁止有元件区
域
Max. 0.5 mm
Max. 0.5 mm
贴装方向
50 mm
~
460 (330) mm
贴装可能范围
44 mm
~
354 (244) mm
50 mm
~
360 (250) mm
3 mm3 mm
( )
外
: D
尺寸规格
( )
内
: M
尺寸规格
(
选购件
)
3 mm
固定侧
搬送时的
开口区
3 mm
4 mm
高速贴装头
: Max. 6.5 mm
通用贴装头
: Max. 15 mm
多功能贴装头
: Max. 25 mm
20 mm
25 mm
Y
Z
4 mm
30 mm
基板
10 mm
10 mm
3 mm
3 mm
50 mm
20 mm
4.5 mm
基板检测传感器位置
禁止基板缺口区域
基板流向
基板止动器