KE-3010A_KE-3010AC_KE-3020VA_KE-3020VRA-Rev07.pdf - 第144页
- - 69. MREPLACING OVERALLCH ANGERTRUCKCO MPONENTS (WITHCONNECT ORBRACKET )(1) 7 8 6 5 6 9 6 9 6 7 6 9 6 7 4 7 7 0 1 6 1 6 1 8 2 8 2 7 4 6 5 6 9 6 8 6 6 6 2 6 3 6 4 7 0 6 8 6 6 6 0 5 9 6 0 5 9 5 0 5 0 3 6 2 8 B …

- -
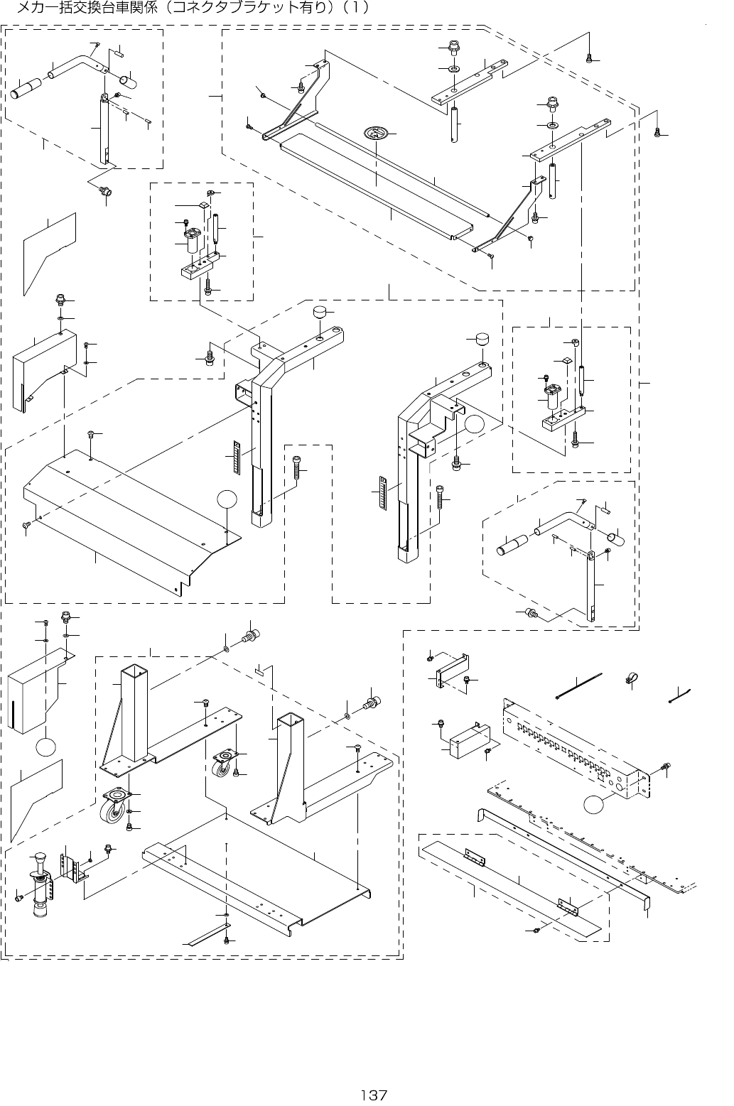
REF.NO NOTE PARTNO DESCRIPTION Qty
1 401-14162 EBANKASSY 1
2 401-10281 EBANKSUBASSY (1)
3 401-28160 E_BANK_BASE (1)
4 E2602-721-000 BANKLOCATEBUSHA (2)
5 E2609-721-000 BANKLOCATEPINA (1)
6 E2610-721-000 BANKLOCATEPINB (1)
7 NM-6080003-SC NUTM8 (2)
8 WS-0820002-KN SPRINGWASHERM8 (2)
9 WP-0841601-SC WASHER8.4X17.4X1.6 (2)
10 401-28166 MARKSTAND (1)
11 E2505-729-0A0 MARKASM. (1)
12 E2505-729-000 MARKBASE (1)
13 E2601-725-000 MARK (1)
14 SL-6041292-TN SCREW (2)
15 SL-6052092-TN SCREW (2)
16 401-03746 FIXINGPLATE (4)
17 SM-3041052-TN SCREWM4L=10 (12)
18 401-03747 FIXINGBLOCK (4)
19 SM-6041402-TN SCREWM4X0.7L=14 (12)
20 400-84713 EBANKSHIM0.02 (8)
21 400-84714 EBANKSHIM0.03 (8)
22 400-84715 EBANKSHIM0.05 (8)
23 400-84699 EBANKSHIM0.10 (12)
24 SM-8040612-TP SCREWM4L=6 (8)
25 SM-8030602-TP SCREWM3X0.5L=6 (8)
26 SM-8041852-TP SCREWM4L=18 (8)
27 SM-6040802-TN SCREWM4X0.7L=8 (16)
28 E3074-729-000 BEARINGSHIMD (2)
29 401-03748 RAILGUIDE9 (3)
30 401-03749 RAILGUIDE10 (1)
31 SM-6040802-TN SCREW (16)
32 400-85590 GUIDE_PLATE (41)
33 SM-3030552-TN SCREWM3L=5 (82)
34 SM-1030552-TN PLATESCREWM3L=5 (41)
35 401-28162 LOCKSHAFT (2)
36 WP-0430801-SC WASHERM4 (8)
37 SL-4030881-SC SCREWM3L=8 (8)
38 401-38827 E_BANK_BASE_COVER (1)
39 SM-0040601-SC SCREWM4X0.7L=6 (8)
40 EA-9500B02-00 CABLEBAND150 (10)
41 400-93577 FDCBRACKETASSY (1)
42 400-93591 FDCBRACKETSTAYR (1)
43 SL-6061292-TN SCREW (4)
44 401-28140 FDCBRACKET (1)
45 SL-6051092-TN BOLT (4)
46 400-93594 ETFPOSITIONLABEL(40) (1)
47 400-92647 EFIFCBL1-5ASM (1)
48 400-92648 EFIFCBL6-10ASM (1)
49 400-92649 EFIFCBL11-15ASM (1)
50 400-92650 EFIFCBL16-20ASM (1)
51 400-92651 EFIFCBL21-25ASM (1)
52 400-92652 EFIFCBL26-30ASM (1)
53 400-92653 EFIFCBL31-35ASM (1)
54 400-92654 EFIFCBL36-40ASM (1)
55 HK-0791900-00 CONNECTOR (80)
56 400-93590 FDCBRACKETSTAYL (1)
57 HX-0022300-0A BUSHING (0.14)
58 400-93578 BANKPCBBOXASSY (1)
59 HX-0035400-0E BOARDPARTS (4)
60 SL-4030691-SC SCREWM3L=6 (6)
61 401-28042 BANKPCBBASE (1)
62 HX-0067100-00 GROMMET (0.21)
63 401-87551 ELECBANK10PCBASMV2 (1)
64 HX-0067100-0A GROMMET (0.36)
65 HX-0029400-00 FIXEDBASE (6)
66 SL-4030691-SC SCREWM3L=6 (6)
67 400-93593 BANKPCBCOVER (1)
68 SL-6030892-TN SCREW (4)
69 EA-9500B01-00 CABLEBAND (30)
70 EA-9500B02-00 CABLEBAND150 (30)
71 401-07154 CLOSELABEL (1)
72 SL-6051092-TN BOLT (4)
73 HX-0029400-00 FIXEDBASE (8)

- -
69.MREPLACINGOVERALLCHANGERTRUCKCOMPONENTS(WITHCONNECTORBRACKET)(1)
7 8
6 5
6 9
6 9
6 7
6 9
6 7
4 7
7 0
1
6 1
6 1
8 2
8 2
7 4
6 5
6 9
6 8
6 6
6 2
6 3
6 4
7 0
6 8
6 6
6 0
5 9
6 0
5 9
5 0
5 0
3 6
2 8
B
4 8
A
3 0
2 1
6 4
6 3
6 2
7 5
7 3
7 6
7 1
5 8
5 7
5 7
5 6
5 4
5 5
5 5
5 3
5 3
5 2
5 1
4 9
4 3
3 5
3 4
3 2
4 2
4 0
4 4
3 3
4 1
4 4
2 9
3 8
3 9
3 1
3 7
2 3
2 3
2 6
2 6
2 5
2 2
2 4
2 4
2 7
2 7
7 9
9 3
8 0
7 7
7 4
7 3
1 8
1 9
1 7
9 1
8 8
8 9
9 0
9 2
8 7
8 7
8 6
8 6
8 4
8 5
B
2
8 1
8 3
A
7 5
7 6
7 2
4 5
4 5
4 6
1 4
1 6
1 5
1 3
1 2
1 1
1 0
7
9
8
6
6
5
4
3
4 6
2 0

- -
REF.NO NOTE PARTNO DESCRIPTION Qty
1 400-21958 FLOORTROLLEYSUBUNIT 1
2 400-21959 TROLLEYBOTTOMASSY (1)
3 400-21912 TROLLEYFRAMEBL (1)
4 400-21913 TROLLEYFRAMEBR (1)
5 400-21914 TROLLEYBASEPLATE (1)
6 SM-3061252-TN SCREWM6L=12 (6)
7 400-21957 TROLLEYCASTER(75) (2)
8 WP-0612516-SD WASHER6.1X15.2X2.5 (8)
9 SM-6060802-TN BOLT (8)
10 400-21956 TROLLEYCASTER(50) (2)
11 SM-6060802-TN BOLT (8)
12 E2711-721-000 TROLLEYSTOPPER (2)
13 E2710-721-000 STOPPERATTACHMENT (2)
14 SM-6060802-TN BOLT (8)
15 SL-6061242-TN BOLT (4)
16 NM-6060003-SC NUTM6 (4)
17 WP-0430801-SC WASHERM4 (2)
18 400-23476 FGGUMSHEET (1)
19 SM-6040802-TN SCREW (1)
20 400-21960 TROLLEYUPPERASSY (1)
21 400-58933 TROLLEYFRAMEL (1)
22 400-58934 TROLLEYFRAMER (1)
23 400-01731 TROLLEYRUBBERB (4)
24 400-01730 SCALEMARKSSEAL (2)
25 400-58935 TROLLEYUPPERPLATE (1)
26 SM-3061252-TN SCREWM6L=12 (6)
27 SM-6125052-TR SCREW (2)
28 400-22464 STOPPERPLATELASSY (1)
29 400-53180 TROLLEYSTOPPERPLATEL (1)
30 400-01748 TROLLEYSUBGUIDE (1)
31 SL-6063092-TN SCREWM6L=30 (1)
32 E2703-721-000 TROLLEYSHAFT (1)
33 S1021-710-000 STRUBBERFOOT (1)
34 SB-8160005-C0 BEARING (1)
35 SL-6041042-TN BOLT (4)
36 400-22465 STOPPERPLATERASSY (1)
37 400-01735 TROLLEYSTOPPERPLATE (1)
38 400-01748 TROLLEYSUBGUIDE (1)
39 SL-6063092-TN SCREWM6L=30 (1)
40 E2703-721-000 TROLLEYSHAFT (1)
41 S1021-710-000 STRUBBERFOOT (1)
42 SB-8160005-C0 BEARING (1)
43 SL-6041042-TN BOLT (4)
44 SL-6082092-TN BOLT (4)
45 WP-1052001-SC WASHER10 (4)
46 SL-6102042-TN SCREW (4)
47 400-21961 TROLLEYSLIDEASSY (1)
48 400-21916 BANKPLATEL (1)
49 400-21917 BANKPLATER (1)
50 400-23221 SUPPORTSHAFT (2)
51 400-01736 FSBRACKETL (1)
52 400-01737 FSBRACKETR (1)
53 SL-6061692-TN BOLT (4)
54 400-01739 FSPLATE (1)
55 SM-3040652-TN SCREWM4L=6 (4)
56 400-21918 TAPEGUIDE (1)
57 400-68308 SETSCREWM4L=8 (2)
58 E5721-729-000 LABEL (1)
59 SL-6102042-TN SCREW (2)
60 WP-1052001-SC WASHER10 (2)
61 400-21962 TROLLEYHANDLEASSY (2)
62 400-21920 TROLLEYHANDLE (1)
63 E2641-729-000 HANDLECLIP (1)
64 E2635-729-000 HANDLESLIDER (1)
65 400-21919 HANDLESHAFT (1)
66 SL-6030642-TN SCREWM3L=6 (1)
67 SL-6040642-TN BOLT (1)
68 PS-0600182-KP SPRINGPIN (1)
69 PS-0400122-KP SPRINGPIN (2)
70 SL-6082092-TN BOLT (4)
71 400-58936 TROLLEYCOVERAL (1)
72 400-58937 TROLLEYCOVERAR (1)
73 SM-3040652-TN SCREWM4L=6 (4)
74 WP-0430801-SC WASHERM4 (4)
75 WP-0841601-SC WASHER8.4X17.4X1.6 (2)
76 SL-6081242-TN BOLT (2)
77 E4981-700-000 LABEL (1)
78 400-58938 SIDETAPEL (1)
79 400-58939 SIDETAPER (1)
80 HX-0006500-0B CABLEBAND 6
81 HX-0015000-0K CABLECLIP 1
82 400-01734 SCREW 4
83 SL-6051492-TN BOLT 4
84 E1173-725-000 PLATESTANDCOVERL 1
85 E1174-725-000 PLATESTANDCOVERR 1
86 SL-6040892-TN BOLT 2
87 SL-6051092-TN BOLT 2
88
#01
400-01749 BANKFLAPASSY 1
89 400-18388 BUTTHINGE (2)
90 400-18389 BANKFLAP (1)
91
#01
400-01750 BANKCOVER 1
92
#01
SL-6040892-TN BOLT 4
93 HX-0067400-00 CABLEBAND 4