KE-3010A_KE-3010AC_KE-3020VA_KE-3020VRA-Rev07.pdf - 第67页
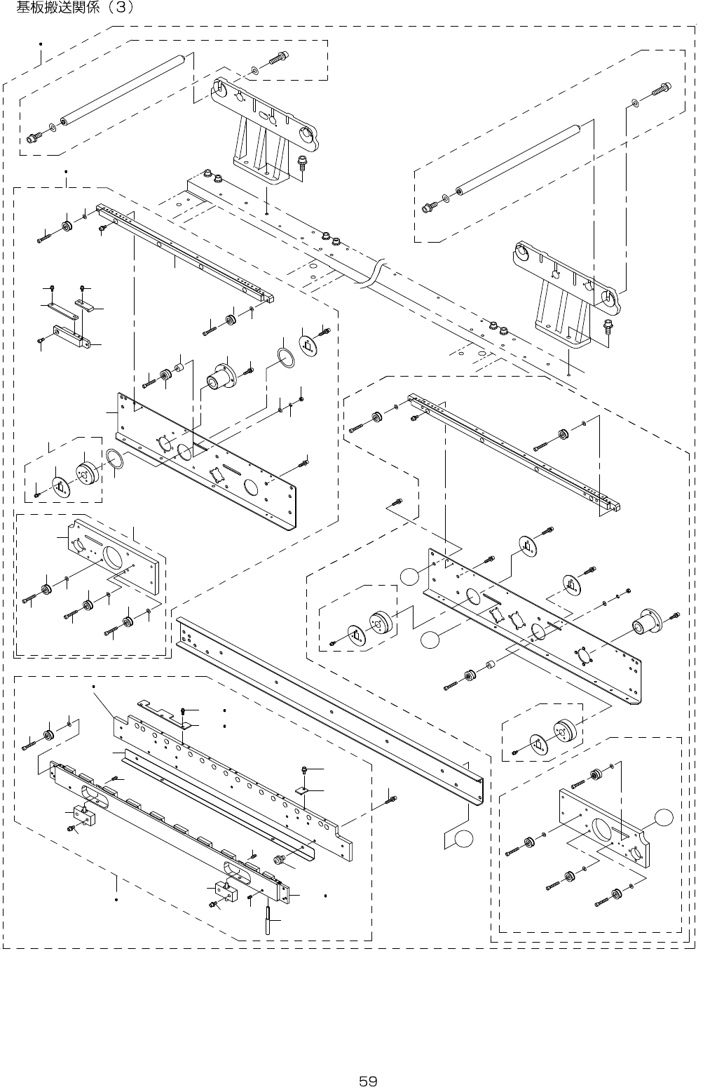
- - REF.NO NOTE PARTNO DESCRIPTION Qty 1 #02 401-46987 CONVE YOR_RAIL_R_A SM_L 1 2 #01 401-46975 CONVE YOR_RAIL_R_A SM_M 1 3 #02 401-14266 RAILPLATERLASML (1) 4 #01 401-46977 RA IL_PLATE_RL_ ASM (1…

- -
30.PWBCONVEYORCOMPONENTS(3)
5
8
7
8
9
7
9
8
7
6
9
3 4
A
3 7 3 8
5 3
4 5
4 7 4 8
1 2
4 6
4 4
5 9
4 0
4 1
5 4
3 9
4 9
5 3
5 1 5 2
5 0
4 9
3 3
3 2
1 7
3 4
3 1
2 8
3 1
2 9
2 4
1 4
1 5
1 6
1 8
2 2
2 3
2 1
1 0
3 0
1 0
3 0
2 7
2 6
2 5
2 1
2 0
1 9
B
A
1 2
1 3
1 1
3 5
3 4
3 6
3 5
4 3 5 8
5 0
5 5 5 7
B
4 2
5 6

- -
REF.NO NOTE PARTNO DESCRIPTION Qty
1
#02
401-46987 CONVEYOR_RAIL_R_ASM_L 1
2
#01
401-46975 CONVEYOR_RAIL_R_ASM_M 1
3
#02
401-14266 RAILPLATERLASML (1)
4
#01
401-46977 RAIL_PLATE_RL_ASM (1)
5 400-01059 SUPPORTPLATERLASM(L) (1)
6 400-01064 SUPPORTPLATERL(L) (1)
7 E2111-715-0A0 CONVEYORPULLEYASM. (3)
8 WP-0430800-SC WASHERM4 (3)
9 SM-4040855-SC SCREW (3)
10 SM-4040855-SC SCREW (2)
11 E2089-721-0A0 CONVEYORPULLEYBASM. (1)
12 E2055-721-000 PULLEYSPACER (1)
13 SM-4042501-SC SCREWM4X0.7L=25 (1)
14 WP-0430801-SC WASHERM4 (1)
15 WS-0410002-KN SPRINGWASHERM4 (1)
16 NM-6040001-SC NUTM4X0.7TYPE1 (1)
17 400-00839 DRIVEPULLEYRASM (1)
18 400-00840 DRIVEPULLEYR (1)
19 E2160-721-000 PULLEYFLANGE (1)
20 SL-6030892-TN SCREWM3L=8 (3)
21 E3931-750-000 PULLEYWASHER (2)
22 E2160-721-000 PULLEYFLANGE (1)
23 SL-6030892-TN SCREWM3L=8 (3)
24 SB-8160001-00 BEARING (2)
25 400-01063 RAILPLATERL(L) (1)
26 400-00828 CONVEYORRAIL (1)
27 SL-6031492-TN SCREWM3L=14 (4)
28 SM-6040802-TN SCREW (8)
29 SL-6041092-TN SCREW (2)
30 E2111-715-0A0 CONVEYORPULLEYASM. (2)
31 WP-0430800-SC WASHERM4 (2)
32
#01
401-47007 CONVEYOR_RAIL_M (1)
33
#01
SM-6040802-TN SCREWM4X0.7L=8 (1)
34
#01
401-47008 PWB_GUIDE_M (1)
35
#01
SL-6030892-TN SCREWM3L=8 (4)
36 E2046-725-000 PWBINNER (1)
37
#02
401-46988 CONVEYOR_RAIL_RC_ASM_L (1)
38
#01
401-46976 CONVEYOR_RAIL_RC_ASM_M (1)
39 SM-8040602-TP SCREWM4X0.7L=6 (2)
40 401-46999 SAFETY_BAR (1)
41 SL-6040892-TN BOLT (4)
42
#01
E2124-721-000 PWBGUIDEPLATERA (4)
43
#01
SL-6030892-TN SCREWM3L=8 (6)
44 E2111-715-0A0 CONVEYORPULLEYASM. (4)
45 WP-0430800-SC WASHERM4 (4)
46 SM-4040855-SC SCREW (4)
47
#02
401-46997 RAIL_GUIDE_R_L (1)
48
#01
401-46996 RAIL_GUIDE_R_M (1)
49 E4105-729-0A0 SHAFTSUPPORTBASM. (2)
50 SM-8030302-TP SCREWM3X0.5L=3 (2)
51
#02
401-47010 CONVEYOR_RAIL_C_L (1)
52
#01
401-47009 CONVEYOR_RAIL_C_M (1)
53 SL-6041092-TN SCREW (4)
54 400-00812 RAILGUIDESHAFT (2)
55
#01
E2123-721-000 PWBGUIDEPLATEF (2)
56
#01
SL-6030892-TN SCREWM3L=8 (4)
57
#02
E2123-721-000 PWBGUIDEPLATEF (2)
58
#02
SL-6030892-TN SCREWM3L=8 (12)
59 SL-6041092-TN SCREW (17)

- -
31.PWBCONVEYORCOMPONENTS(4)
3 3
3 4
3 2
1 0
1 9
3
8
1 2
2 3
1 7
1 3
1 3
1 2
9
1 0
1 1
2 8
2 6
2 4
2 5
2 5
2 4
2 6
2 6
2 5
3 0
B
A
A
4 4
4
1 7
1 8
1 4
1 5
1 6
1 4
1 8
1 6
1 5
9
1 1
6
7
8
2 9
2 4
5
2 1
2 2
5
2 1
2 2
2 0
3 8 3 9
3 8 3 9
4 1
B
4 0
3 6
4 6
4 0
4 2
4 3
4 3
4 1
4 7
3 7
4 3
4 3
4 2
4 5
3 5
2 7
3 1
3 1