KE-3010A_KE-3010AC_KE-3020VA_KE-3020VRA-Rev07.pdf - 第68页
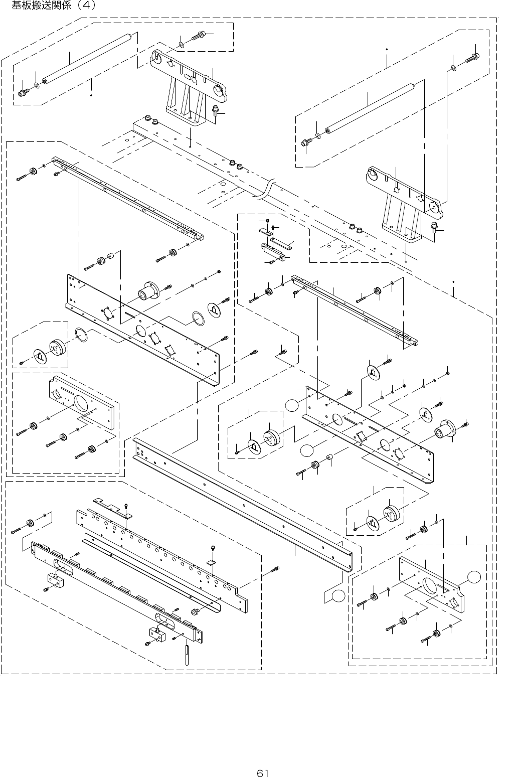
- - 31. PWBCONVEY ORCOMPONENTS (4) 3 3 3 4 3 2 1 0 1 9 3 8 1 2 2 3 1 7 1 3 1 3 1 2 9 1 0 1 1 2 8 2 6 2 4 2 5 2 5 2 4 2 6 2 6 2 5 3 0 B A A 4 4 4 1 7 1 8 1 4 1 5 1 6 1 4 1 8 1 6 1 5 9 1 1 6 7 8 2 9 2 4 5 2 1 2 2 5 2 1…

- -
REF.NO NOTE PARTNO DESCRIPTION Qty
1
#02
401-46987 CONVEYOR_RAIL_R_ASM_L 1
2
#01
401-46975 CONVEYOR_RAIL_R_ASM_M 1
3
#02
401-14266 RAILPLATERLASML (1)
4
#01
401-46977 RAIL_PLATE_RL_ASM (1)
5 400-01059 SUPPORTPLATERLASM(L) (1)
6 400-01064 SUPPORTPLATERL(L) (1)
7 E2111-715-0A0 CONVEYORPULLEYASM. (3)
8 WP-0430800-SC WASHERM4 (3)
9 SM-4040855-SC SCREW (3)
10 SM-4040855-SC SCREW (2)
11 E2089-721-0A0 CONVEYORPULLEYBASM. (1)
12 E2055-721-000 PULLEYSPACER (1)
13 SM-4042501-SC SCREWM4X0.7L=25 (1)
14 WP-0430801-SC WASHERM4 (1)
15 WS-0410002-KN SPRINGWASHERM4 (1)
16 NM-6040001-SC NUTM4X0.7TYPE1 (1)
17 400-00839 DRIVEPULLEYRASM (1)
18 400-00840 DRIVEPULLEYR (1)
19 E2160-721-000 PULLEYFLANGE (1)
20 SL-6030892-TN SCREWM3L=8 (3)
21 E3931-750-000 PULLEYWASHER (2)
22 E2160-721-000 PULLEYFLANGE (1)
23 SL-6030892-TN SCREWM3L=8 (3)
24 SB-8160001-00 BEARING (2)
25 400-01063 RAILPLATERL(L) (1)
26 400-00828 CONVEYORRAIL (1)
27 SL-6031492-TN SCREWM3L=14 (4)
28 SM-6040802-TN SCREW (8)
29 SL-6041092-TN SCREW (2)
30 E2111-715-0A0 CONVEYORPULLEYASM. (2)
31 WP-0430800-SC WASHERM4 (2)
32
#01
401-47007 CONVEYOR_RAIL_M (1)
33
#01
SM-6040802-TN SCREWM4X0.7L=8 (1)
34
#01
401-47008 PWB_GUIDE_M (1)
35
#01
SL-6030892-TN SCREWM3L=8 (4)
36 E2046-725-000 PWBINNER (1)
37
#02
401-46988 CONVEYOR_RAIL_RC_ASM_L (1)
38
#01
401-46976 CONVEYOR_RAIL_RC_ASM_M (1)
39 SM-8040602-TP SCREWM4X0.7L=6 (2)
40 401-46999 SAFETY_BAR (1)
41 SL-6040892-TN BOLT (4)
42
#01
E2124-721-000 PWBGUIDEPLATERA (4)
43
#01
SL-6030892-TN SCREWM3L=8 (6)
44 E2111-715-0A0 CONVEYORPULLEYASM. (4)
45 WP-0430800-SC WASHERM4 (4)
46 SM-4040855-SC SCREW (4)
47
#02
401-46997 RAIL_GUIDE_R_L (1)
48
#01
401-46996 RAIL_GUIDE_R_M (1)
49 E4105-729-0A0 SHAFTSUPPORTBASM. (2)
50 SM-8030302-TP SCREWM3X0.5L=3 (2)
51
#02
401-47010 CONVEYOR_RAIL_C_L (1)
52
#01
401-47009 CONVEYOR_RAIL_C_M (1)
53 SL-6041092-TN SCREW (4)
54 400-00812 RAILGUIDESHAFT (2)
55
#01
E2123-721-000 PWBGUIDEPLATEF (2)
56
#01
SL-6030892-TN SCREWM3L=8 (4)
57
#02
E2123-721-000 PWBGUIDEPLATEF (2)
58
#02
SL-6030892-TN SCREWM3L=8 (12)
59 SL-6041092-TN SCREW (17)

- -
31.PWBCONVEYORCOMPONENTS(4)
3 3
3 4
3 2
1 0
1 9
3
8
1 2
2 3
1 7
1 3
1 3
1 2
9
1 0
1 1
2 8
2 6
2 4
2 5
2 5
2 4
2 6
2 6
2 5
3 0
B
A
A
4 4
4
1 7
1 8
1 4
1 5
1 6
1 4
1 8
1 6
1 5
9
1 1
6
7
8
2 9
2 4
5
2 1
2 2
5
2 1
2 2
2 0
3 8 3 9
3 8 3 9
4 1
B
4 0
3 6
4 6
4 0
4 2
4 3
4 3
4 1
4 7
3 7
4 3
4 3
4 2
4 5
3 5
2 7
3 1
3 1

- -
REF.NO NOTE PARTNO DESCRIPTION Qty
1
#02
401-14267 RAIL_PLATE_RR_ASM_L 1
2
#01
401-46978 RAIL_PLATE_RR_ASM 1
3 400-00828 CONVEYORRAIL (1)
4 SB-8160001-00 BEARING (2)
5 SM-4040855-SC SCREW (2)
6 E2089-721-0A0 CONVEYORPULLEYBASM. (1)
7 E2055-721-000 PULLEYSPACER (1)
8 SM-4042501-SC SCREWM4X0.7L=25 (2)
9 WP-0430801-SC WASHERM4 (2)
10 WS-0410002-KN SPRINGWASHERM4 (2)
11 NM-6040001-SC NUTM4X0.7TYPE1 (2)
12 SM-6041002-TN BOLT (8)
13 400-00839 DRIVEPULLEYRASM (2)
14 400-00840 DRIVEPULLEYR (1)
15 E2160-721-000 PULLEYFLANGE (1)
16 SL-6030892-TN SCREWM3L=8 (3)
17 SL-6030892-TN SCREWM3L=8 (6)
18 E2160-721-000 PULLEYFLANGE (2)
19 SL-6031492-TN SCREWM3L=14 (4)
20 SL-6041092-TN SCREWM4L=10 (2)
21 E2111-715-0A0 CONVEYORPULLEYASM. (2)
22 WP-0430800-SC WASHERM4 (2)
23 400-01062 SUPPORTPLATERRASM(L) (1)
24 E2111-715-0A0 CONVEYORPULLEYASM. (5)
25 WP-0430800-SC WASHERM4 (5)
26 SM-4040855-SC SCREW (5)
27 400-01062 SUPPORTPLATERRASM(L) (1)
28 E2111-715-0A0 CONVEYORPULLEYASM. (1)
29 WP-0430800-SC WASHERM4 (1)
30 400-01061 RAILPLATERR(L) (1)
31
#01
SL-6030892-TN SCREWM3L=8 (4)
32
#01
401-47007 CONVEYOR_RAIL_M (1)
33
#01
SM-6040802-TN SCREWM4X0.7L=8 (1)
34
#01
401-47008 PWB_GUIDE_M (1)
35 E2046-725-000 PWBINNER (1)
36 400-01065 RAILSTANDRL(L) 1
37 SL-6052092-TN SCREW 2
38
#02
400-01002 GUIDESHAFTASM(L) 4
39
#01
400-00845 GUIDESHAFTASM 4
40 E2209-725-000 GUIDESHAFT (1)
41 SL-6051292-TN BOLT (1)
42 SL-6052042-TN SCREW (1)
43 WP-0501046-SC WASHER5X14X1 (2)
44 SL-6042092-TN SCREWM4L=20 4
45 401-46998 CONVEYOR_SUPPORT_PLATE 1
46 400-01066 RAILSTANDRR(L) 1
47 SL-6052092-TN SCREW 2